Найти в Дзене
Andrei Lobin Design Buro

5 советов по обустройству и началу ремонта ванной комнаты

Заниматься обустройством ванной комнаты — это как решать головоломку, где перед вами стоит задача выполнить сложные проектные, строительные и инженерные работы на крошечном участке. При этом нужно не забыть выбрать материалы и мебель под влажную среду, продумать как провести коммуникации и разместить сантехнику, плюс составить очередность ремонта. Но не переживайте, мы подскажем вам как пройти этот путь! Вот пять ключевых моментов, которые помогут вам все сделать правильно: Задайте себе вопрос о цели этого обустройства. От этого зависит выбор типа ремонта. Например, косметический — это как обновить макияж: свежий слой краски, новая плитка, исправление мелких дефектов без значительных вложений. В то время как капитальный, предполагает замену труб, оборудования и полную перепланировку. Если ваш дом старше динозавров, или наоборот новостройка в черновой отделке, где требуется возведение перегородок, этот вариант точно для вас! Как вы думаете, какой будет следующий шаг? Конечно - планирова
Оглавление

Заниматься обустройством ванной комнаты — это как решать головоломку, где перед вами стоит задача выполнить сложные проектные, строительные и инженерные работы на крошечном участке. При этом нужно не забыть выбрать материалы и мебель под влажную среду, продумать как провести коммуникации и разместить сантехнику, плюс составить очередность ремонта. Но не переживайте, мы подскажем вам как пройти этот путь! Вот пять ключевых моментов, которые помогут вам все сделать правильно:

1. Определить тип ремонта

Задайте себе вопрос о цели этого обустройства. От этого зависит выбор типа ремонта. Например, косметический — это как обновить макияж: свежий слой краски, новая плитка, исправление мелких дефектов без значительных вложений. В то время как капитальный, предполагает замену труб, оборудования и полную перепланировку. Если ваш дом старше динозавров, или наоборот новостройка в черновой отделке, где требуется возведение перегородок, этот вариант точно для вас!

2. Дизайн-проект ванной

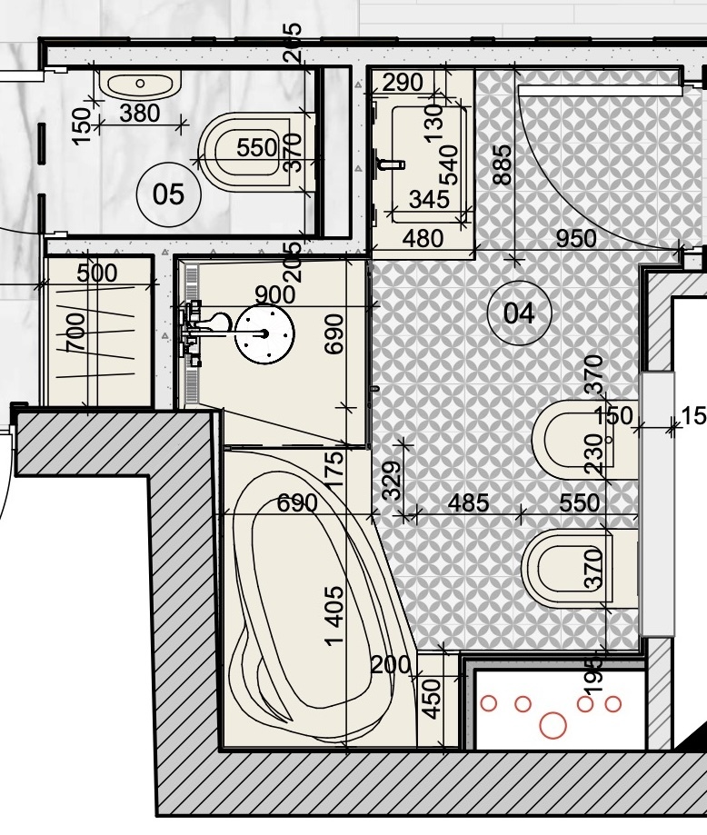
Как вы думаете, какой будет следующий шаг? Конечно - планирование! В этом поможет дизайн-проект, который можно создать самостоятельно или заказать у дизайнера. Не превращайте помещение в склад для ненужных вещей, используйте каждый сантиметр эффективно. Учитывайте размеры для размещения сантехники, мебели и техники, разместив крупные элементы в первую очередь, чтобы не пришлось потом играть в тетрис. Хотите сдвинуть стены или изменить конструкции? Готовьтесь к согласованию с контролирующими органами (БТИ). Результат правильной планировки, станет основой для выбора стиля дизайна интерьера, который будет зависеть только от ваших пожеланий.

Пример планировки и зонирования:

  • ЖК Лобачевский:

- Мастер СУ: на 5,5 квадратах удалось разместить вместительную душевую, туалет с биде, раковину и небольшую сидячую ванную (по большому пожеланию заказчицы), пожертвовав местами для хранения.

Планировочное решение Мастер СУ в ЖК "Лобачевский" | Студия Андрея Лобина
Планировочное решение Мастер СУ в ЖК "Лобачевский" | Студия Андрея Лобина

- Детский СУ: на аналогичной площади разместили полноценную ванну, большую душевую, широкое подстолье со встроенной раковиной. Здесь много мест для хранения и при этом пространство не загромождено.

Планировочное решение Детского СУ в ЖК "Лобачевский" | Студия Андрея Лобина
Планировочное решение Детского СУ в ЖК "Лобачевский" | Студия Андрея Лобина

  • ЖК Семейный, г. Волгоград:

В маленьком санузле удалось организовать постирочную, добавив перегородку для разделения на две отдельные зоны.

Планировочное решение ванной комнаты в ЖК "Семейный" | Студия Андрея Лобина
Планировочное решение ванной комнаты в ЖК "Семейный" | Студия Андрея Лобина

3. Инженерные коммуникации

Это сердце вашей ванной комнаты. Начните с труб для сантехники и бытовых приборов. На этом этапе лучше забыть об экономии. Установите качественные элементы сразу, чтобы избежать проблем в будущем. Рассмотрите установку электрического теплого пола для дополнительного комфорта и подсушивания воздуха. Важно учесть, что «водяной» вариант, в многоквартирных домах, категорически запрещен! Размещайте розетки вдали от источников воды, на удобной для использования, но безопасной высоте, а также предусмотрите дополнительные розетки в ящиках для подключения ирригатора, бритв, зубных щеток и иных принадлежностей, требующих зарядки. Для проветривания, осушения и устранения запахов необходима естественная вентиляция. Вам может понадобиться водонагреватель, который может быть проточным или накопительным. И не забудьте про полотенцесушитель, он может быть как электрический, так и водяной. Мы в своих проектах используем электрическую модель, так как не привязываемся к месту установки и этот вариант остается рабочим, даже при отключении горячей воды в доме.

4. Выбор материалов для отделки

Какие материалы выбрать? Те, которые выдержат воздействие воды и температуры. Чем отделать стены? Отлично подойдут керамическая плитка, натуральный камень, мозаика, керамогранит или краска и штукатурка (кроме мест, где есть прямое попадание жидкости). Пол? Выбирайте антискользящие варианты с фактурной поверхностью, такие как керамогранит или кварц-винил. Потолки можно оформить натяжными конструкциями или гипсокартоном. Реечные потолки - прошлый век. И главное, не забудьте про гидроизоляцию!

Пример применения материалов:

  • ЖК Сказка:

Покрашенные стены с мозаикой.

Планировочное решение ванной комнаты в ЖК "Сказка" | Студия Андрея Лобина
Планировочное решение ванной комнаты в ЖК "Сказка" | Студия Андрея Лобина

5. Выбор мебели и сантехники

Организация хранения — это ключ к порядку и защита вещей от воздействия воды. Выдвижные ящики и закрытые шкафы в помощь. Думаете, какую мебель и сантехнику выбрать? Начните с материалов из которой они изготавливаются. Используйте водозащищенные, такие как обработанный массив дерева или влагостойкий МДФ под эмалью — они, как рыцари в броне, выдержат любое воздействие влаги, деформацию и повреждения корпуса от пара. ЛДСП тоже возможно, но их срок службы будет недолгим. Для столешниц подойдут: натуральный и искусственный камень, стекло, пластик и в редких случаях металл, не подверженный коррозии. При выборе смесителей и душевой лейки обратите внимание на покрытие, в более дешевом варианте оно может треснуть или вздуться от чистящих средств. Раковину и унитаз можно выбрать любые, но предпочтительнее поверхности с грязеотталкивающими покрытиями. Ванная может быть из акрила, литьевого камня (мрамор) или чугуна.

Пример организации мест хранения:

  • ЖК Сердце Столицы:

Просторный санузел с множеством мест для хранения в изготовленных на заказ шкафах.

Планировочное решение ванной комнаты в ЖК "Сердце Столицы" | Студия Андрея Лобина
Планировочное решение ванной комнаты в ЖК "Сердце Столицы" | Студия Андрея Лобина

Чек-лист

Вот и все, друзья! Теперь вы знаете, как избежать ловушек ремонта ванной комнаты. Для успешного обновления следуйте этим ключевым шагам:

  1. Определите цель ремонта и его тип.
  2. Спланируйте размещение сантехники и мебели.
  3. Продумайте, выберите и установите качественные элементы инженерной системы.
  4. Выбирайте влагостойкие материалы для отделки и используйте гидроизоляцию.
  5. Для организации хранения, используйте водозащищенную мебель и сантехнику с грязеотталкивающей поверхностью.

Не забывайте следить за нашими публикациями — впереди еще много полезных советов и идей! Подписывайтесь на наш канал, задавайте вопросы в комментариях и предлагайте темы для следующих статей.