Добавить в корзинуПозвонить
Найти в Дзене
Бери и Строй

Проект для самостоятельной сборки дома из сип-панелей

Добрый день! Сегодня выдалась свободная минута и готов поделиться с вами интересным проектом дома из сип-панелей. При наличии инструмента и ровных рук, вы вполне сможете собрать такой дом самостоятельно. Размер дома по габаритам 8.9х10.4м. Дом имеет один этаж на котором есть две спальни, отдельная зона кухни, просторная гостиная, ванная, тамбур и техпомещение (котельная). Из открытых помещений в наличии веранда и большое крыльцо. В качестве фундамента, как наверное успели понять по скриншотам, винтовые сваи. На мой взгляд проект очень удачный с точки зрения планировки и очень даже привлекательный внешне. Если вам понравился проект дома из сип панелей, то можете его скачать по ссылке. Не забывайте подписываться и жать на палец вверх. Всем удачи в стройке.

Добрый день! Сегодня выдалась свободная минута и готов поделиться с вами интересным проектом дома из сип-панелей. При наличии инструмента и ровных рук, вы вполне сможете собрать такой дом самостоятельно.

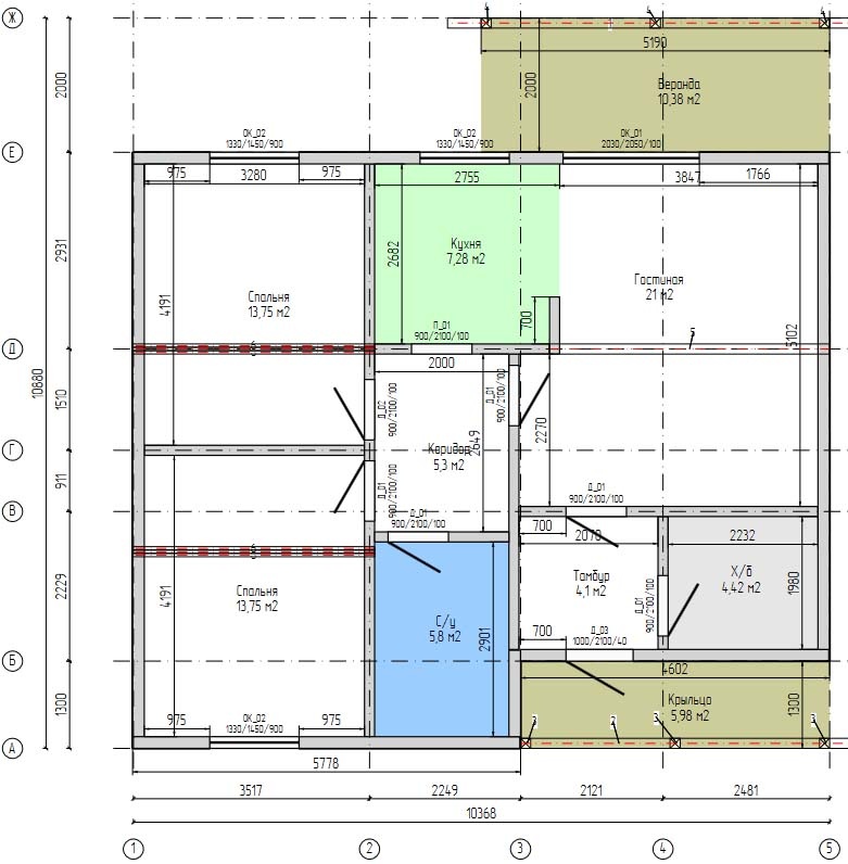
Размер дома по габаритам 8.9х10.4м. Дом имеет один этаж на котором есть две спальни, отдельная зона кухни, просторная гостиная, ванная, тамбур и техпомещение (котельная). Из открытых помещений в наличии веранда и большое крыльцо.

План помещений дома из сип панелей
План помещений дома из сип панелей

В качестве фундамента, как наверное успели понять по скриншотам, винтовые сваи.

На мой взгляд проект очень удачный с точки зрения планировки и очень даже привлекательный внешне. Если вам понравился проект дома из сип панелей, то можете его скачать по ссылке.

Не забывайте подписываться и жать на палец вверх. Всем удачи в стройке.