Добавить в корзинуПозвонить
Найти в Дзене

Планировка современного загородного дома

Приветствую вас, дорогие читатели. Сегодня хочу поделиться своими соображениями относительно планировки дома. Самое замечательное в строительстве дома для себя как раз то, что можно дать волю фантазии и по-возможности построить всё, что душеньке угодно. На недавнем собрании в нашем СНТ, я как раз услышала разговор двух соседей о том, что надо было запланировать прачечную. Её, ух, как не хватает. И действительно, почему бы и нет? В современном доме, судя по готовым планировкам, которые можно увидеть на просторах интернета, есть кухня-столовая, часто совмещенная с гостиной, спальня хозяев дома, она же мастер-спальня, а также детские комнаты, сан.узлы и отдельное помещение типа топочной/бойлерной. Также иногда запланирована спальня для гостей. И очень немногие вспоминают про такие, на мой взгляд, важные помещения, как кладовые, тамбур, а также прачечная. Жизнь в загородном доме в бытовом плане отличается от жизни в городской квартире. Первое главное отличие - отсутствие канализации в при

Приветствую вас, дорогие читатели. Сегодня хочу поделиться своими соображениями относительно планировки дома. Самое замечательное в строительстве дома для себя как раз то, что можно дать волю фантазии и по-возможности построить всё, что душеньке угодно. На недавнем собрании в нашем СНТ, я как раз услышала разговор двух соседей о том, что надо было запланировать прачечную. Её, ух, как не хватает. И действительно, почему бы и нет? В современном доме, судя по готовым планировкам, которые можно увидеть на просторах интернета, есть кухня-столовая, часто совмещенная с гостиной, спальня хозяев дома, она же мастер-спальня, а также детские комнаты, сан.узлы и отдельное помещение типа топочной/бойлерной. Также иногда запланирована спальня для гостей. И очень немногие вспоминают про такие, на мой взгляд, важные помещения, как кладовые, тамбур, а также прачечная.

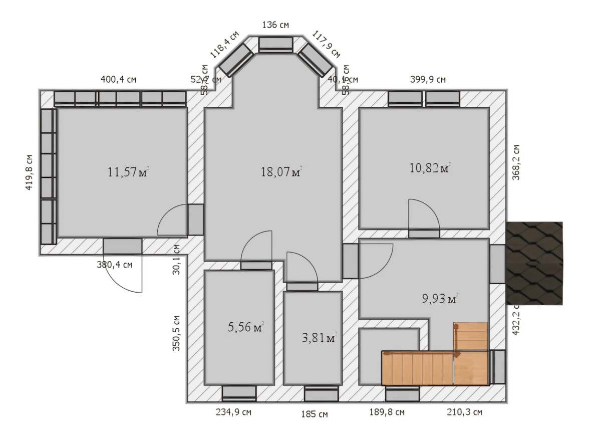
Возможная планировка первого этажа дома без доп.помещений
Возможная планировка первого этажа дома без доп.помещений

Жизнь в загородном доме в бытовом плане отличается от жизни в городской квартире. Первое главное отличие - отсутствие канализации в привычном смысле слова, а также очищенной городкой воды. В доме у моих свекров установлена станция биоочистки. Все моющие средства должны быть с пометкой биоразлагаемые, иначе бактерии в септике просто не выживут. Земля и грязь, которая может попасть в канализацию при мытье овощей, а также если вылить ведро с грязной водой после мытья полов в унитаз, также негативно сказывается на работе системы. В общем, септик требует к себе внимания, его надо обслуживать и всячески беречь.

Вторая вещь, о которой стоит подумать заранее - это табмур. Мы строим дом в Ленинградской области. Зимы бывают разные, но неизменно со снегом и в отдельные периоды с морозом до - 20, а то и ниже. Поэтому нужно оградить основное помещение дома от попадания холодного воздуха с улицы. И сквозняков меньше, и на теплопотерях сэкономить получится. А также можно отсечь зону с обувью и верхней одеждой.

Всем известный эпизод из горячо мною любимого фильма "Девчата" в тамбуре их домика.
Всем известный эпизод из горячо мною любимого фильма "Девчата" в тамбуре их домика.

Третьим пунктом отмечу наличие кладовых или погреба в доме. Очень полезная вещь, особенно если есть огород либо страсть к закруткам. Все запасы и банки можно спокойно разместить, если заранее продумать места хранения. Ну и всевозможные снасти мужа-рыбака тоже нужно где-то складировать.

И последнее, но немаловажное помещение - это прачечная. Кажется, что можно обойтись по привычке и без неё. Но с ней гораздо комфортнее. Ничто не испортит облик ванной комнаты или кухни, ведь жужащая на 1000 оборотах стиральная машина или грязное белье домочадцев точно не попадут на глаза вашим гостям. А гладильная доска с утюгом будут всегда под рукой.

Прачечная от моего любимого дизайнера Сары Ричардсон
Прачечная от моего любимого дизайнера Сары Ричардсон

Ещё одним немаловажным моментом является расположение помещений относительно сторон света, но и о своих редпочтениях не стоит забывать. Например, спальня с окнами на восток предполагает, что вы будете бодры и веселы с самого утра с первыми лучами солнца. Но если вы по натуре сова и не привыкли к ранним подъемам, то вряд ли это можно считать преимуществом. Одно могу сказать точно - парковка и кухня должны располагаться в тени. У работающей плиты всегда жарко. А если к ней еще добавить разогретый духовой шкаф и окна кухни смотрят на юг или юго-запад, то можно даже и не тратиться на строительство бани, особенно летом. Что касается парковки, то невсегда получается сразу сделать над ней навес, поэтому лучше расположить машину в тени дома и заранее подумать об обустройстве заезда на участок именно с этой стороны.

Честно взято в интернете. Сразу удалю по просьбе автора.
Честно взято в интернете. Сразу удалю по просьбе автора.

Кстати, обратила внимание, что сейчас в моде объединенное пространство кухня-столовая-гостиная. На мой взгляд, это не лучшая идея. Особенно, когда семья большая и не практикуется доставка готовой еды. Шум и запахи во время приготовления пищи, мытья посуды и прочих моментов вряд ли дадут расслабиться кому-то в гостиной перед телевизором. Опять же исхожу в этом вопросе из личного опыта. Поэтому в новом доме планирую кухню сделать изолированной от столовой-гостиной. Насколько это будет верным решением, узнаю позже, а пока мы приближаемся к строительству второго этажа и я надеюсь, что очень скоро мы сможем дотянуться до мечты!