...Читать далее
Дом спроектирован таким образом, что все спальни находятся на 2 этаже.
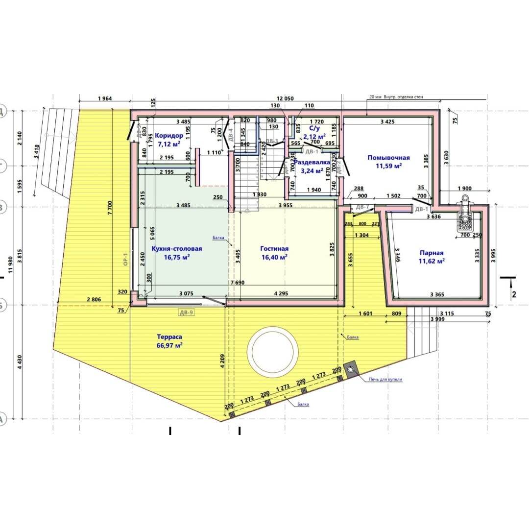
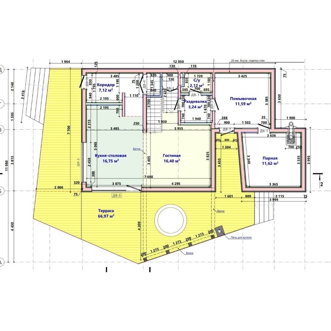
На первом этаже расположены: прихожая, кухня-столовая, гостиная, парная, помывочная, раздевалка и санузел. Из столовой можно выйти на террасу площадью более 66 м².
На втором этаже расположены: 3 спальни, санузел, просторный холл площадью более 30 м² и балкон.
Технико-экономические показатели:
Этажность здания – 2 жтажа
Расчётный метраж – 274 м²
Высота 1 этажа – 2,95
Высота 2 этажа – 3,66
Общая площадь помещений – 148 м²
Площадь застройки – 164 м²
В проекте полный комплект документов:
— архитектурный раздел
— конструктивный раздел
— 3D-модель дома
— 3D-модель каркаса
— карта раскроя пиломатериала
— визуализация проекта
Напишите в сообщение сообщества, чтобы получить эскизный проект этого дома.