Найти в Дзене

Дизайн-проект двухкомнатной квартиры 69 м2 в ЖК Зиларт

Сегодня рассказываем о квартире для семейной пары. Задача была создать практичный, светлый интерьер, в котором нет ничего лишнего, например, телевизоров. Важно было использовать всё пространство, не загромождая его. Что мы сделали из перепланировки. Первое – объединили маленький санузел (1,5 м2) с постирочной. У нас получилось два санузла 3,9 и 4,6 м2. Второе – демонтировали перегородку между кухней и гостиной (в один блок высотой), убрали в гостиной маленький закуток и получили увеличение площади на 1.5 м2. Новая перегородка возводилась с учетом дверного проема между кухней и гостиной. Это раздвижные двери с направляющими на стене. Этот вариант дешевле и проще, чем двери со скрытой коробкой. Оформление светлое, лаконичное: на полу кварцвиниловый ламинат Aquafloor Parquet Glue с четырехсторонней прокрашенной фаской, укладка елочкой. Потолок натяжной с теневым зазором. Стены выровнены под светлые однотонные обои Andrea Rossi Spectrum PRO. В гостиной кроме дивана и шкафа расположены два

Сегодня рассказываем о квартире для семейной пары. Задача была создать практичный, светлый интерьер, в котором нет ничего лишнего, например, телевизоров. Важно было использовать всё пространство, не загромождая его.

Портфолио Remplanner
Портфолио Remplanner

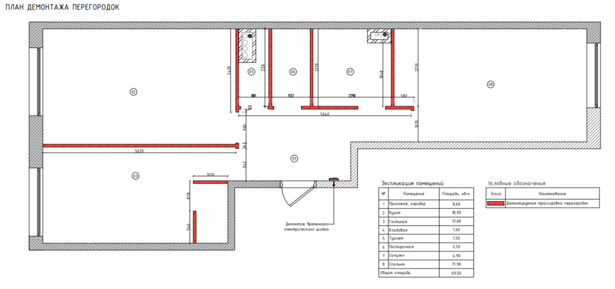
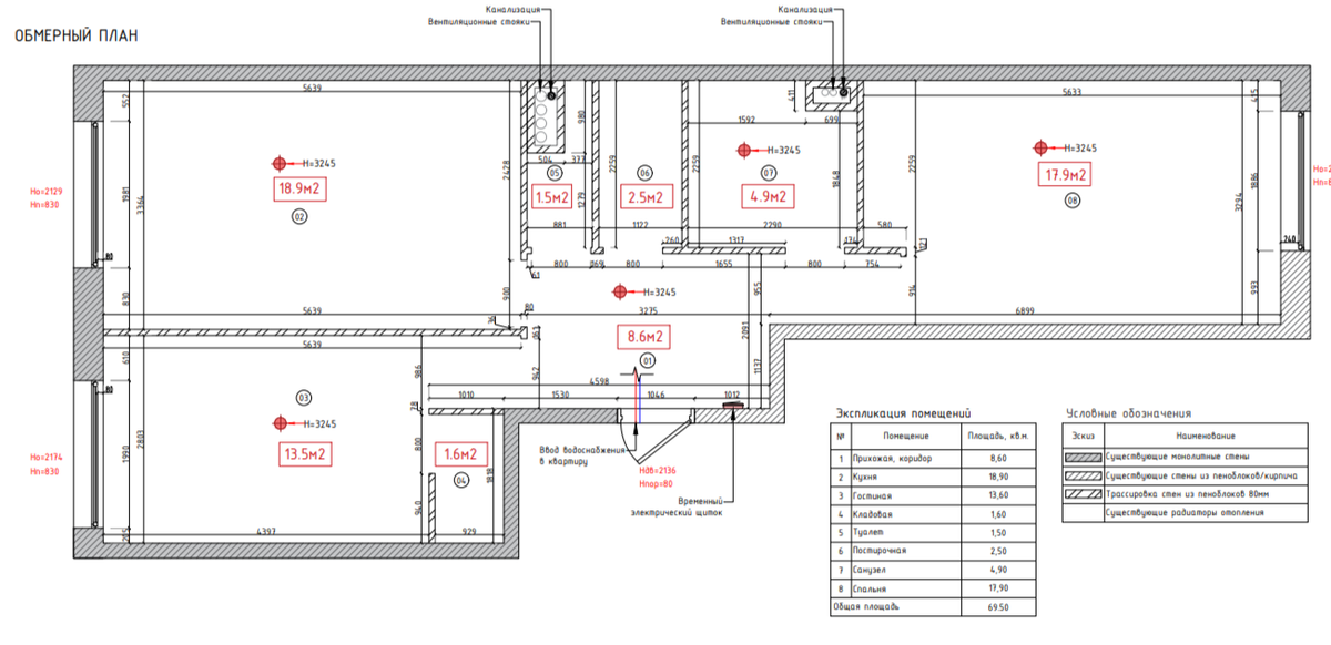
Что мы сделали из перепланировки. Первое – объединили маленький санузел (1,5 м2) с постирочной. У нас получилось два санузла 3,9 и 4,6 м2. Второе – демонтировали перегородку между кухней и гостиной (в один блок высотой), убрали в гостиной маленький закуток и получили увеличение площади на 1.5 м2.

Новая перегородка возводилась с учетом дверного проема между кухней и гостиной. Это раздвижные двери с направляющими на стене. Этот вариант дешевле и проще, чем двери со скрытой коробкой.

Портфолио Remplanner
Портфолио Remplanner

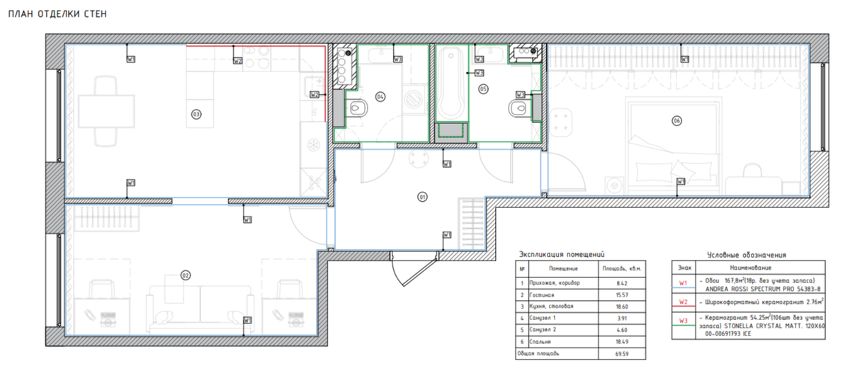
Оформление светлое, лаконичное: на полу кварцвиниловый ламинат Aquafloor Parquet Glue с четырехсторонней прокрашенной фаской, укладка елочкой. Потолок натяжной с теневым зазором. Стены выровнены под светлые однотонные обои Andrea Rossi Spectrum PRO.

Портфолио Remplanner
Портфолио Remplanner

В гостиной кроме дивана и шкафа расположены два рабочих стола, как раз по бокам от дивана. Из интересного, что можно взять на заметку – теплый пол под столами. Если вы работаете из дома, то в холодное время года точно оцените наличие этого островка тепла под ногами. Выбранное напольное покрытие прекрасно с теплым полом сочетается.

Портфолио Remplanner
Портфолио Remplanner

Декор пространства минимален: несколько вертикальных молдингов, картина над диваном, рисунок над одним рабочим столом и оригинальные бра Maytoni Trame C808WL-L3W над вторым.

Портфолио Remplanner
Портфолио Remplanner

Раздвижные двери позволяют объединить пространства, сохраняя барьер для всех кухонных запахов во время готовки.

Портфолио Remplanner
Портфолио Remplanner

Кухня площадью 18,9 м2 позволила разместить и просторную П-образную кухню, и небольшую зону столовой у окна.

Портфолио Remplanner
Портфолио Remplanner

Кухня современная, в три яруса, навесные модули одной глубины. Фасады гладкие, в полуматовой эмали сложного оттенка, без ручек. Столешница – пластик, фартук из широкоформатного светлого керамогранита.

Портфолио Remplanner
Портфолио Remplanner

Кухня укомплектована всей современной техникой и обладает обширными зонами хранения. Это удобно, если вы привыкли хранить дома большой запас бакалеи и у вас много разнообразной посуды.

Портфолио Remplanner
Портфолио Remplanner

Столовая зона у окна с черными рамами, поэтому стол и стулья выбрали с черными деревянными основаниями. Как и все в квартире, эта зона минималистична: на стене подборка черно-белых фото, над столом группа из трех светильников на длинных подвесах. Обстановка для тех, кто любит простоту в поддержании порядка – минимум свободных поверхностей для накопления хлама.

Портфолио Remplanner
Портфолио Remplanner

В санузлы и спальню попадаем из просторного холла с зоной прихожей. Здесь у нас тот же кварцвинил, уложенный ёлочкой – идеальный материал, если нужен пол единым контуром, потому не боится сырости и каблуков, так что в коридорах и прихожих служит без проблем.

Портфолио Remplanner
Портфолио Remplanner

Справа от входной двери большой шкаф для одежды и обуви, слева двери в гостиную, напротив – ростовое зеркало высотой 180 см. Возле зеркала пуф, здесь он выполняет функцию тумбы, куда можно бросить ключи, но может быть передвинут к двери и заменить банкетку.

Портфолио Remplanner
Портфолио Remplanner

В спальне была выполнена шумоизоляция стены в изголовье кровати, а противоположную стену полностью занимает большой встроенный шкаф с распашными дверьми.

Портфолио Remplanner
Портфолио Remplanner

Помимо кровати в мягкой обивке здесь есть тумба прикроватная, большой туалетный столик с пеналом для косметики и ростовое зеркало рядом с дверью.

Санузлы оформлены в одной плитке, это керамогранит 120х60 см «Bluezone» Stonella Crystal Matt. Красивый теплый оттенок с текстурой бежевого камня.

Плитка сочетается у нас с МДФ-панелями, покрытыми эмалью того же оттенка, что и кухня. В обоих санузлах установлены инсталляции и хромированная сантехника.

Ванна простая, акриловая, с экраном из плитки, нишей для ног и встроенными полками. В качестве защиты от воды – тканевая штора на хромированном держателе.

Портфолио Remplanner
Портфолио Remplanner

Во втором санузле, объединенном с прачечной, разместились стиральная и сушильная машины, большое число мест хранения для грязного и чистого белья, а также средств для стирки, и умывальник с инсталляцией.

Портфолио Remplanner
Портфолио Remplanner

Над инсталляцией здесь спрятан водонагреватель для подачи воды и в кухню (слева) и в ванную комнату (справа), а также система защиты от протечек (датчики установлены в обоих санузлах).

Портфолио Remplanner
Портфолио Remplanner

Мы разрабатываем проекты с учетом пожеланий и бюджета заказчиков. Данный ремонт планировался с расчетом на качественные и недорогие материалы. В нашем портфолио вы найдете примеры самых разных интерьеров, от роскошных и дорогих, до скромных и бюджетных. А на сайте всегда можно оставить заявку на разработку индивидуального проекта.