...Читать далее
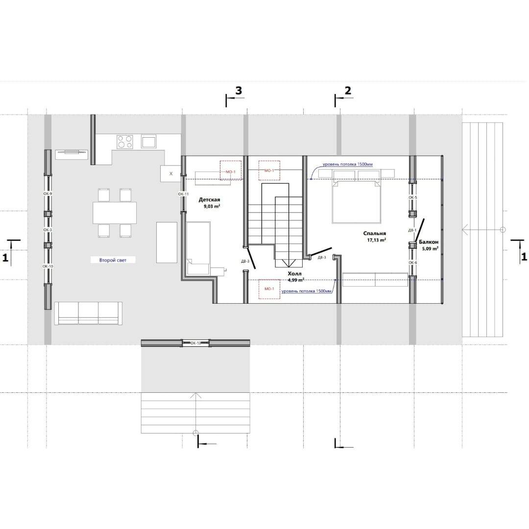
Оригинальным решением дома является второй свет. Благодаря этому в доме много света и создаётся ощущение простора.
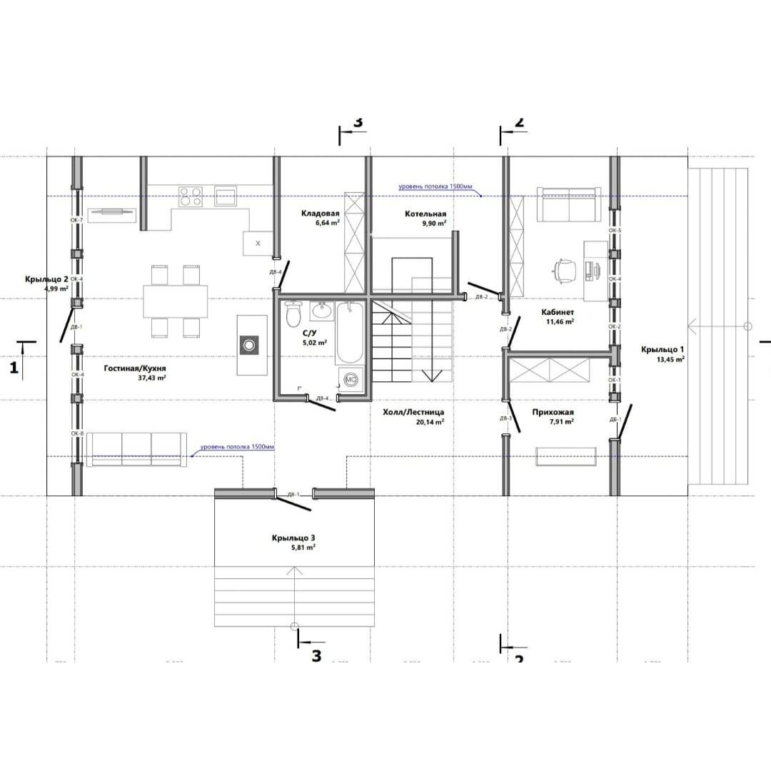
На первом этаже расположены: кухня-гостиная с камином, бакинет, санузел, котельная и большая кладовая.
На втором этаже: детская и спальня с выходом на балкон.
Технико-экономические показатели:
Этажность здания – 2 этажа
Расчётный метраж – 195 м²
Высота 1 этажа – 2,7
Высота 2 этажа – 5,5
Общая площадь помещений – 158 м²
Площадь застройки – 143 м²
В проекте полный комплект документов:
— архитектурный раздел
— конструктивный раздел
— 3D-модель дома
— 3D-модель каркаса
— карта раскроя пиломатериала
— визуализация проекта
Напишите в сообщение сообщества, чтобы получить эскизный проект этого дома.