Добавить в корзинуПозвонить
Найти в Дзене

Зачем мы сломали все стены и возвели заново на том же месте??? Сколько это стоило и стоило ли того?

«Зачем ты все стены поломала, планировка-то не поменялась…» - спросила меня одна знакомая, мельком взгляну на планировку до и после. А так ли уж не поменялась?... Немного предыстории: квартиру мы купили с отделкой. Получили ключи, демонтировали все под ноль и начали ремонт) Почему мы, такие неразумные, покупали, при этом, квартиру с отделкой – расскажу в отдельной статье. А теперь к сути вопроса. Я довольно осознанно подходила к выбору квартиры и планировки, так как выбор – был, и остановилась на той, которая показалась мне максимально подходящей под наши хотелки. А хотелки были примерно такие: - три спальни (наша с мужем и каждому ребенку по комнате, так как хоть они и мальчики оба, но разница в возрасте у них грандиозная) - большая кухня-гостиная - 2 санузла (один из которых должен быть при входе в квартиру, ибо у нас есть пес, которому лапы мыть надо до того, как он исколесил всю квартиру) - гардеробная - постирочная, она же – хоз. блок По сути, на этапе выбор квартиры – это были в

«Зачем ты все стены поломала, планировка-то не поменялась…» - спросила меня одна знакомая, мельком взгляну на планировку до и после.

А так ли уж не поменялась?...

Немного предыстории: квартиру мы купили с отделкой. Получили ключи, демонтировали все под ноль и начали ремонт) Почему мы, такие неразумные, покупали, при этом, квартиру с отделкой – расскажу в отдельной статье.

А теперь к сути вопроса. Я довольно осознанно подходила к выбору квартиры и планировки, так как выбор – был, и остановилась на той, которая показалась мне максимально подходящей под наши хотелки.

А хотелки были примерно такие:

- три спальни (наша с мужем и каждому ребенку по комнате, так как хоть они и мальчики оба, но разница в возрасте у них грандиозная)

- большая кухня-гостиная

- 2 санузла (один из которых должен быть при входе в квартиру, ибо у нас есть пес, которому лапы мыть надо до того, как он исколесил всю квартиру)

- гардеробная

- постирочная, она же – хоз. блок

По сути, на этапе выбор квартиры – это были все пожелания.

--------------------------

В целом, изначальная планировка максимально меня устраивала. Но, нужно понимать, что на этапе приобретения квартиры точных размеров не имеется. А дьявол, как известно, кроется в деталях) И, когда я уже получила тех. паспорт и сама все обмерила, стало ясно, что не все так легко и просто, как могло показаться на первый взгляд…

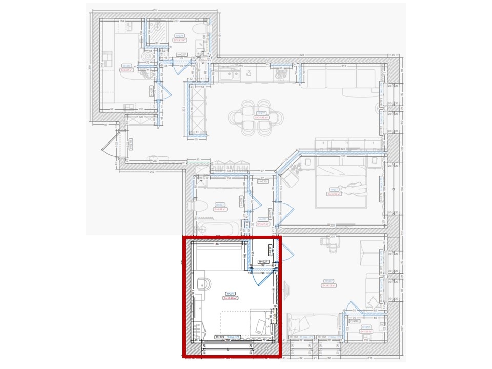
1. Где чья комната будет располагаться – понятно было сразу. Самую большую отдали самому маленькому). А из двух оставшихся крошечных комнатам, нашей спальней стала та, куда просто элементарно помещалась двуспальная кровать с подходами с обеих сторон. Соответственно, старшему ребенку досталось самое маленькое помещение. И стала я думать, как же мне туда его вместить (ребенка, в смысле). Хотелось и удобное спальное место, и места хранения и рабочую зону. А, в идеале, еще и дополнительное спальное место. Мы любим гостей и они у нас часто. И у старшенького бывают гости, и мы никогда не против «ночевок». Подросткам это в кайф, а я всегда придерживаюсь мнения: пусть лучше кто-то ночует у нас, чем ребенок ночует где-то.

Покрутив эту комнату несколько дней вдоль и поперек, я нашла, как мне кажется, идеальное расположение в ней всех элементов.

Но для этого, пришлось увеличивать размер абсолютно бездарной ниши, спроектированной застройщиком, таким образом, чтобы там образовалось место для кровати. И - вся стена, естественно, отправилась на демонтаж и возведение на новом месте со сдвигом в каких-то 20см. Но именно эти 20 сантиметров были просто необходимы для получения на выходе функционального, удобного, эргономичного пространства.

2. Комната младшего не претерпела никаких изменений, кроме того, что в ней возникла целая отдельная гардеробная) Решение кому-то покажется спорным, но я всегда против шкафов (даже встроенных) там, где их можно избежать. Здесь - можно было. Более того, для детской комнаты, вечно заваленной игрушками под самый потолок, мне кажется – нет решения лучше: ведь в самом крайнем случае, можно просто все затолкать в тайную комнату)

3. Наша спальня. Ну, здесь важно сказать, что от спальни мне не нужно ничего, кроме кровати, подходов к ней с двух сторон и прикроватной тумбочки. Именно поэтому, я без сожаления еще и уменьшила ее в пользу гостиной. На те же 20см. Но всего лишь эти 20 см вкупе с диагональной стеной дали мне возможность разместить большой обеденный стол, сохранив нормальные проходы вокруг него.

"Упаковка" этой комнаты далась мне сложнее всего. Переделывала всю идею в самый последний момент. Спасибо моим невозмутимым строителям)
"Упаковка" этой комнаты далась мне сложнее всего. Переделывала всю идею в самый последний момент. Спасибо моим невозмутимым строителям)

4. Да и от основного санузла я тоже «дернула» немного в пользу кухни. Ибо ванная и так осталась вполне себе приличных размеров, а вот на кухне мне это место было просто необходимо – там будет бар)

5. Также в пользу кухни уменьшила зону прихожей – коридора. И тоже не на много. Всего лишь на 60 см, чтобы встроить колонны с кухонной техникой. И, опять же, эти сантиметры дали мне возможность создать эргономичную обеденную зону.

Только благодаря всем "подвижкам"  сюда встал стол, который не будет мешать проходу и комфортному пребыванию в зоне готовки.
Только благодаря всем "подвижкам" сюда встал стол, который не будет мешать проходу и комфортному пребыванию в зоне готовки.

6. Ну и пространство, с которым я намучилась, пожалуй, больше всего – это закуток слева от входа. Мне точно там нужен был душ (напоминаю, - пес). И только там оставалось место под гардеробную и постирочную. Вариантов было миллион:

- и отдельно гардеробная со входом сразу из прихожей, отдельно – постирочная

- и зона постирочной в санузле

- да и расположить все это можно было совершенно по-разному.

Остановилась вот на таком варианте:

Расширение мокрых зон за счет нежилых помещений - допустимо, если что)
Расширение мокрых зон за счет нежилых помещений - допустимо, если что)

Взвесив все «за» и «против» поняла, что для меня будет супер-удобно, когда стиральная и сушильная машины будут сразу непосредственно в гардеробной (вентиляция – предусмотрена). Не знаю, как у кого, но лично меня прям сильно нервирует необходимость таскать куда-то сушить белье, потом – раскладывать его по разным местам в разных комнатах по разным шкафам. Здесь у меня все будет на расстоянии вытянутой руки.

Вот и получилось, что, ради 20 см по одной стене, 20 см – по другой и 60 см – по третьей, мы ломали почти все стены и выстраивали заново.

Теперь к главному - стоимость всего удовольствия:

  • 30 000р. – демонтаж + монтаж стен
  • около 45 000р. обошлись блоки + клей

Итого: 75 000р., которые дали мне возможность получить на тех же квадратных метрах в разы более удобную планировку и расположение мебели. А еще – бонус в виде большого открытого пространства при входе в квартиру: сразу от входной двери открылась перспектива на окно и зону гостиной.

Стоили они того? Для меня, однозначно – ДА!

P. S. Ни одна несущая конструкция не пострадала.