Найти в Дзене
SAPAROVA STUDIO design interior

Драгоценные метры: как изменить жизнь с помощью правильной планировки

Многие счастливые обладатели собственной недвижимости уверены: работа дизайнера заключается в том, чтобы красиво развесить картины по стенам и выбрать нужный оттенок обоев, отражающий внутренний мир и вкусы заказчика. На деле всё куда серьёзней. Грамотный архитектор может стать настоящим магом и расширить пространство не только визуально, но и вполне реально. Например, превратить однокомнатную квартиру в трёхкомнатную, отвоевать несколько драгоценных метров и создать дополнительную детскую, санузел или рабочую зону. Если можно жить комфортнее и красивее с нужным количеством комнат и пространств, такую возможность нельзя упускать. Работа дизайн-студии «SAPAROVA STUDIO», как правило, начинается с планировки пространства. Каждая семья – это отдельная Вселенная со своими потребностями, желаниями, стилем жизни. Типовая планировка никак не может этого учесть, а наша команда сделает всё, чтобы квартира стала комфортным и красивым. В типовых планировках от застройщика мы чаще всего видим обил

Многие счастливые обладатели собственной недвижимости уверены: работа дизайнера заключается в том, чтобы красиво развесить картины по стенам и выбрать нужный оттенок обоев, отражающий внутренний мир и вкусы заказчика. На деле всё куда серьёзней.

Грамотный архитектор может стать настоящим магом и расширить пространство не только визуально, но и вполне реально. Например, превратить однокомнатную квартиру в трёхкомнатную, отвоевать несколько драгоценных метров и создать дополнительную детскую, санузел или рабочую зону. Если можно жить комфортнее и красивее с нужным количеством комнат и пространств, такую возможность нельзя упускать.

Работа дизайн-студии «SAPAROVA STUDIO», как правило, начинается с планировки пространства. Каждая семья – это отдельная Вселенная со своими потребностями, желаниями, стилем жизни. Типовая планировка никак не может этого учесть, а наша команда сделает всё, чтобы квартира стала комфортным и красивым. В типовых планировках от застройщика мы чаще всего видим обилие неиспользуемых площадей — закутки, коридоры, проходы.

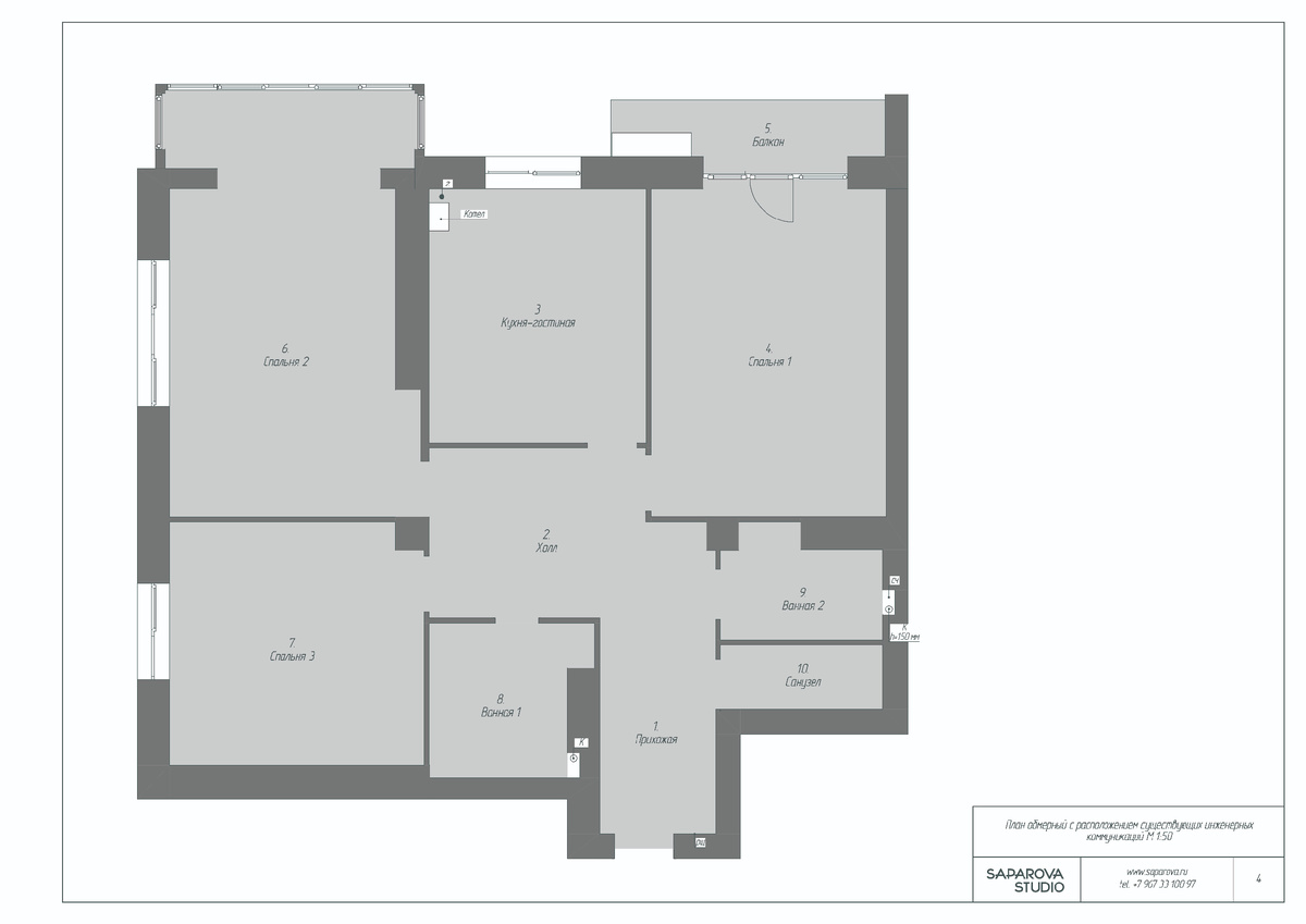
ДО грамотной работы дизайн-студии «SAPAROVA STUDIO»
ДО грамотной работы дизайн-студии «SAPAROVA STUDIO»

Зачем же менять то, что уже предложено и сделано застройщиком? Для того чтобы ваша квартира стала комфортным местом для жизни, отдыха или инвестиций!

Давайте посмотрим, как можно создать плюс одну комнату в существующей квартире от застройщика.

Главный принцип дизайнеров нашей дизайн-студии «SAPAROVA STUDIO» при проектировании – по максимуму использовать квадратные метры! Каждый уголок квартиры или дома должен быть функционально использован.

Например, в этой квартире для заказчика вместо коридора и малоиспользуемых площадей команда студии спроектировала полноценную гостиную. Трёхкомнатная квартира стала четырёхкомнатной!

Такое решение позволило не только предусмотреть отдельные комнаты для всех членов семьи, но и продумать максимально комфортную логистику.

От гостиной, как от сердца квартиры, расходятся другие помещения: две детские, мастер-спальня, гостиная, ванная. Планировка даёт возможность почувствовать себя в едином пространстве, но при этом создать индивидуальные места для отдыха, работы и сна для всех членов семьи.

В арсенале проектов дизайн-студии «SAPAROVA STUDIO» сотни проектов, которые полностью поменяли представление о жилом пространстве благодаря такой smart-планировке. Вот советы от наших дизайнеров для тех, кто в самом начале пути:

  1. Всегда делайте выбор в пользу помещений, которые вы будете использовать чаще всего.
  2. Избегайте бесполезных коридоров, лишних углов и проходов. Это отнимает не только ваши драгоценные метры, но и увеличивает расходы на отделку, поиск нетипичных материалов и решений.
  3. Обратите внимание на логистику и удобство перемещения по квартире. Дизайнеры помогут максимально эффективно использовать каждый сантиметр вашего пространства.

Если вы ещё сомневаетесь, обращаться ли к профессиональному дизайнеру за проектом квартиры - только подумайте, сколько вам стоили малоиспользуемые квадратные метры и ремонт и умножьте это на проценты по ипотеке. А вот что по-настоящему бесценно – это те эмоции, которые вы и ваша семья будете получать много лет в новой гостиной.

ПОСЛЕ грамотной работы дизайн-студии «SAPAROVA STUDIO»
ПОСЛЕ грамотной работы дизайн-студии «SAPAROVA STUDIO»

За грамотной планировкой – в «SAPAROVA STUDIO»!