Добавить в корзинуПозвонить
Найти в Дзене
DIVAN.RU

Брутальная студия 26 кв.м для студента

В этой студии живет молодой студент, поэтому для ее оформления выбрали минималистичный, слегка брутальный дизайн в серых тонах. Посмотрим, где на микроплощади нашли место для спальни и как организовали хранение. Объект: студия 26 кв.м, ЖК «Большая Академическая 85», г. Москва
Автор интерьера: дизайнер Светлана Тяговская, студия SST DESIGN
Бюджет проекта: 1,7 млн рублей Отделку от застройщика оставили, только покрасили стены, заменили натяжной потолок, двери, плинтусы и розетки. «Проект интересен тем, что на 26 кв. м мы сделали почти трехкомнатную квартиру. Есть кухня, диван как второе спальное место, обеденная зона, рабочий стол и спальня. При этом достаточно мест хранения», — рассказывает дизайнер. Чтобы зонировать пространство, кухню сделали проходной — для этого пришлось заново проложить коммуникации , демонтировать старый и установить новый натяжной потолок. Гарнитур здесь параллельный: с одной стороны находятся высокие пеналы с техникой, с другой — полуостров с мойкой и рабочей по
Оглавление

В этой студии живет молодой студент, поэтому для ее оформления выбрали минималистичный, слегка брутальный дизайн в серых тонах. Посмотрим, где на микроплощади нашли место для спальни и как организовали хранение.

Проект дизайнера Анастасии Тяговской и студии SST DESIGN, автор фото Антон Бояршинов
Проект дизайнера Анастасии Тяговской и студии SST DESIGN, автор фото Антон Бояршинов

Объект: студия 26 кв.м, ЖК «Большая Академическая 85», г. Москва
Автор интерьера: дизайнер Светлана Тяговская, студия SST DESIGN
Бюджет проекта: 1,7 млн рублей

Отделку от застройщика оставили, только покрасили стены, заменили натяжной потолок, двери, плинтусы и розетки.

«Проект интересен тем, что на 26 кв. м мы сделали почти трехкомнатную квартиру. Есть кухня, диван как второе спальное место, обеденная зона, рабочий стол и спальня. При этом достаточно мест хранения», — рассказывает дизайнер.
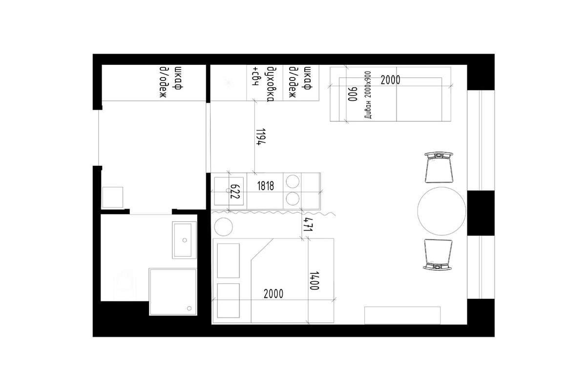
Планировочное решение
Планировочное решение

Кухня

Чтобы зонировать пространство, кухню сделали проходной — для этого пришлось заново проложить коммуникации , демонтировать старый и установить новый натяжной потолок. Гарнитур здесь параллельный: с одной стороны находятся высокие пеналы с техникой, с другой — полуостров с мойкой и рабочей поверхностью.

Проект дизайнера Анастасии Тяговской и студии SST DESIGN, автор фото Антон Бояршинов
Проект дизайнера Анастасии Тяговской и студии SST DESIGN, автор фото Антон Бояршинов

Мебель делали на заказ под нужные размеры. От вытяжки отказались, варочную панель выбрали на две конфорки. Над полуостровом находится двухуровневая подвесная конструкция. С ее помощью добились эффекта полноценного гарнитура и выкроили дополнительные места для хранения.

Спальня-гостиная

Одна комната совмещает в себе сразу четыре функции: гостиную, столовую, рабочую зону и спальню.

Ближе к окну поставили диван, который выделяет зону гостиной. Выбор остановили на раскладной модели Нумо от бренда divan.ru — он служит дополнительным спальным местом. На противоположной стене расположили ТВ-зону и рабочий стол.

На фото: диван Нумо Velvet Grey от 35 990₽* >>

-7

▶️ Этот диван сейчас можно купить со скидкой 16 000₽*. Широкий выбор мебели по выгодным ценам ждет на большой летней распродаже в divan.ru

Прием: откосы окон обрамили шпонированными панелями. Теплая и уютная отделка разбавила монохромный дизайн, она дарит визуальный и тактильный комфорт. Теперь на подоконнике можно устроиться с книгой или чашкой кофе.

Обеденный стол поставили между окнами. Внимание привлекают мягкие стулья в солнечно-желтой обивке. Каждую зону визуально выделили с помощью потолочных спотов, а над столом повесили стильный минималистичный подвес.

Проект дизайнера Анастасии Тяговской и студии SST DESIGN, автор фото Антон Бояршинов
Проект дизайнера Анастасии Тяговской и студии SST DESIGN, автор фото Антон Бояршинов

Основным спальным местом служит двуспальная кровать Пайл от divan.ru. Кровать «спрятали» за кухонным полуостровом. Благодаря встроенному на потолке карнизу спальное место легко превращается в приватную закрытую зону.

Хозяин квартиры увлекается спортивными машинами, поэтому над диваном и над кроватью повесили постеры с машинами. На постере над кроватью — машина-мечта молодого человека.

В кадре кровать Пайл 140, divan.ru >>

Входная зона

По правую руку от входа расположили встроенную систему шкафов, в которой предусмотрели основное хранение. Завершает конструкцию. колонна со встроенным холодильником. Зеркало в полный рост на входной двери отражает свет от окна, делая небольшое помещение «воздушным» и более светлым.

Санузел

В санузле не меняли отделку от застройщика — установили стиральную машину и заменили раковину.

---------------
Оцените интерьер в комментариях, а если материал понравился — не забудьте поставить лайк👍

🖤divan.ru — не только блог про интерьеры, но и производитель доступной дизайнерской мебели. Ищите новые идеи и переходите на сайт, чтобы воплотить их в жизнь.

*Цены актуальны на момент публикации статьи