Добавить в корзинуПозвонить
Найти в Дзене
Дизайн&Ремонт

Яркая 1-комнатная квартира и нюансы ремонта квартир в Крыму.

Закончен проект однокомнатной квартиры. По счастливому стечению обстоятельств, мы сошлись с заказчиком в любви к ярким интерьерам☺!
Квартира находится в Крыму, и если с проектом у нас возникло полное взаимопонимание, то с ремонтом мы столкнулись с рядом сложностей.
Но все по порядку))
Дано: Однокомнатная квартира 52 метра. Казалось бы совсем не мало, но из-за конфигурации квартиры довольно сложно превратить ее в двухкомнатную. В квартире выполнена стяжка и оштукатуривание внешних стен кроме санузла, так как там не возведены перегородки. Но выход был найден и мы создали небольшую спальню с кроватью на подиуме. С учетом того, что заказчику не требуется большая спальня с туалетным столиком, большой кроватью, взятый вариант оказался очень удобным! Цветовую гамму кухни-гостиной и прихожей взяли цвета глубокого моря, теплый терракот как акцентные цвета и мягкий сливочный для базового цвета. Все это поддерживается текстурой дерева мебели и декором из ротанга над диваном. Цвет плетеного ковра
Оглавление

Закончен проект однокомнатной квартиры. По счастливому стечению обстоятельств, мы сошлись с заказчиком в любви к ярким интерьерам☺!
Квартира находится в Крыму, и если с проектом у нас возникло полное взаимопонимание, то с ремонтом мы столкнулись с рядом сложностей.
Но все по порядку))
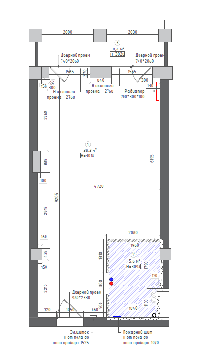
Дано: Однокомнатная квартира 52 метра. Казалось бы совсем не мало, но из-за конфигурации квартиры довольно сложно превратить ее в двухкомнатную.

Обмерный план квартиры
Обмерный план квартиры

В квартире выполнена стяжка и оштукатуривание внешних стен кроме санузла, так как там не возведены перегородки.

-2

Но выход был найден и мы создали небольшую спальню с кроватью на подиуме. С учетом того, что заказчику не требуется большая спальня с туалетным столиком, большой кроватью, взятый вариант оказался очень удобным!

Планировочное решение
Планировочное решение

Цветовую гамму кухни-гостиной и прихожей взяли цвета глубокого моря, теплый терракот как акцентные цвета и мягкий сливочный для базового цвета. Все это поддерживается текстурой дерева мебели и декором из ротанга над диваном.

КУХНЯ-ГОСТИНАЯ И ПРИХОЖАЯ

Работа автора
Работа автора
работа автора
работа автора

Цвет плетеного ковра так же поддерживает цвет стен и дивана

работа автора
работа автора
работа автора
работа автора
работа автора
работа автора
работа автора
работа автора

СПАЛЬНЯ

Небольшая спальня в изголовье имеет акцент того же синего оттенка моря и функциональный стеллаж, нижняя часть которого является местом хранения подушек и одеяла с открыванием в верхней части, а подиум имеет открывающуюся поверхность для хранения редко используемых вещей.

Основной цвет стен - какао с молоком

работа автора
работа автора
работа автора
работа автора
работа автора
работа автора

САНУЗЕЛ

Санузел выполнен в белов монохромной плитке, инсталляция обшита МДФ панелью сине-серого оттенка.
Белая монохромная плитка так же пожелание заказчика, с чем я была совершенно согласна, а точнее, ни чего не имела против.

работа автора
работа автора
работа автора
работа автора
работа автора
работа автора
работа автора
работа автора

Теперь перейдем к нюансам ремонта в Крыму.

СЛОЖНОСТИ РЕМОНТА В КРЫМУ

Нет, проблем с бригадами или компаниями нет, но, вот стоимость ремонта, включая материалы выйдет в очень приличную сумму.

1. За квартиру 52 метра нам предложили цену за ремонт в размере 3 700 000 рублей.
Это: без натяжного потолка, без стяжки (она уже сть), без чистовых материалов. Материалы учтены только черновые и для инженерных сетей.
В общем, если не касаться цен на работы, то очень большую сумму дают материалы, так как по разным позициям цена дороже чем во вне Крыма от 20 до 200%. Такая же ситуация в Краснодаре.

2. Выбор чистовых материалов очень скудный, если Вы хотите стильный ремонт, то придется все везти из Москвы или другого города. Та же ситуация и с сантехникой.

3. Отдельная история с плиткой. Выбор маленький

4. Хотите по-дешевле? ОЗОН! Но, нет, он там есть, но туда почти ни чего из материалов не доставляют

5. Такие материалы как блоки нужно ждать

6. Режим летнего времени, т.е. летом в некоторых городах Крыма работы проводить нельзя.

В общем, ремонт в Крыму не самая простая задача.

Мы все повезем из Москвы.

Всем хорошего дня!
Отдельная благодарность за лайки и комментарии!

#ремонтквартиркрым, #дизайняркойквартиры, #квартирыкрым