Добавить в корзинуПозвонить
Найти в Дзене
Сканди | Интерьер

А вы бы согласились тут жить? Однушку в хрущевке изменили до неузнаваемости

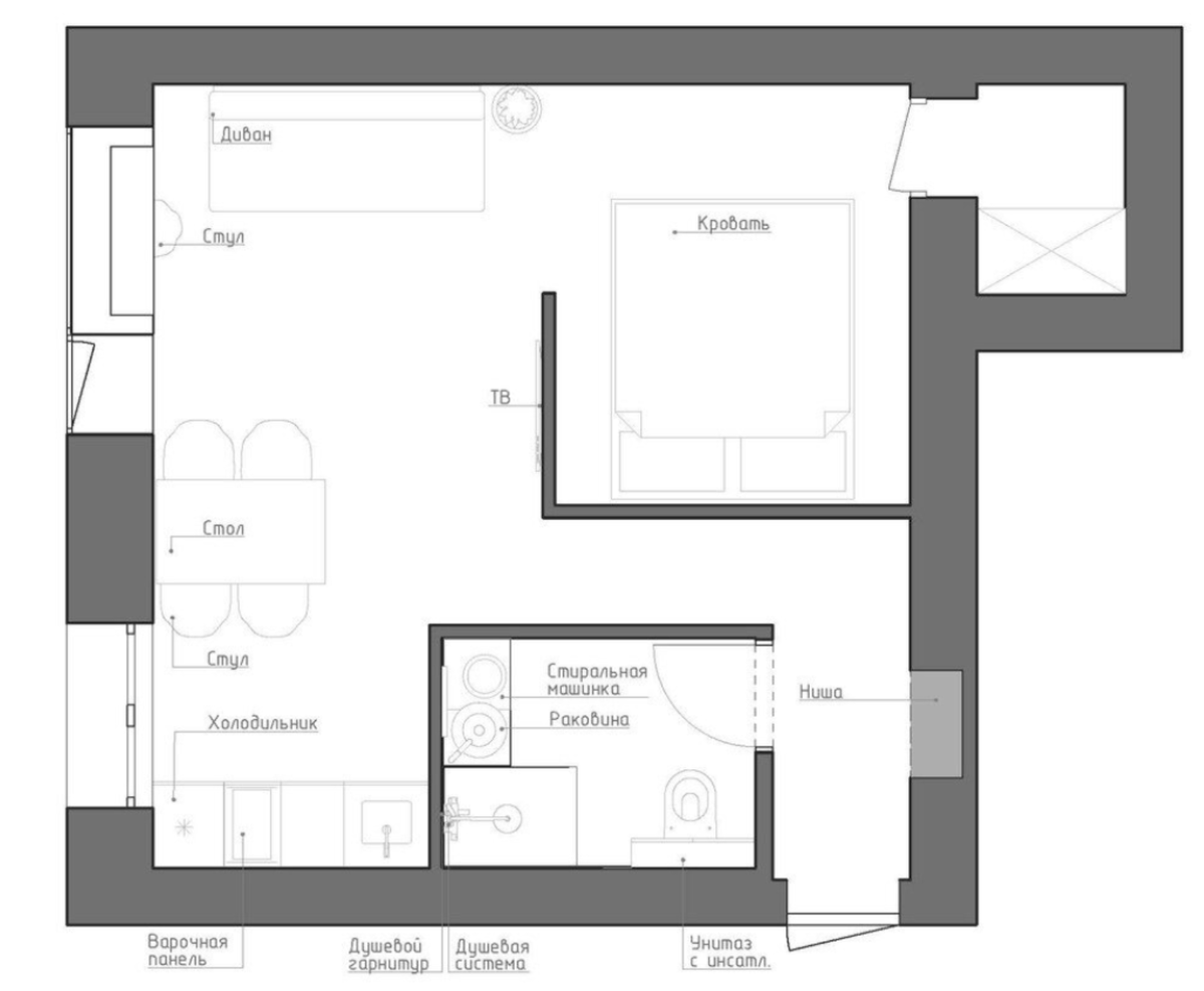
Эта квартира находится в пятиэтажке 1964 года постройки. По планировке — типичная хрущевка. Скромная площадь (чуть меньше 30 квадратов), объединенный санузел, тесная кухня и узкий незастекленный балкон. Да что тут описывать, вы наверняка и сами бывали в подобных квартирах. Нынешний хозяин купил эту однушку в убитом состоянии — здесь был интерьер из 90-х, пожелтевшие обои, облупившаяся штукатурка, плохая сантехника... Покупка была осознанной — квартиры в таком состоянии обычно продаются сильно ниже рынка. И даже если потратиться на капитальный ремонт, все равно можно остаться в выигрыше. Первым делом здесь сделали перепланировку: отказались от газа, после чего снесли стену между кухней и единственной комнатой. А спальное место вместе с гардеробной (она изначально была в квартире) отделили перегородкой из гипсокартона. Что из этого вышло — смотрите ниже. Но для начала покажу планировку квартиры после ремонта. У некоторых из вас, думаю, появится резонный вопрос — зачем потребовалась переп

Эта квартира находится в пятиэтажке 1964 года постройки. По планировке — типичная хрущевка. Скромная площадь (чуть меньше 30 квадратов), объединенный санузел, тесная кухня и узкий незастекленный балкон. Да что тут описывать, вы наверняка и сами бывали в подобных квартирах.

Однушка, в которую мы сегодня заглянем, находится в одной из хрущевок Красноярска. Площадь квартиры — 29,8 квадратов
Однушка, в которую мы сегодня заглянем, находится в одной из хрущевок Красноярска. Площадь квартиры — 29,8 квадратов

Нынешний хозяин купил эту однушку в убитом состоянии — здесь был интерьер из 90-х, пожелтевшие обои, облупившаяся штукатурка, плохая сантехника...

Покупка была осознанной — квартиры в таком состоянии обычно продаются сильно ниже рынка. И даже если потратиться на капитальный ремонт, все равно можно остаться в выигрыше.

Первым делом здесь сделали перепланировку: отказались от газа, после чего снесли стену между кухней и единственной комнатой. А спальное место вместе с гардеробной (она изначально была в квартире) отделили перегородкой из гипсокартона.

Что из этого вышло — смотрите ниже. Но для начала покажу планировку квартиры после ремонта.

Одну стену снесли, другую добавили
Одну стену снесли, другую добавили

У некоторых из вас, думаю, появится резонный вопрос — зачем потребовалась перепланировка, если все равно возвели стену посреди комнаты.

Я хорошо понимаю хозяев. Любой кухне предпочту кухню-гостиную. Мне нравится, когда можно разговаривать с мужем, пока готовишь суп или котлеты на ужин. Хотя знаю, что многие не любят объединенное пространство (потому что «запахи еды по всей квартире»).

Сразу предупрежу, что квартира пока выглядит безжизненно. Ощущение, что здесь никто не живет. На это есть две причины. Первая — фотосъемка сделана сразу после ремонта. Вторая причина — хозяин планирует сдавать жилье в аренду и тем самым отбивать затраты на покупку и ремонт / фото Дениса Антропова, дизайн Анастасии Ляпиной
Сразу предупрежу, что квартира пока выглядит безжизненно. Ощущение, что здесь никто не живет. На это есть две причины. Первая — фотосъемка сделана сразу после ремонта. Вторая причина — хозяин планирует сдавать жилье в аренду и тем самым отбивать затраты на покупку и ремонт / фото Дениса Антропова, дизайн Анастасии Ляпиной
Так сейчас выглядит зона кухни. Верхнюю часть стены сделали полуоткрытой: два кухонных шкафа и несколько полок для свободного хранения — хороший вариант для небольшой семьи
Так сейчас выглядит зона кухни. Верхнюю часть стены сделали полуоткрытой: два кухонных шкафа и несколько полок для свободного хранения — хороший вариант для небольшой семьи
-5
Вид на обеденную зону. Сочетание цветов (синий, желтый и зеленый) — нестареющая классика. А вот на стене рядом со столом будто чего-то не хватает. Хорошее место для какой-нибудь яркой акцентной картины. И рулонные шторы я бы заменила на обычные — это бы добавило домашнего уюта этой квартире
Вид на обеденную зону. Сочетание цветов (синий, желтый и зеленый) — нестареющая классика. А вот на стене рядом со столом будто чего-то не хватает. Хорошее место для какой-нибудь яркой акцентной картины. И рулонные шторы я бы заменила на обычные — это бы добавило домашнего уюта этой квартире
Радиаторы отопления (в зоне кухни и гостиной) скрыли с помощью специальных экранов из фанеры, которые визуально сливаются со стеной. Эта идея мне очень понравилась — возьму ее на заметку. Вроде бы батареи есть, они выполняют свою функцию, при этом их абсолютно не видно — никаких раздражающих взгляд элементов в тесной квартирке
Радиаторы отопления (в зоне кухни и гостиной) скрыли с помощью специальных экранов из фанеры, которые визуально сливаются со стеной. Эта идея мне очень понравилась — возьму ее на заметку. Вроде бы батареи есть, они выполняют свою функцию, при этом их абсолютно не видно — никаких раздражающих взгляд элементов в тесной квартирке
За этой стеной из гипсокартина находится двухспальная кровать. Вообще мне понравилось зонирование в этой однушке, при прежней планировке тоже пришлось бы как-то отделять спальню от гостиной
За этой стеной из гипсокартина находится двухспальная кровать. Вообще мне понравилось зонирование в этой однушке, при прежней планировке тоже пришлось бы как-то отделять спальню от гостиной
За дверью скрывается крошечная гардеробная, которой достаточно для небольшой семьи из двух человек
За дверью скрывается крошечная гардеробная, которой достаточно для небольшой семьи из двух человек
Желтая акцентная стена в спальне перекликается с солнечными обеденными стульями на кухне и лампой-грибочком в гостиной (кстати, картину на стене нарисовали сами)
Желтая акцентная стена в спальне перекликается с солнечными обеденными стульями на кухне и лампой-грибочком в гостиной (кстати, картину на стене нарисовали сами)
Ванну убрали, вместо нее сделали открытый душ со стеклянной стеной (тоже хорошая идея для потенциально съемной квартиры). Из интересного: два вида плитки и акцентная голубая стена, которая ассоциируется с водой и чистотой
Ванну убрали, вместо нее сделали открытый душ со стеклянной стеной (тоже хорошая идея для потенциально съемной квартиры). Из интересного: два вида плитки и акцентная голубая стена, которая ассоциируется с водой и чистотой
Общий вид на ванную комнату
Общий вид на ванную комнату
На этом экскурсия по квартире подошла к концу! Как вам ремонт и планировка? Интересно послушать критику :)
На этом экскурсия по квартире подошла к концу! Как вам ремонт и планировка? Интересно послушать критику :)

💰Ремонт (включая мебель и технику) обошелся в 1 миллион 200 тысяч рублей. Приличная сумма вдовесок к деньгам, потраченным на покупку самой квартиры. Как считаете, стоило ли это того?

Мой вердикт: для краткосрочной аренды — идеальный ремонт, только домашним уютом здесь и не пахнет (может, так было задумано?). Лично мне хочется больше душевных деталей.

🔥 У меня есть другая история про однушку в хрущевке. И вот эта квартира по-настоящему удивляет. Посмотрите, что Павел Фотеев сделал из однушки 30 квадратов (многие не верят, что такое возможно).