Найти в Дзене

Начинается обустройство сквера на ул. Станционной

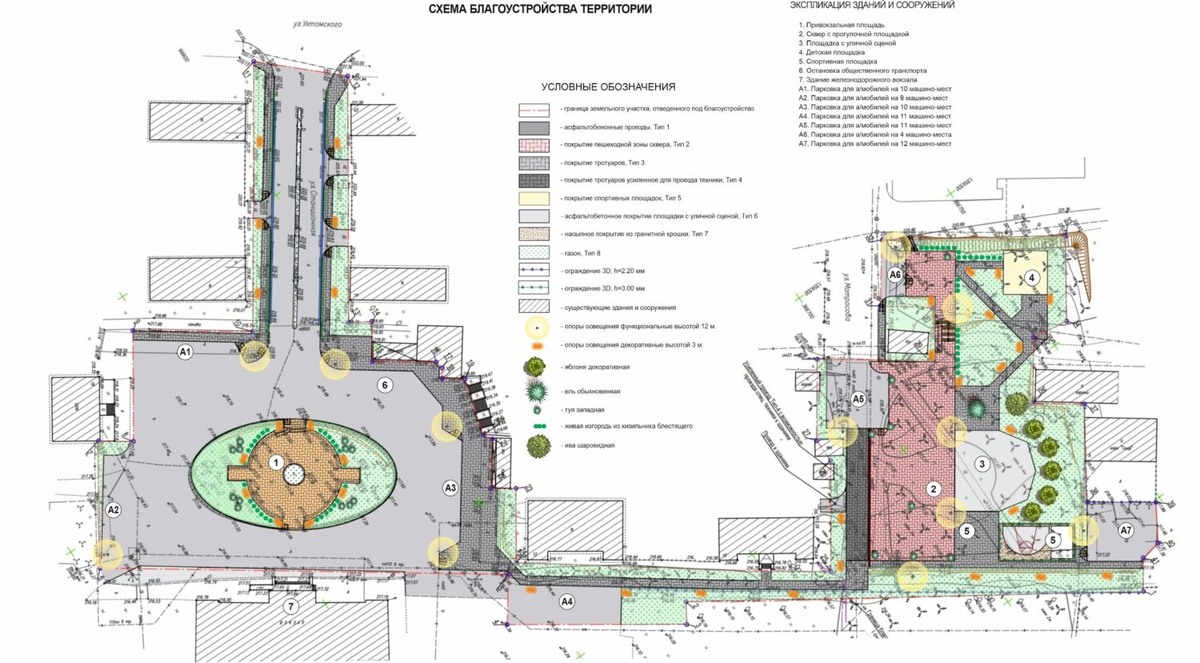
Начнется работа по созданию прекрасной зоны отдыха около железнодорожного вокзала и автовокзала. Преобразятся участок на перекрестке улицы Станционной и Матросова, привокзальная площадь и въезд на нее с ул. Ухтомского. Там появятся сквер для прогулок, сцена, детская и спортивная площадки, арт-объект, парковки, газоны, освещение, живая изгородь из кизильника. Также планируется высадить яблони, туи, ели, ивы. Эта территория станет не только местом отдыха горожан, но и точкой притяжения для всего Железнодорожного микрорайона, ведь здесь можно проводить праздники, концерты, различные встречи. Работы стартовали на участке у автовокзала. Перед их началом МУП «Горкомхоз» и АО «Регионгаз-Инвест» провели ремонт сетей. На данный момент на площадке убрана лишняя поросль. Благоустройством, а именно вертикальной планировкой, водоотведением, устройством покрытий займется ООО «Промышленно-гражданское строительство», которое уже работало на нескольких объектах города. Проезды, спортивная площадка, пло

Начнется работа по созданию прекрасной зоны отдыха около железнодорожного вокзала и автовокзала. Преобразятся участок на перекрестке улицы Станционной и Матросова, привокзальная площадь и въезд на нее с ул. Ухтомского.

Там появятся сквер для прогулок, сцена, детская и спортивная площадки, арт-объект, парковки, газоны, освещение, живая изгородь из кизильника. Также планируется высадить яблони, туи, ели, ивы. Эта территория станет не только местом отдыха горожан, но и точкой притяжения для всего Железнодорожного микрорайона, ведь здесь можно проводить праздники, концерты, различные встречи.

Работы стартовали на участке у автовокзала. Перед их началом МУП «Горкомхоз» и АО «Регионгаз-Инвест» провели ремонт сетей. На данный момент на площадке убрана лишняя поросль.

-2
-3
-4

Благоустройством, а именно вертикальной планировкой, водоотведением, устройством покрытий займется ООО «Промышленно-гражданское строительство», которое уже работало на нескольких объектах города. Проезды, спортивная площадка, площадка для стритбола, уличная сцена будут заасфальтированы, пешеходные зоны — покрыты плиткой «Бехатон». Работу подрядчик должен завершить до 31 января 2025 года.

Наружным освещением занимается также хорошо известное красноуфимцам ООО «ФОРЭС». Их необходимо завершить до 30 августа 2024 года.

Также до 30 апреля 2025 года нужно будет привезти и установить малые архитектурные формы.

Вот их перечень:

— скамья (10 штук);

-5
-6

— скамья (4 штуки);

-7

— скамья двойная (2 штуки);

-8

— урна (5 штук);

-9

— качель двойная детская на гибких подвесках;

-10

— вазон (8 штук);

-11

— песочница для детской площадки LADYA (Ладья);

-12

— качель городская JUNGLES (Джунгли) (3 штуки);

-13

— комплекс спортивный для подготовки к сдаче нормативов ГТО;

-14

— парклет;

-15

— арт-объект «Светящийся куб»;

-16

— Двухуровневая мини-рампа на деревянном каркасе;

-17

— стойка баскетбольная стационарная;

-18

— уличная сцена:

-19

— ограждение декоративное деревянное;

-20

— зимняя деревянная горка;

-21

— навес из профлиста;

-22

— пирамида гимнастическая;

-23

— навигационная табличка-указатель на опоре;

-24

— полусфера бетонная (21 штука).

-25

Источник: ksk66.ru