Добавить в корзинуПозвонить
Найти в Дзене
DIVAN.RU

38 кв.м: стеклоблоки и много хранения в типовой «хрущевской» двушке

Владельцы этой квартиры, пожилые супруги, переехали из спального района в центр Москвы, поближе к детям. Дизайнер Наталия Ленда оформила для них уютное пространство, наполненное светом, «воздухом» и дачным настроением. Где: г. Москва, Таганский р-он
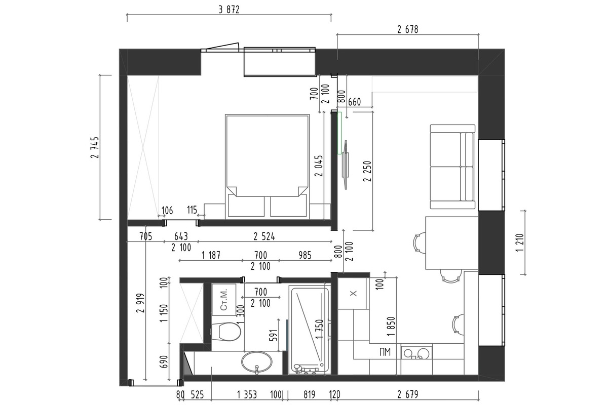
Объект: двушка 38 кв.м
Автор проекта: Наталия Ленда Главной задачей было создать ощущение простора на малом метраже, визуально приподнять потолки. Типовую планировку изменили: маленький санузел расширили за счет коридора, спальню уменьшили в пользу гостиной, отказались от газа и объединили кухню с гостиной. Стены оштукатурили и окрасили в пастельные цвета зелено-голубых оттенков — они перекликаются с зеленью за окнами и создают спокойную атмосферу. В разное время суток и при разном освещении стены как будто мерцают, меняя оттенок от светло-голубого до светло-зеленого. Дубовая инженерная доска на полу, дубовые подоконники и оконные откосы добавляют уюта, делая обстановку по-настоящему теплой и домашней. Прием: чтобы визуально вытянуть комнат
Оглавление

Владельцы этой квартиры, пожилые супруги, переехали из спального района в центр Москвы, поближе к детям. Дизайнер Наталия Ленда оформила для них уютное пространство, наполненное светом, «воздухом» и дачным настроением.

Проект дизайнера Наталии Ленда, автор фото Наталья Градусова
Проект дизайнера Наталии Ленда, автор фото Наталья Градусова

Где: г. Москва, Таганский р-он
Объект: двушка 38 кв.м
Автор проекта: Наталия Ленда

Главной задачей было создать ощущение простора на малом метраже, визуально приподнять потолки. Типовую планировку изменили: маленький санузел расширили за счет коридора, спальню уменьшили в пользу гостиной, отказались от газа и объединили кухню с гостиной.

Кухня-гостиная

Стены оштукатурили и окрасили в пастельные цвета зелено-голубых оттенков — они перекликаются с зеленью за окнами и создают спокойную атмосферу. В разное время суток и при разном освещении стены как будто мерцают, меняя оттенок от светло-голубого до светло-зеленого.

Дубовая инженерная доска на полу, дубовые подоконники и оконные откосы добавляют уюта, делая обстановку по-настоящему теплой и домашней.

Прием: чтобы визуально вытянуть комнату вверх, карнизы для штор закрепили прямо под потолком.

В зоне гостиной поставили диван Слипсон Мини и пуф Динс от отечественного производителя divan.ru. Их обивку подбирали в цвет стен. Сделать это не составило труда — в шоуруме Диван.ру можно выбрать образцы тканей и заказать «кусочки» на дом, чтобы примерить их под свой интерьер.

В кадре диван Слипсон Мини от 54 990₽* >>

-5

▶️ Этот диван сейчас можно купить со скидкой 24 000₽. Широкий выбор мебели по выгодным ценам ждет на большой распродаже в divan.ru >>

Одним из пожеланий заказчиков было гармонично вписать имеющуюся у них винтажную мебель: круглый обеденный стол и большой шкаф для книг. Стол дополнили складными деревянными стульями. В тандеме они создают атмосферу уютной загородной усадьбы и дарят ощущение теплой ностальгии.

Газ в кухне отключили, заменив варочную панель и духовой шкаф на электрические. Кухонный гарнитур делали на заказ, фасады заказывали под цвет стен. Они «сливаются» со стенами, выглядят менее громоздкой и уравновешивают пространство.

Кухня получилось эргономичной, все необходимое находится под рукой: встроенный холодильник с морозилкой, электрическая варочная панель, вытяжка, духовой шкаф, мойка с измельчителем мусора.

Под верхние шкафы встроили освещение. Чтобы не перекрывать оконный проем гарнитуром, между ними предусмотрели узкий винный шкаф-стеллаж.

Спальня

Для спальни выбрали кровать Лайтси от divan.ru. Фасады прикроватных тумб выполнены из ротанга.Они перекликаются в подвесными светильниками, смотрятся воздушно и поддерживают уютную атмосферу дачного загородного дома. Напротив кровати — ряд типовых шкафов во всю длину стены.

На фото: кровать Лайтси от 39 990₽* >>

-10

Прихожая

На полу в прихожей — керамогранит с рисунком терраццо. Для покраски стен выбрали такой же оттенок, как и в гостиной — так пространство выглядит целостно. Нежный голубой оттенок наполняет прихожую светом и «воздухом». На потолке — накладная шина, которая позволяет вставлять любые осветительные приборы.

Прием: напольные плинтусы в цвет стен не «съедают» высоту потолка.

Проект дизайнера Наталии Ленда, автор фото Наталья Градусова
Проект дизайнера Наталии Ленда, автор фото Наталья Градусова

Рядом с входной дверью расположили деревянную панель с крючками для одежды. Межкомнатные дверные проемы увеличили до потолка. Они словно вытягивают помещение наверх. Зеркальное полотно в полный рост визуально расширяет пространство.

Обратите внимание: над консолью — картина художника Алексея Ланцева. Вторую его работу можно увидеть над столом в гостиной.

Санузел

Площадь нового санузла 4 кв.м — ее удалось немного увеличить за счет прихожей. Вместо ванной оборудовали просторную душевую, отгородив ее зелеными стеклоблоками. На стенах в душе — зеленая плитка. Графичные черная сантехника, полотенцесушитель и полки служат акцентами и делают пространство более интересным. Кстати, зеленый цвет выбрали по желанию заказчиков — он напоминает им ванную в старой квартире.

Обратите внимание: деревянная скамеечка и настенная ручка позволяют пользоваться душем с комфортом.

Хранение организовано в выдвижном ящике под раковиной, на полочках в нише, в шкафчике над стиральной машинкой, который стал своеобразной постирочной.

---------------
Оцените интерьер в комментариях, а если материал понравился — не забудьте поставить лайк.

🖤divan.ru — не только блог про интерьеры, но и производитель доступной дизайнерской мебели. Ищите новые идеи и переходите на сайт, чтобы воплотить их в жизнь.

*Цены актуальны на момент публикации статьи