Добавить в корзинуПозвонить
Найти в Дзене

Привлекательная квартира под сдачу в г. Тюмени

В студию обратился клиент с запросом сделать квартиру под сдачу, таким образом, чтобы она выделялась среди всех. Квартира всего 40 м.кв.-студия. Мы выполнили полный дизайн-проект с комплектацией мебелью из Китая.
Панорама квартиры 360 по ссылке https://kuula.co/post/5VJJl В небольшой квартире необходимо было разместить: Кухня выполнена в одном цвете со стенами, только нижние модули в другом акцентном цвете. Панорама 360 https://kuula.co/post/5VJJk Фартук выполнен из закаленного стекла ( прозрачного ) под ним стена выкрашена в цвет фасадов. Объект мы комплектовали качественной мебелью из Китая, благодаря этому сэкономили клиенту 50% бюджета В спальне выполнена перегородка из элементов выполненных их ЭКОКОЖИ под заказ выполнена в Китае Ванная комната так же в оттенках винного + серый камень. На стенах изначально был запланирован Zodiac Ceramica Marmori Sicilia Scuro-Ms 75x150, потом решили изменить на Italon Charme Evo Antracite Ret 60x120 В ванной комнате напольное покрытие выполни

В студию обратился клиент с запросом сделать квартиру под сдачу, таким образом, чтобы она выделялась среди всех. Квартира всего 40 м.кв.-студия.

Мы выполнили полный дизайн-проект с комплектацией мебелью из Китая.
Панорама квартиры 360 по ссылке https://kuula.co/post/5VJJl

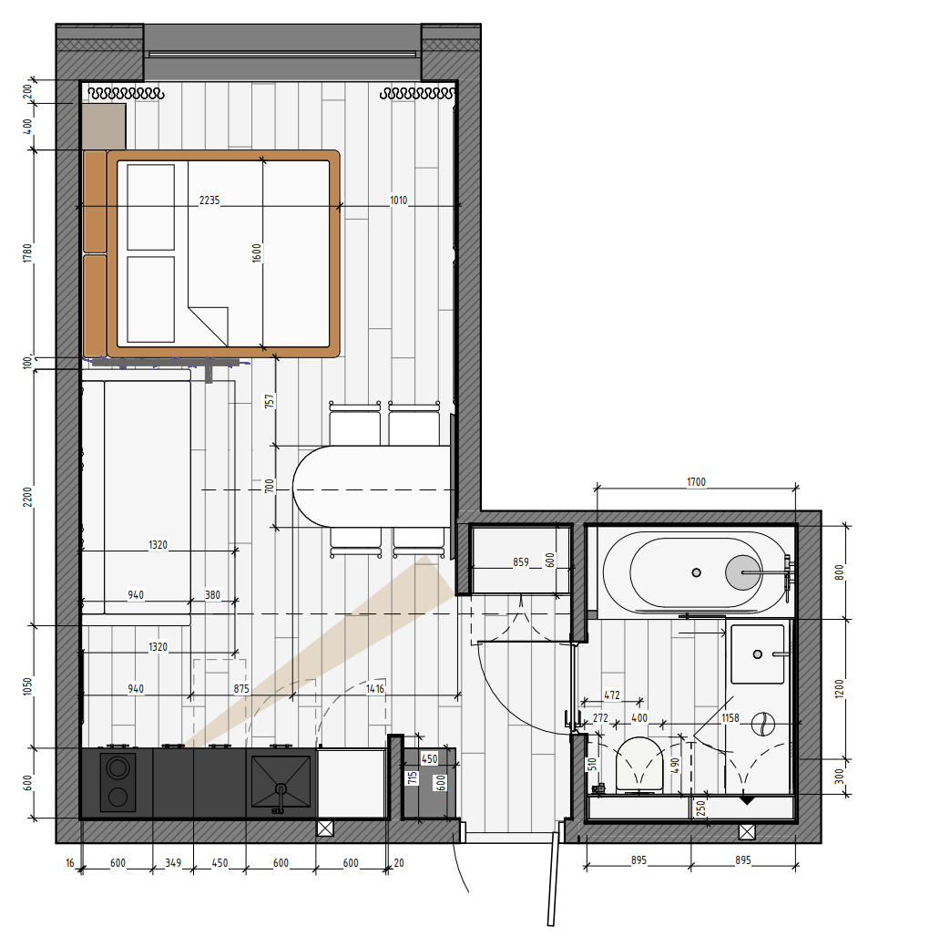
Обмерный план предоставлен клиентом
Обмерный план предоставлен клиентом

В небольшой квартире необходимо было разместить:

  • диван с полноценным спальным местом;
  • кровать -1600х2000 спальное место;
  • обеденный стол на 4 человека
  • кухня с полноценным холодильником
  • шкаф для одежды
Планировочное решение
Планировочное решение

-3

Кухня выполнена в одном цвете со стенами, только нижние модули в другом акцентном цвете. Панорама 360 https://kuula.co/post/5VJJk

Панорама https://kuula.co/post/5VJJk
Панорама https://kuula.co/post/5VJJk

Фартук выполнен из закаленного стекла ( прозрачного ) под ним стена выкрашена в цвет фасадов.

-5
-6

Объект мы комплектовали качественной мебелью из Китая, благодаря этому сэкономили клиенту 50% бюджета

настенные бра 5000 руб*3 шт.
настенные бра 5000 руб*3 шт.
Столовая группа
Столовая группа
Стулья использованные в проекте
Стулья использованные в проекте
Стол использованный в проекте
Стол использованный в проекте
-11
-12

В спальне выполнена перегородка из элементов выполненных их ЭКОКОЖИ под заказ выполнена в Китае

-13

Ванная комната так же в оттенках винного + серый камень. На стенах изначально был запланирован Zodiac Ceramica Marmori Sicilia Scuro-Ms 75x150, потом решили изменить на Italon Charme Evo Antracite Ret 60x120

В ванной комнате напольное покрытие выполнили из ПВХ плитки

ПВХ ПЛИТКА ДЛЯ ПОЛА FINEFLOOR ДУБ САН-ПЬЕТРО КОЛЛЕКЦИЯ RICH КЛЕЕВОЙ ТИП FF-2097
ПВХ ПЛИТКА ДЛЯ ПОЛА FINEFLOOR ДУБ САН-ПЬЕТРО КОЛЛЕКЦИЯ RICH КЛЕЕВОЙ ТИП FF-2097

Панорама 360 ванной комнаты https://kuula.co/post/5jwx5

ЕСЛИ У ВАС ОСТАЛИСЬ ВОПРОСЫ — НАПИШИТЕ МНЕ ЛИЧНО

Я расскажу подробнее, как проходит работа над интерьером и предложу решения, которые подойдут именно в вашей ситуации

WA +7 931 36 36 701