Найти в Дзене
DIVAN.RU

ДО/ПОСЛЕ: уютная двушка 56 кв.м в старом доходном доме

Дизайнер Наталья Власова создала уютный современный интерьер в доходном доме 1882 года постройки. Основной задачей было обновить ремонт, не внося существенных изменений в планировку. Об объекте: двухкомнатная квартира 55,9 кв.м, г. Санкт-Петербург
Автор проекта: дизайнер Наталья Власова, автор фото Тим Нордберг
Бюджет: 2,85 млн рублей Планировка в квартире была нестандартной: здесь не было прихожей, значительная часть площади приходилась на большой коридор. Ванная и туалет представляли из себя «коробку» 1,5 x 2,68 м в контуре из бетона толщиной всего 50 мм. Потолок в ванной был опущен до 2,1 м, а над ним была организована антресоль. По желанию заказчиков планировку оставили прежней. Только объединили санузел (увеличив толщину стен) и «зашили» один из дверных проемов, за счет чего получилось организовать мини-прихожую. До переделки это была просторная комната с аляповатыми обоями и темной неактупльной мебелью. Достоинства пространства — наличие двух окон и не сильно изношенный паркет. П
Оглавление

Дизайнер Наталья Власова создала уютный современный интерьер в доходном доме 1882 года постройки. Основной задачей было обновить ремонт, не внося существенных изменений в планировку.

Об объекте: двухкомнатная квартира 55,9 кв.м, г. Санкт-Петербург
Автор проекта: дизайнер Наталья Власова, автор фото Тим Нордберг
Бюджет: 2,85 млн рублей

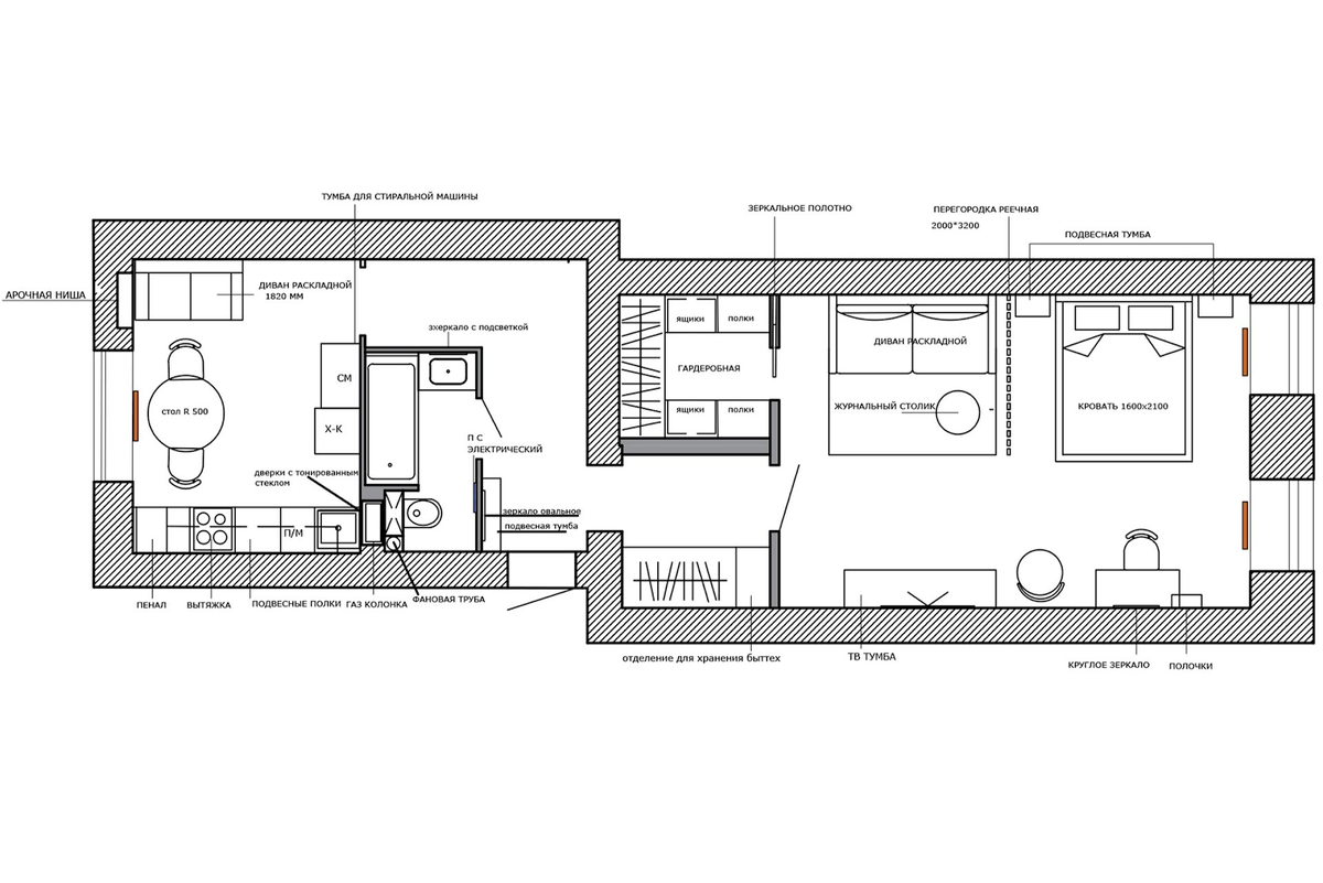
О планировке

Планировка в квартире была нестандартной: здесь не было прихожей, значительная часть площади приходилась на большой коридор. Ванная и туалет представляли из себя «коробку» 1,5 x 2,68 м в контуре из бетона толщиной всего 50 мм. Потолок в ванной был опущен до 2,1 м, а над ним была организована антресоль.

По желанию заказчиков планировку оставили прежней. Только объединили санузел (увеличив толщину стен) и «зашили» один из дверных проемов, за счет чего получилось организовать мини-прихожую.

-2

Гостиная-спальня

До переделки это была просторная комната с аляповатыми обоями и темной неактупльной мебелью. Достоинства пространства — наличие двух окон и не сильно изношенный паркет. По левую руку от входа располагалось небольшое помещение без определенного функционала, оформленное аркой.

Для отделки стен выбрали краску нейтрального серого оттенка. Паркет отциклевали и покрыли лаком.

Около окна расположили спальную зону. От гостиной ее отгородили с помощью реечной перегородки, окрашенной в белый. Конструкция не нагружает пространство комнаты, но при этом создает ощущение приватности.

Проблема и решение: высота потолка в квартире 3,4 метра, а максимальный длина реек в магазине — 3,2 метра. Чтобы их закрепить, пришлось усилить потолок гипсокартоном.

В спальне поставили кровать с мягким изголовьем. Подвесные тумбы от бренда divan.ru придают интерьеру «легкость и экономят пространство. Напротив кровати — стол и стул от того же производителя. Они могут выполнять роль рабочего места или будуарного уголка — для этого на стене предусмотрели небольшое зеркало.

В кадре кровать Майтон, divan.ru >>

Практически вся мебель в гостиной от divan.ru: диван Ольен в благородном сером велюре, подвесная ТВ-тумба и мятный журнальный столик. Перед диваном постелили фактурный ковер.

В кадре диван Ольен Velvet Silver, divan.ru >>

-7

▶️ Огромный выбор разных моделей и скидки до 65% на популярную мебель и аксессуары уже ждут на большой сезонной распродаже divan.ru >>

В отдельном помещении обустроили гардеробную, скрыв ее наполнение дверью из тонированного зеркального полотна.

Кухня

До переделки это была кухня с вышедшими из моды отделкой и мебелью. Требовалось улучшить функционал и продумать дизайн.

В обновленном пространстве пол облицован керамогранитом с эффектом бетона и оборудован системой «теплый пол». На стенах — однотонные светлые обои. Кухонный гарнитур расположили вдоль одной стены, заменив часть верхних фасадов открытыми полками. Газовую колонку, которая располагалась в открытой нише, закрыли витриной с тонированным стеклом, обрамленным в металлическую раму. Газовые трубы спрятали в боковом пенале.

Прием: для оформления фартука использовали синюю плитку в раскладке «елочка». Узор смотрится нетривиально и заменяет декор в монохромном пространстве.

Столовую зону оставили на прежнем месте — около окна. Мебель для нее выбрали на divan.ru: круглый белый стол и черные стулья с изогнутой спинкой. Еще один яркий акцент — диван Види от divan.ru. Модель раскладывается и служит в квартире дополнительным спальным местом. На стене рядом с диваном — аутентичное арочное окно. Его оставили в первоначальном виде, только освежили штукатурку.

В кадре диван Види Textile Ocean, divan.ru >>

Прихожая

Коридор в этой квартире соединяет кухню с комнатой, огибая санузел. Изначально он был оформлен без внимания к деталям: бюджетная отделка и никакого декора. Хранение было организовано во встроенном шкафу с зеркальными дверями.

Прихожая ДО ремонта
Прихожая ДО ремонта

В процессе переделки изменили и цветовую гамму, и наполнение коридора. Он выдержан в той же монохромной гамме, что и другие помещения. Старый шкаф демонтировали и спроектировали новый — в нем есть секции для хранения одежды, обуви и сумок, предусмотрено место для пылесоса, швабры, гладильной доски.

Санузел

Ванная и туалет представляли из себя «коробку» 1,5 x 2,68 м в контуре из бетона толщиной всего 50 мм. Потолок в ванной был опущен до 2,1 м, а над ним была организована антресоль.

Туалет и ванную комнату объединили, частично убрав перегородку, антресоль демонтировали. Старую отделку полностью демонтировали, обновили сантехнику. Вместо текстильной шторы предусмотрели стеклянную перегородку. Она оставляет в помещении больше «воздуха», не добавляя визуального «шума».

---------------
Оцените интерьер в комментариях
, а если материал понравился — не забудьте поставить лайк.

🖤divan.ru — не только блог про интерьеры, но и производитель доступной дизайнерской мебели. Ищите новые идеи и переходите на сайт, чтобы воплотить их в жизнь.