Найти в Дзене

В Балаково 7 июля ограничат движение на время крестного хода

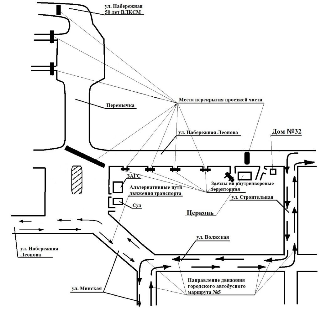
В Балаково 7 июля из-за поведения крестного хода, посвященного памяти святых благоверных Петра и Февронии, с 8 часов утра будет ограничено движение транспорта по Набережной Леонова и Набережной 50 лет ВЛКСМ. Об этом сообщает администрация Балаковского района. Участники крестного хода проследуют от храма во имя святого апостола и евангелиста Иоанна Богослова до памятника святым благоверным Петру и Февронии Муромским, который расположен в сквере на мысе имени Ерошкина. Кроме того, будет изменена схема движения автобусного маршрута №5. С Набережной Леонова он будет поворачивать на улицу Строительную, а затем проследует по улице Волжской, после чего вернется на улицу Минскую. Движение будет ограничено до завершения крестного хода.

В Балаково 7 июля из-за поведения крестного хода, посвященного памяти святых благоверных Петра и Февронии, с 8 часов утра будет ограничено движение транспорта по Набережной Леонова и Набережной 50 лет ВЛКСМ. Об этом сообщает администрация Балаковского района.

Участники крестного хода проследуют от храма во имя святого апостола и евангелиста Иоанна Богослова до памятника святым благоверным Петру и Февронии Муромским, который расположен в сквере на мысе имени Ерошкина.

Кроме того, будет изменена схема движения автобусного маршрута №5. С Набережной Леонова он будет поворачивать на улицу Строительную, а затем проследует по улице Волжской, после чего вернется на улицу Минскую. Движение будет ограничено до завершения крестного хода.

-2