Добавить в корзинуПозвонить
Найти в Дзене
Заметки дизайнера

Санузел: разделить нельзя совместить

Ну что, время для жарких дискуссий?:) Я помню, что в моем детстве всегда были раздельные санузлы. Ну, т.е. отдельно ванная, отдельно туалет. Нас в семье четверо (у меня ещё сестра есть) и представить себе один совмещенный санузел на всю семью я не могла, и без того были споры по утрам и вечерам. Но к моменту, когда я приобрела свою собственную квартиру, я с удивлением обнаружила, что совмещенный санузел - это довольно распространенное явление, особенно в 1 или 2-комнатной квартире. Более того, когда я начала погружаться в мир дизайна, оказалось, что многие люди сами просят оставить им совмещённый санузел. Давайте теперь рассмотрим и обсудим оба варианта:) Плюсы: Минусы: Кому подходит такой вариант? Плюсы: Минусы: Для кого подходит: А вот немножко примеров планировок, когда из одного санузла логичнее сделать два и наоборот. 1. По плану санузел разделен на ванну и туалет. Оба варианта имеют право на существование. В отдельном туалете унитаз установлен максимально близко к стояку: именн
Оглавление

Ну что, время для жарких дискуссий?:)

Я помню, что в моем детстве всегда были раздельные санузлы. Ну, т.е. отдельно ванная, отдельно туалет. Нас в семье четверо (у меня ещё сестра есть) и представить себе один совмещенный санузел на всю семью я не могла, и без того были споры по утрам и вечерам.

Но к моменту, когда я приобрела свою собственную квартиру, я с удивлением обнаружила, что совмещенный санузел - это довольно распространенное явление, особенно в 1 или 2-комнатной квартире. Более того, когда я начала погружаться в мир дизайна, оказалось, что многие люди сами просят оставить им совмещённый санузел.

Давайте теперь рассмотрим и обсудим оба варианта:)

Совмещенный санузел

Плюсы:

  • Площадь. Зачастую у совмещённого санузла (или когда вы совмещаете два помещения сами, ломая между ними перегородку) площадь больше, чем у двух отдельных помещений. При сносе перегородки у вас появляется больше вариантов по планировке, а само помещение становится просторнее, в нем не так душно после горячей ванны, оно лучше вентилируется.
  • Все под рукой. Не нужно далеко ходить, чтобы помыть руки после туалета и можно установить всего один шкаф для всех необходимых средств.
  • Меньше материалов и ремонтных работ уйдет на обустройство одного санузла, чем двух

Минусы:

  • Если с вами в квартире есть кто-то еще, он не сможет воспользоваться туалетом, пока вы принимаете душ
  • Запахи в туалете не всегда приятные даже с освежителем и остаются с вами, пока вы, например, умываетесь
  • Планировка такого помещения может быть одновременно и плюсом, и минусом, в зависимости от площади и расположения стояка. Зачастую не так и просто расположить все необходимое в небольшом санузле.

Кому подходит такой вариант?

  • Если вы живете один или вдвоем. На большее количество человек уже будет не так комфортно.
  • Если живущие в квартире люди встают/ложатся не одновременно и нет необходимости в одновременном использовании санузла. Например, если все в одно и то же время собираются на работу, неизбежны конфликты на тему "я опаздываю, освободи санузел".
  • Если санузел сам по себе очень небольшой по площади, не имеет смысла уменьшать его на толщину стены и устраивать себе приступы клаустрофобии.

Раздельный санузел

Плюсы:

  • Очевидно, это раздельные помещения и ими может пользоваться 2 человека одновременно
  • Больше вариативность по наполнению. Два санузла - это не всегда только туалет и ванная. Зачастую делают один полноценный санузел (с унитазом и ванной) и один поменьше - гостевой (унитаз и раковина, иногда еще душ). А бывают варианты, когда один санузел оставляют под "постирочную": ставят туда машинки, хоз.шкафы, гладильную доску и прочее.
  • Что бы ни происходило в туалете, оно остается в туалете:) Запахи от стоящего там кошачьего лотка, например, не будут преследовать вас, пока вы нежитесь в ванне.

Минусы:

  • Сделать два санузла дороже, чем один
  • Если вы живете один и у вас редко бывают гости, второй санузел вам просто ни к чему. А прибавить его площадь, например, к комнате, вы не можете - это запрещено. Придется оставлять его в тех границах, какие есть на плане БТИ. Но можно вместо полноценного санузла сделать там постирочную.

Для кого подходит:

  • Для тех, кто часто принимает гостей/часто гостят родственники - можно выделить один из санузлов в гостевой
  • Если вы живете вдвоем, но у вас совпадает расписание сборов на работу. Или один из вас любит полежать в ванне подольше.
  • Когда в семье больше двух человек. Это сохраняет нервы и отношения:))

А вот немножко примеров планировок, когда из одного санузла логичнее сделать два и наоборот.

1. По плану санузел разделен на ванну и туалет.

Оба варианта имеют право на существование. В отдельном туалете унитаз установлен максимально близко к стояку: именно унитаз не рекомендовано относить от стояка дальше, чем на метр. Однако, сам туалет получается крошечным, страдающим клаустрофобией там не очень комфортно будет) В ванной уместилась душевая и широкая раковина, а так же небольшой шкафчик для средств.

Во втором варианте душевая расположилась в собственной нише (и стала побольше), но унитаз немного отнесен от стояка примерно на метр. Зато само помещение выглядит куда просторнее и есть варианты по наполнению и хранению средств.

В целом, в обоих вариантах не пришлось особо ничем жертвовать. Под стиральную машинку отведено отдельное место в коридоре возле ванной в спец.шкафу (такое решение возможно, но стоит предусмотреть гидроизоляцию пола в этом месте на всякий случай:))

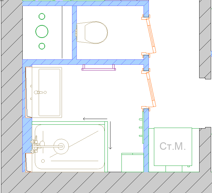
2. По плану санузел разделен на два.

Здесь я бы оставила раздельные помещения. Во-первых, все логично расположено и не нужно ничего придумывать. Туалет, конечно, небольшой, но не совсем уж крошечный, как в первом примере. В ванной уместилась полноценная ванна (она 150см, заказчику этого хватает), раковина на 60 и стиральная машинка. Минус этого варианта: не так много мест хранения всяких косметических и хим.средств.

В совмещенном варианте мест под хранения получилось больше, да и раковину можно поставить пошире. Но здесь спорное расположение унитаза: во-первых, он немного спрятан в углу (может быть не очень удобно к нему подходить), во-вторых, тут рядом расположена вент.шахта, а через нее вести трубы запрещено. Нужно смотреть саму конструкцию и, возможно, наращивать стену для подвода к унитазу и стиральной машинке.

3. По плану один санузел.

Здесь очевидно, что он и должен таким остаться, конечно:) Здесь умещается все, даже небольшая ванна или душевая, а так же стиральная машинка в отдельной нише. Ради шутки я попыталась разделить это помещение на два: получилась очень маленькая кабинка туалета и компактная ванна. Сомнительно, но окей, как говорится:))

4. По плану два санузла.

Здесь и так понятно, что совмещать не имеет смысла. По размеру это две полноценные ванные комнаты, которые можно укомплектовать по желанию. Можно сделать два санузла, а можно один отвести под постирочную/хоз.блок. На примере один из санузлов совмещает в себе туалет и постирочную, а во втором разместилась большая душевая и шкаф с бойлером. Вариантов планировки здесь много, это лишь один из них.

Продолжать примеры можно бесконечно:) В примерах выше даны лишь примерные варианты по планировкам, само собой, каждый из них еще должен быть проработан и доработан с конкретной мебелью и под конкретные нужды заказчика, но смысл, я думаю, ясен.

А вы любите раздельный санузел или считаете это лишней тратой метров и вам хватает совмещенного?:)

Смешное с выставки:)
Смешное с выставки:)