Найти в Дзене

Квартира с яркими акцентами для сдачи в аренду: дизайн и планировка

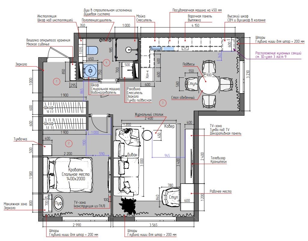
При разработке планировочного решения для данной квартиры уделялось особое внимание будущим арендаторам. Основная задача была создать удобное и функциональное пространство, которое удовлетворит потребности различных жильцов! Мы предусмотрели необходимые зоны для работы, отдыха и хранения, чтобы арендаторы могли максимально комфортно чувствовать себя в квартире. Мы также учли популярные требования арендодателей, такие как наличие стиральной машины, посудомоечной машины, кондиционера и прочих удобств. Зона кухни и гостиной объединена, за счет чего помещение получилось просторное и функциональное, с разделением на зону отдыха, столовую зону и зону приготовления пищи. Обеденную зону дополняют стеклянные бра, которые добавляют лёгкости и воздушности в интерьер. Несмотря на современную стилистику дизайна квартиры, мы добавили элементы индустриального стиля: голый бетон на стенах и потолке. Люстра в спальне поддерживает кухонные бра и добавляет "сказочности" в, достаточно, брутальный интерье

При разработке планировочного решения для данной квартиры уделялось особое внимание будущим арендаторам. Основная задача была создать удобное и функциональное пространство, которое удовлетворит потребности различных жильцов!

Мы предусмотрели необходимые зоны для работы, отдыха и хранения, чтобы арендаторы могли максимально комфортно чувствовать себя в квартире. Мы также учли популярные требования арендодателей, такие как наличие стиральной машины, посудомоечной машины, кондиционера и прочих удобств.

Расстановка мебели в евро 2-комн.квартире. Общая площадь 55 м²
Расстановка мебели в евро 2-комн.квартире. Общая площадь 55 м²

Зона кухни и гостиной объединена, за счет чего помещение получилось просторное и функциональное, с разделением на зону отдыха, столовую зону и зону приготовления пищи.

Обеденную зону дополняют стеклянные бра, которые добавляют лёгкости и воздушности в интерьер.

-4

Несмотря на современную стилистику дизайна квартиры, мы добавили элементы индустриального стиля: голый бетон на стенах и потолке. Люстра в спальне поддерживает кухонные бра и добавляет "сказочности" в, достаточно, брутальный интерьер.

Площадь спальни 13 м²
Площадь спальни 13 м²

ТВ зона оформлена коробом из гипсокартона, что позволяет вывести экран телевизора в одну плоскость со стеной.

Особое внимание в этом проекте уделялось освещению, которое в свою очередь играет ключевую роль в создании атмосферы и настроения в интерьере.

Света много не бывает!

Входная зона встречает арендаторов и их гостей оголённым бетоном и огромным зеркалом до полотка, что визуально расширяет пространство. А стена, выкрашенная с дверью в один цвет, создает ощущение целостности.

Санузел продолжает тему брутальности в интерьере, благодаря использованию тёмного керамогранита и чёрной сантехники.

В результате работы над дизайн-проектом был создан интерьер, который сочетает в себе красоту и функциональность. И что немаловажно - останется актуальным на многие годы!

Узнать всё и даже больше на моём сайте
Посмотреть полный проект в моём Инстаграмм (Meta, организация признана экстремистской и запрещена на территории РФ)

-10