Найти в Дзене

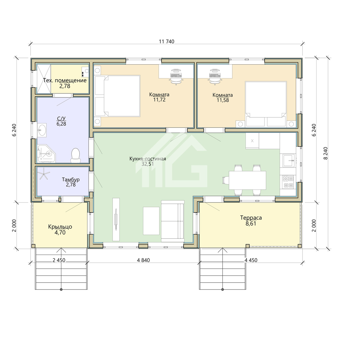
Новый проект одноэтажного каменного дома 117.8 м2

Внутри:
🔸кухня-гостиная — 30.74 м2;
🔸три комнаты;
🔸гардеробная;
🔸санузел и котельная.
Планировка дома — универсальная: здесь будет комфортно жить и молодоженам, и большой семье. Строительная компания EVA Group
☎+7 (4942) 30-00-19
г. Кострома, Никитский проезд, 13

Внутри:

🔸кухня-гостиная — 30.74 м2;
🔸три комнаты;
🔸гардеробная;
🔸санузел и котельная.

Планировка дома — универсальная: здесь будет комфортно жить и молодоженам, и большой семье.

-2

Строительная компания EVA Group
☎+7 (4942) 30-00-19
г. Кострома, Никитский проезд, 13