Добавить в корзинуПозвонить
Найти в Дзене
DIVAN.RU

Кухня с островом в небольшой квартире: 5 реальных примеров

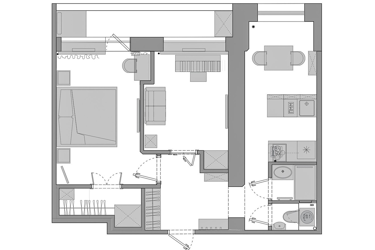
Остров — маркер современной кухни. Но что делать, если площадь той самой кухни невелика? Ответ прост — отдать острову сразу несколько функций. Варианты, как и всегда, смотрим на примере реальных проектов. Кухня в этой квартире имеет узкую вытянутую форму. Классическое решение — линейный гарнитур вдоль длинной стены, который еще сильнее «режет» комнату, — владельцы отмели сразу. Использовать пространство рационально помог остров — он поделил кухню на зону для готовки и столовую. Столешница выполняет роль рабочей поверхности, под ней — стандартные модули для хранения. Сюда же вынесли раковину и посудомойку, трубы и коммуникации проложили в стене. Есть нюанс: организовать мокрый блок в полуострове (который примыкает к стене) намного проще, чем в отдельно стоящем. Если в первом случае достаточно проложить в стене инженерные коммуникации, то во втором придется поднимать уровень пола, чтобы обеспечить наклон водостока. Владелица этой квартиры попросила дизайнера превратить кухню в кухню-гост
Оглавление

Остров — маркер современной кухни. Но что делать, если площадь той самой кухни невелика? Ответ прост — отдать острову сразу несколько функций. Варианты, как и всегда, смотрим на примере реальных проектов.

1. Остров как рабочая поверхность

Кухня в этой квартире имеет узкую вытянутую форму. Классическое решение — линейный гарнитур вдоль длинной стены, который еще сильнее «режет» комнату, — владельцы отмели сразу.

Планировочное решение. Квартира 53 кв.м в г. Химки. Дизайн-студия: Brainstorm buró
Планировочное решение. Квартира 53 кв.м в г. Химки. Дизайн-студия: Brainstorm buró

Использовать пространство рационально помог остров — он поделил кухню на зону для готовки и столовую. Столешница выполняет роль рабочей поверхности, под ней — стандартные модули для хранения. Сюда же вынесли раковину и посудомойку, трубы и коммуникации проложили в стене.

Есть нюанс: организовать мокрый блок в полуострове (который примыкает к стене) намного проще, чем в отдельно стоящем. Если в первом случае достаточно проложить в стене инженерные коммуникации, то во втором придется поднимать уровень пола, чтобы обеспечить наклон водостока.

➡️Читать статью целиком: Гениальный дизайн хрущевки: кухня «вагончиком», крутые фишки

2. Остров как часть «рабочего треугольника»

Владелица этой квартиры попросила дизайнера превратить кухню в кухню-гостиную, поставив здесь полноценный раскладной диван. Места для гарнитура при этом практически не осталось.

Планировочное решение. Квартира 45 кв.м, ЖК «Лайф Ботанический сад». Дизайнер: Антонина Московцева
Планировочное решение. Квартира 45 кв.м, ЖК «Лайф Ботанический сад». Дизайнер: Антонина Московцева

Систему хранения расположили вдоль стены при входе, а на полуостров вынесли варочную панель и духовой шкаф, организовав таким образом правильный «рабочий треугольник». Можно было бы заказать угловой гарнитур, но тогда не осталось бы места для обеденной группы.

➡️Читать статью целиком: Однушка 45 кв.м для молодой девушки, где много дерева и «зелени»

3. Остров вместо стены

В этом проекте сделали ставку на простор и «воздух» — в квартире минимум перегородок, а в качестве элемента зонирования выступил кухонный остров.

Планировочное решение. Квартира 40 кв.м, ЖК «Царская площадь». Дизайнер: Анна Шевченко
Планировочное решение. Квартира 40 кв.м, ЖК «Царская площадь». Дизайнер: Анна Шевченко

Гарнитур и остров одинаковой ширины расположены друг напротив друга — строгий конструктивизм и абсолютный минимализм исключают привычную атмосферу кухни. Полноразмерный холодильник и стиральная машина спрятаны справа, в высоких пеналах. Со стороны кухни в острове организовано хранение, со стороны гостиной «продолжили» столешницу, получив обеденный стол.

➡️Читать статью целиком: Евродвушка в «Царской площади»: 40 кв.м с открытой планировкой

4. Остров как сердце дома

В этой студии остров расположили прямо посередине комнаты — он выглядит как логический центр и «очаг» дома.

Планировочное решение. Квартира 43 кв.м, ЖК «Искра Парк». Дизайнер-архитектор: Валерия Хуснутдинова; архитектор: Екатерина Астафьева
Планировочное решение. Квартира 43 кв.м, ЖК «Искра Парк». Дизайнер-архитектор: Валерия Хуснутдинова; архитектор: Екатерина Астафьева

«А как же запахи?» — спросите вы. Проблему решили технологично: вытяжку встроили в столешницу и скомбинировали ее с двухконфорочной варочной панелью. Отвод воздуха провели в стяжке к вентиляции. Над островом повесили еле заметный, но очень мощный светильник.

➡️Читать статью целиком: Апартаменты 43 кв.м в стиле актуальный лофт

5. Остров «4 в 1»

В этом проекте полуостров выполняет сразу четыре функции: зонирует кухню и гостиную, служит дополнительной системой хранения, играет роль обеденного и рабочего стола.

Планировочное решение. Квартира 39 кв.м, ЖК «Невский». Дизайнер: Екатерина Северова (@gdm_sever)
Планировочное решение. Квартира 39 кв.м, ЖК «Невский». Дизайнер: Екатерина Северова (@gdm_sever)

Обратите внимание на планировку: кухня в квартире проходная, с двумя межкомнатными проемами — это существенно ограничивало варианты расстановки мебели. Гарнитур пришлось установить вдоль короткой стены, и рабочая поверхность получилась совсем небольшой. Полуостров решил проблему, под ним организовали несколько глубоких ящиков для кухонной утвари.

Важно учесть: оптимальным расстоянием между гарнитуром и островом считается 100–120 см — это обеспечит свободный доступ к ящикам, а также удобный обход открытой посудомойки в моменты ее загрузки и разгрузки.

➡️Читать статью целиком: Квартира 39 кв.м в Войковском районе Москвы

=========

🖤divan.ru — не только блог про интерьеры, но и производитель доступной дизайнерской мебели. Ищите новые идеи и переходите на сайт, чтобы воплотить их в жизнь.

🔥Огромный выбор мебели и скидки до 65% на большой сезонной распродаже divan.ru >>

========

-11