На что следует обратить внимание при планировке дома или выборе готового проекта, чтобы дом получился удобным и уютным? Сколько будет стоить такой дом под ключ в ипотеку? Нажимайте 👇
На что следует обратить внимание при планировке дома или выборе готового проекта, чтобы дом получился удобным и уютным? Сколько будет стоить такой дом под ключ в ипотеку? Нажимайте 👇
...Читать далее
На что следует обратить внимание при планировке дома или выборе готового проекта, чтобы дом получился удобным и уютным?
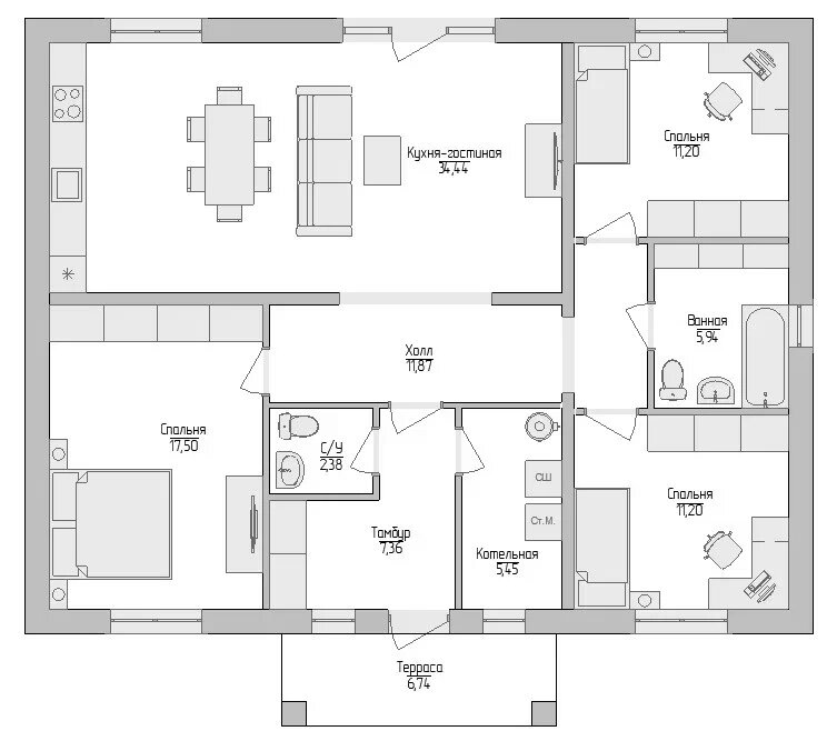
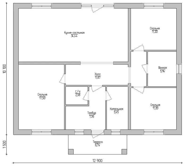
Проект готового дома Техас, ссылка в конце статьи
15 важных правил грамотной планировки дома:
- Если участок позволяет, практичнее выбирать одноэтажный дом.
- В частном доме не обойтись без тамбура. Он сохраняет тепло, избавляет от лишней грязи и насекомых.
- Лучшая форма комнаты — прямоугольник или квадрат. Причём прямоугольная форма с соотношением сторон 3:4.
- Санузлы в двухэтажном доме нужно располагать друг над другом.
- Важно распланировать освещение в комнатах жилой зоны. Сюда относится размер и количество окон, а также расположение комнат по сторонам света. В южной части комнаты получат максимальное освещение, в северной наоборот.
- Если детская комната не одна, то комнаты должны быть одинаковыми по площади и освещению.
- Не стоит располагать двери комнат напротив друг друга. Так вы улучшите звукоизоляцию.
- Не стоит жалеть места для гардеробных. Они необходимы в прихожей, а также в хозяйской спальне как минимум.
- Нежелательно смежно располагать спальни. Но если по другому нельзя, то к разделяющей их стене лучше поставить шкафы, либо разделить комнаты гардеробной.
- На коридорах можно экономить в плане площади, но без фанатизма. В коридоре должны спокойно расходиться два средних человека.
- Дверь санузла не может открываться в кухню, столовую или гостиную.
- При планировке можно и нужно ориентироваться на габариты стандартной мебели, чтобы потом не ломать голову с интерьерными решениями.
- В регионах с суровыми зимами, северную часть лучше максимально оборудовать хозяйственными помещениями. Это избавит от теплопотерь жилую зону.
- Не стоит отказываться от дополнительного выхода на улицу. В доме площадью 100 кв.м. это необходимость, а не прихоть.
- Подумайте о втором санузле. В доме площадью 100 кв.м., где проживает семья и бывают гости, второй санузел необходим. В двухэтажном доме санузел должен быть на каждом этаже.
Проект готового дома Техас, листайте чтобы рассмотреть планирвоку подробнее, ссылка в конце статьи
Сколько будет стоить такой дом под ключ в ипотеку? Нажимайте 👇