Найти в Дзене

10 уникальных проектов домов с плоской крышей в различных стилях.

Если вы задумались о строительстве собственного дома с плоской кровлей, то эта подборка проектов как раз для вас!👇 Мы собрали 10 уникальных проектов домов различных стилей, чтобы помочь вам выбрать идеальный вариант для вашей семьи.
1. 1057B-S «БАЛТИЙСКИЙ БРИЗ» ☝️— стиль минимализм, панорамное остекление, 4 спальни, 158 кв. м. Как вам такой вариант для современной семьи? 2. 719 C-S «ПИФАГОР» — двухэтажный дом с террасой в современном стиле, 140 кв. м. Отличный выбор для тех, кто ценит функциональность и стиль! 3. 1030E «СИГМА» — скандинавский стиль, каркасный двухэтажный дом с плоской кровлей, 114 кв. м. Нежные тона и уютная обстановка — идеальный дом для уединения. 4. 468A-S «АРС» — стиль хай-тек, двухэтажный дом для узкого участка, 111 кв. м. Современный и стильный проект, который будет выгодно выделять ваш дом среди соседей. 5. 929A «БЕНУА» — современный одноэтажный дом с террасой, 127 кв. м. Простота и функциональность объединены в этом проекте. 6. 669B «БИССЕКТРИСА» — одноэтажны

Если вы задумались о строительстве собственного дома с плоской кровлей, то эта подборка проектов как раз для вас!👇

Мы собрали 10 уникальных проектов домов различных стилей, чтобы помочь вам выбрать идеальный вариант для вашей семьи.

1.
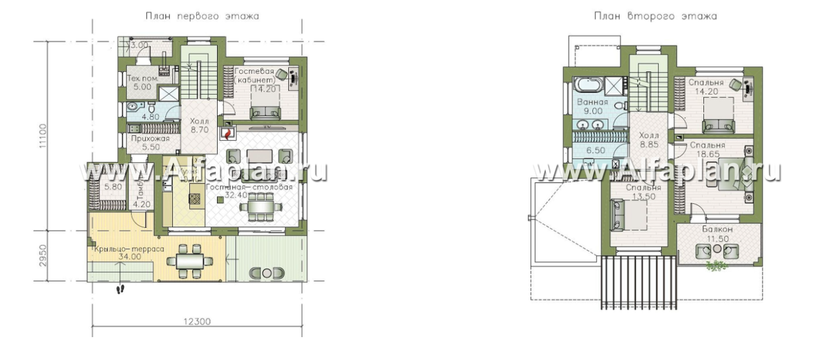
1057B-S «БАЛТИЙСКИЙ БРИЗ» ☝️— стиль минимализм, панорамное остекление, 4 спальни, 158 кв. м. Как вам такой вариант для современной семьи?

-2

2. 719 C-S «ПИФАГОР» — двухэтажный дом с террасой в современном стиле, 140 кв. м. Отличный выбор для тех, кто ценит функциональность и стиль!

-3
-4

3. 1030E «СИГМА» — скандинавский стиль, каркасный двухэтажный дом с плоской кровлей, 114 кв. м. Нежные тона и уютная обстановка — идеальный дом для уединения.

-5
-6

4. 468A-S «АРС» — стиль хай-тек, двухэтажный дом для узкого участка, 111 кв. м. Современный и стильный проект, который будет выгодно выделять ваш дом среди соседей.

-7
-8

5. 929A «БЕНУА» — современный одноэтажный дом с террасой, 127 кв. м. Простота и функциональность объединены в этом проекте.

-9
-10

6. 669B «БИССЕКТРИСА» — одноэтажный дом с диагональным планом и гостиной в форме кристалла, 144 кв. м. Уникальный и стильный проект дома для сложных участков.

-11
-12

7. 649A-S «НИАГАРА» — дом из газобетона в стиле хай-тек с террасой и плоской крышей, 165 кв. м. Эстетика и практичность объединены в этом проекте.

-13
-14

8. 754 C-S «КОРОНАДО» — двухэтажный дом в стиле хай-тек с террасой и вторым светом в гостиной, 177 кв. м. Элегантность и современность — вот что вы найдете в этом проекте.

-15
-16

9. 763B «СЕРОТОНИН» — двухэтажный дом в современном стиле хай-тек с террасой и балконом, навес на 2 авто, 180 кв. м. Простор и комфорт для вашей семьи!

-17
-18

10. 583A-S «ГОГЕН» — двухэтажный дом из газобетона в стиле баухаус с эксплуатируемой крышей, 193 кв. м. Уникальный и современный дом для ценителей стиля и комфорта.

-19
-20
Выбирайте свой идеальный проект дома с плоской крышей и превратите свои мечты в реальность! Каждый из этих проектов — это уникальная возможность создать уютный и стильный дом для вашей семьи.

👍 Подписывайтесь на наш канал Яндекс ДЗЕН. У нас – только уникальные авторские проекты домов. Еще больше интересных постов в нашем Telegram,VK.

#Проектдома #коттедж #домсполнымвторымэтажом #домвсовременномстиле #строительствочастногодома #Проектыдомов
#загородныйдом #проектыдомовикоттеджей #Проектдомаизгазобетона
#терассавдоме #домпроект #плоскаякровля