Добавить в корзинуПозвонить
Найти в Дзене
Берег Песочной

Индивидуальный Жилой Дом ПБ-159: Дом Вашей Мечты 🏡✨

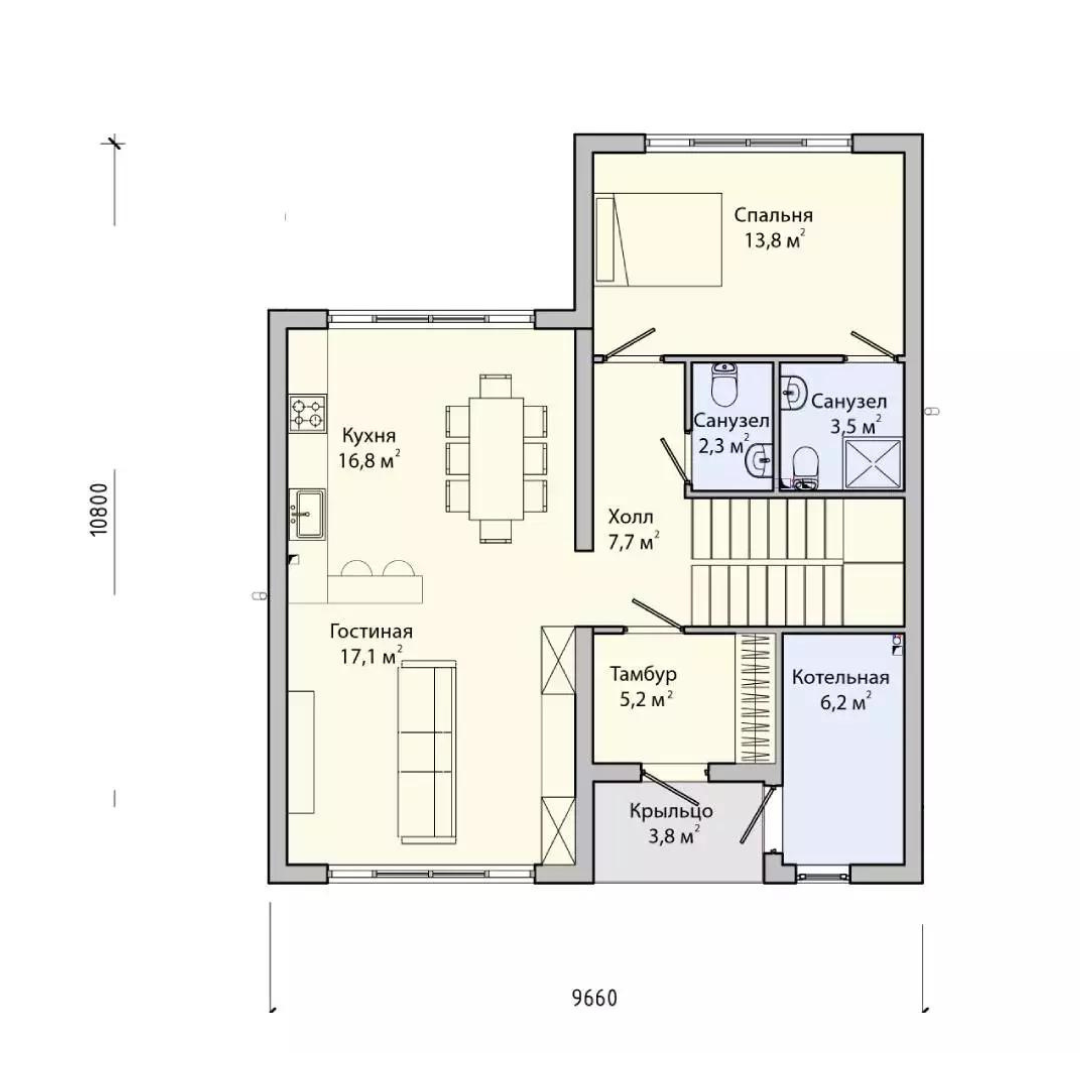
Встречайте проект индивидуального жилого дома ПБ-159, созданный для растущей семьи из 6-8 человек. Оформленный в современном стиле 🌟, этот двухэтажный дом площадью 155,8 м² воплощает в себе продуманную планировку и элегантное оформление. На первом этаже вы найдете: - Приветливый тамбур и холл 🚪; - Светлую гостиную, совмещенную с кухней, радующую теплом семейных встреч 🍽️; - Уютную гостевую спальню с индивидуальным санузлом 🛏️; - Необходимые техпомещение и санузел 🛠️. Второй этаж гордится: - Просторным холлом и тремя спальнями, включая мастер-спальню с гардеробной, личным санузлом и выходом на балкон — личным оазисом 🌺; - Удобным санузлом и кладовой для организованности вашего пространства 🚿. У каждого лота в поселке есть: - Оформленный земельный участок с оживленным газоном, элегантное ограждение и продуманное благоустройство 🌳; - фундамент, коробка дома из ЖБ панелей БЭНПАН+, утепленная плоская кровля, отделка фасада фактурной штукатуркой с комбинацией дерева; - Весь набор к

Встречайте проект индивидуального жилого дома ПБ-159, созданный для растущей семьи из 6-8 человек. Оформленный в современном стиле 🌟, этот двухэтажный дом площадью 155,8 м² воплощает в себе продуманную планировку и элегантное оформление.

На первом этаже вы найдете:

- Приветливый тамбур и холл 🚪;

- Светлую гостиную, совмещенную с кухней, радующую теплом семейных встреч 🍽️;

- Уютную гостевую спальню с индивидуальным санузлом 🛏️;

- Необходимые техпомещение и санузел 🛠️.

Второй этаж гордится:

- Просторным холлом и тремя спальнями, включая мастер-спальню с гардеробной, личным санузлом и выходом на балкон — личным оазисом 🌺;

- Удобным санузлом и кладовой для организованности вашего пространства 🚿.

У каждого лота в поселке есть:

- Оформленный земельный участок с оживленным газоном, элегантное ограждение и продуманное благоустройство 🌳;

- фундамент, коробка дома из ЖБ панелей БЭНПАН+, утепленная плоская кровля, отделка фасада фактурной штукатуркой с комбинацией дерева;

- Весь набор коммуникаций: водопровод, канализация, электричество и интернет 🌐;

- Опция дополнительной комплектации под white box, включающая предчистовую отделку.

Дом по проекту ПБ-159 обеспечит идеальное место для жизни, развития и благополучия вашей семьи.

Для деталей и организации экскурсии, свяжитесь с нами по 📞 +7 (495) 927-93-28.

#коттеджныйпоселок #коттеджныйгородок #берегпесочной #стройкадома #москвадома #строительстводомов #строительстоподключ #строительстводома #строительствокоттеджей #поселокновый #поселокмечта #бэнпан #покупкадома