Добавить в корзинуПозвонить
Найти в Дзене
Берег Песочной

⭐ Строящийся дом ПБ-134

Купить дом на этапе строительства, значит сэкономить семейный бюджет, а сэкономленные средства можно вложить, например, во внутреннюю отделку ☝ И мы представляем вам ещё один строящийся дом в нашем жилом комплексе которой уже сейчас доступен к покупке – это двухэтажный дом ПБ-134 площадью более 130 кв. метров. 📌 Дом возводится на участке площадью 5,02 сотки. Первый этаж дома состоит из: ✔ просторной кухни-гостиной; ✔ спальни; ✔ 2 санузлов; ✔ котельной. На втором этаже расположены: ✔ 3 спальни; ✔ 2 санузла; ✔ кладовая; ✔ холл. Дом ПБ-134 возводится из панелей БЭНПАН Премиум и БЭНПАН Апекс и сейчас находится на стадии возведения стен. В дом заведены: ◼ электричество; ◼ канализация; ◼ водопровод; ◼ интернет. К участку подведен газопровод. 📌 По периметру участка установлено ограждение, а на участке вымощено брусчаткой парковочное место. 💲 Покупка доступна с использованием маткапитала, ипотеки. Чтобы познакомиться с домом ПБ-134, записывайтесь на экскурсию и приезжайте в наш коттеджный п

Купить дом на этапе строительства, значит сэкономить семейный бюджет, а сэкономленные средства можно вложить, например, во внутреннюю отделку ☝

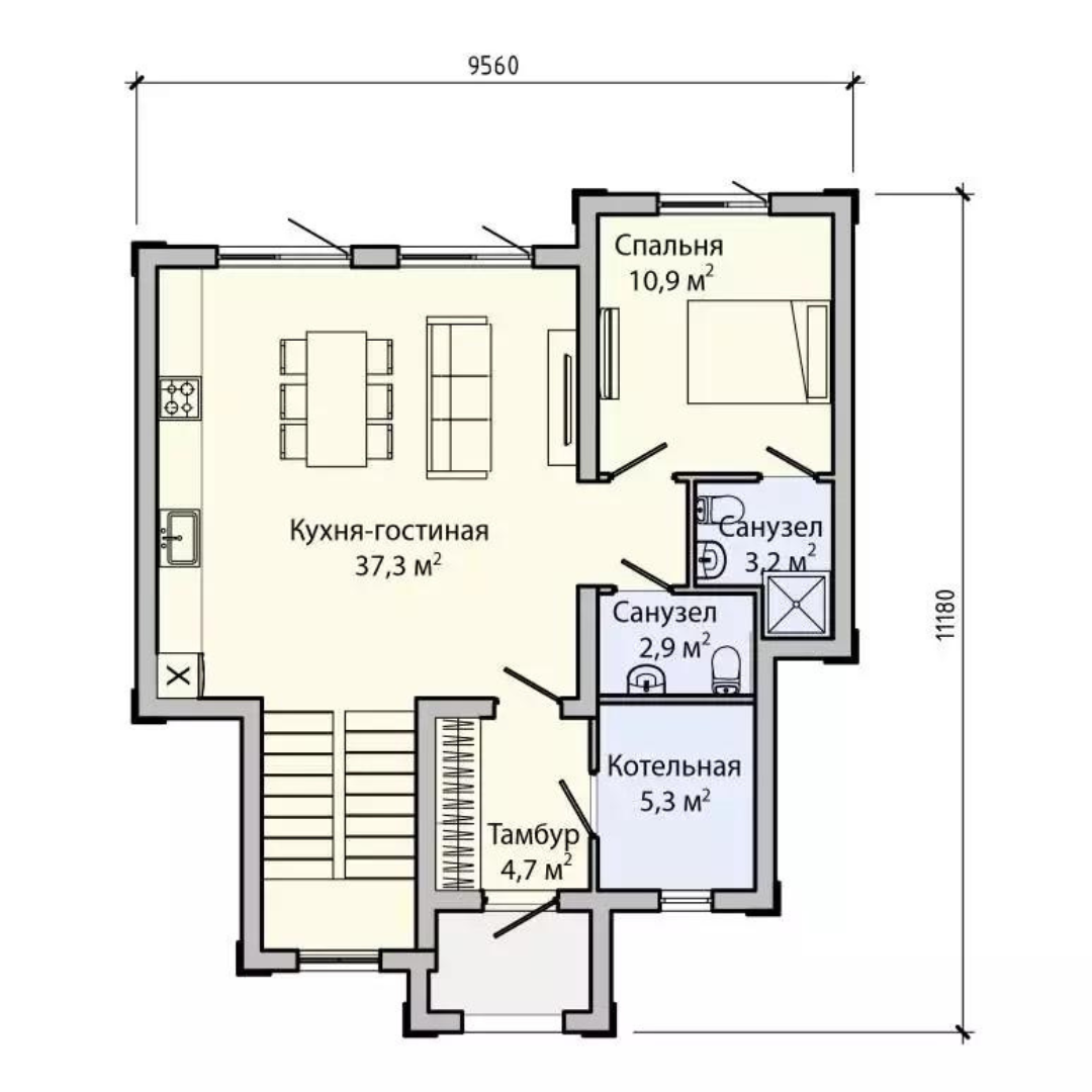
И мы представляем вам ещё один строящийся дом в нашем жилом комплексе которой уже сейчас доступен к покупке – это двухэтажный дом ПБ-134 площадью более 130 кв. метров.

📌 Дом возводится на участке площадью 5,02 сотки.

Первый этаж дома состоит из:

✔ просторной кухни-гостиной;

✔ спальни;

✔ 2 санузлов;

✔ котельной.

На втором этаже расположены:

✔ 3 спальни;

✔ 2 санузла;

✔ кладовая;

✔ холл.

Дом ПБ-134 возводится из панелей БЭНПАН Премиум и БЭНПАН Апекс и сейчас находится на стадии возведения стен.

В дом заведены:

◼ электричество;

◼ канализация;

◼ водопровод;

◼ интернет.

К участку подведен газопровод.

📌 По периметру участка установлено ограждение, а на участке вымощено брусчаткой парковочное место.

💲 Покупка доступна с использованием маткапитала, ипотеки.

Чтобы познакомиться с домом ПБ-134, записывайтесь на экскурсию и приезжайте в наш коттеджный посёлок. Запись по телефону: 📞 +7 (495) 927-93-28

#коттеджныйпоселок #коттеджныйгородок #берегпесочной #стройкадома #москвадома #строительстводомов #строительстоподключ #строительстводома #строительствокоттеджей #поселокновый #поселокмечта #бэнпан #покупкадома