Привет! На связи Анна – дизайнер интерьера.
От чего зависит время работы и скорость выполнения дизайн-проекта?
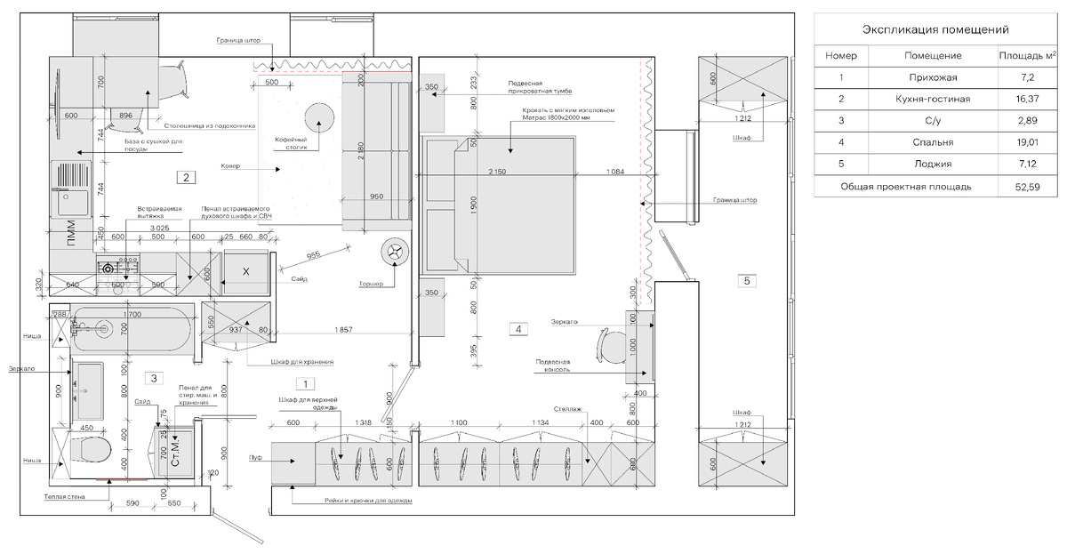
Дано: двухкомнатная квартира площадью 54 м2
Задача: сделать дизайн-проект, определить сроки и затраченное время.
Я буду описывать все этапы с указанием дат и событий, для наглядности.
Давайте начнем с определения двух важных понятий: ВРЕМЯ ПРОЕКТА и ВРЕМЯ РАБОТЫ дизайнера.
ВРЕМЯ ПРОЕКТА- включает в себя всё время в которое входит: время работы дизайнера, время ответов заказчика, время принятия решений, время поиска того или иного специалиста и его ответ (например, нам нужен специалист по кондиционированию и отоплению, для определения местоположения кондиционеров, радиаторов отопления, их размеров и т.д) и, конечно, дополнительное время работы над правками.
ВРЕМЯ РАБОТЫ дизайнера- это часть из всего времени проекта, где дизайнер анализирует первоначальные пожелания и представлений заказчика, информацию об объекте и проводит работу основанную на этих данных.
Итак, работа над дизайн-проектом — это сложный процесс, включающий в себя много различных этапов и участников.
Зачастую, заказчики ставят равно между время проекта и время работы дизайнера, но это, как вы понимаете, не совсем так. Я хочу обратить ваше внимание на этот аспект, чтобы работа над проектом проходила комфортно, результат был высокого качества, и мы находили взаимопонимание.
Для выбора подходящего дизайнера важно уточнять, какое время подразумевается при заключении договора. Это зависит от того, работает ли дизайнер самостоятельно, есть ли у него свои специалисты или свои регламенты по времени, которые вы тоже должны будете соблюдать.
Итак, НАЧНЕМ АНАЛИЗ ПРОЕКТА. Для удобства отсчета давайте возьмем 1 января. Я буду описывать наше взаимодействие с заказчиком своими словами, чтобы сохранить конфиденциальность нашей переписки.
(Обратите внимание на время ответов заказчика и какие задачи он ставит, так как это влияет на время завершения проекта.)
1 января
Мы связались с заказчиком, обсудили детали работы и договорились о ВЫЕЗДЕ НА ОБЪЕКТ для проведения замеров. В ходе встречи обсудили пожелания заказчика по планировке, функциональным зонам, цветовым предпочтениям и другим важным аспектам.
4 января
Я отправила ОБМЕРНЫЙ ЧЕРТЕЖ и мы ЗАКЛЮЧИЛИ ДОГОВОР. На основе обсуждений при встрече я приступила к работе над вариантами планировки и размещения мебели.
6 января
Я получила от заказчика РЕФЕРЕНСЫ по пожеланиям в интерьере и отправила несколько вариантов планировки. Заказчик сообщил, что рассмотрит предложенные варианты, примет решение, внесет необходимые правки и выберет наиболее подходящий вариант планировки.
(Так как не все файлы сохранились в переписке, для наглядности прикрепляю, то что есть в доступе.)
11-12 января
Я получила отзыв на предложенные планировки, внесла необходимые корректировки и мы утвердили окончательный вариант ПЛАНИРОВКИ ПОМЕЩЕНИЯ. В результате обсуждения пожеланий было организовано следующее планирование помещений в квартире: прихожая, кухня-гостиная, санузел с ванной, спальня и лоджия. Я начала разработку ЧЕРНОВЫХ ВИЗУАЛИЗАЦИЙ.
14 января
Я выслала черновые визуализации прихожей и кухни-гостиной, на что получила правки от заказчика по мебели и электрооборудованию (светильникам).
15 января
Я представила черновые визуализации санузла и получила правки по ним. Заказчик заинтересовался другим цветовым решением для керамогранита, и прислал мне дополнительные референсы по этому вопросу.
18 января
Я отправила второй комплект черновых визуализаций с различными вариантами расцветки керамогранита для санузла. Я получила второй круг правок и пожеланий от заказчика относительно цвета и раскладки плитки. Клиент заинтересовался представлением нового варианта плитки и выразил желание его рассмотреть.
19 января
Я отправила третий комплект черновых визуализаций санузла по новому референсу. Мы вернулись к исходным цветовым предпочтениям заказчика, осталась задача по поиску подходящего керамогранита, итого прошли третий круг правок для санузла.
26 января
Я представила черновые визуализации спальни, которые были утверждены заказчиком.
29 января и 1 февраля
Был отправлен 4-тый и 5-тый комплект черновых предложений по оформлению санузла, однако в 4-том комплекте заказчику ни один из представленных вариантов не подошел. Мы пришли к выводу, что необходимо сочетать различные текстуры покрытий в помещении - текстуру дерева в сочетании с напольным покрытием в других помещениях, как акцент, и к нему светлый, спокойный керамогранит. В 5-том комплекте черновых вариантов сочетаний плитки для санузла, и мы остановились на одном из более понравившихся вариантов.
2 февраля
Я отправилась в магазин отделочных материалов и прислала видео, внешнего вида понравившегося керамогранита заказчику.
3 февраля
Я выслала ШЕСТОЙ КОМПЛЕКТ черновых визуализаций с выбранными материалами для санузла и мы их утвердили.
4 февраля
Мы вернулись к работе над визуализациями остальных помещений, был отправлен второй комплект черновых визуализаций прихожей, кухни-гостиной. Я получила второй круг правок по пожеланиям цветового решения фасадов кухонного гарнитура и столешницы.
5 февраля
Я высылаю третий комплект черновых визуализаций прихожей, кухни-гостиной. Обсуждаем небольшие правки по освещению, итого проходим через третий круг правок по данному помещению.
9 февраля
Отправляю заказчику ЧЕТВЕРТЫЙ КОМПЛЕКТ черновых визуализаций прихожей, кухни-гостиной, который успешно утверждаем. Подготавливаю чистовые визуализации помещения.
10 февраля
Я высылаю ЧЕРНОВЫЕ ЧЕРТЕЖИ ЭЛЕКТРИКИ (светильники, выводы, выключатели, розетки и т.п) и в этот же день получаю правки. Вношу в работу все утвержденные электроприборы для чистовых визуализаций.
11-13 февраля
Я предоставляю предчистовые визуализации спальни, лоджии и санузла, которые заказчик утвердил.
15 февраля
Отправляю на рассмотрение и утверждение ПЛАНИРОВОЧНЫЕ ЧЕРТЕЖИ дизайн-проекта.
16 февраля
Я высылаю РАЗВЕРТКИ ПО СТЕНАМ, которые мы согласуем. Оформляю и просчитываю спецификации и ведомости.
17 февраля
Отправляю заказчику ГОТОВЫЙ АЛЬБОМ ДИЗАЙН-ПРОЕКТА.
В ходе разработки данного дизайн-проекта вы можете наблюдать ход работ и временные рамки каждого этапа. Заказчик был оперативным, четко ставил задачу и предоставлял референсы, соответствующие его предпочтениям. Наибольшее время занял поиск варианта керамогранита для санузла, что является типичной ситуацией, когда заказчик желает найти идеальное сочетание для того или иного помещения. Так случается, что не всегда можно сразу понять что ты хочешь и будет ли это подходить для тебя и нужного помещения. Но, нужно учитывать, что необходимо дополнительное время, которое будет потрачено на работу с правками и альтернативными вариантами, для достижения желаемых результатов. Для данного проекта не требовалось привлечение других специалистов, однако в большинстве случаев они необходимы. Теперь переходим к анализу цифр и временных показателей:
- Время проекта 48 календарных дней, вычитаем выходные (суббота и воскресенье)- 12 дней, получаем 36 рабочих дней заняла разработка проекта.
- Время работы дизайнера 18 дней.
- Время ответов заказчика 7 дней.
- Время принятие решений 1 день. В данном примере это день похода в магазин отделочных материалов, и выбор подходящего керамогранита для санузла.
- Дополнительное время работы над правками и альтернативными вариантами не меньше 10 дней, возможно больше, так как я работала в выходные.
Итак, данный пример и подсчет времени используются для демонстрации того, что работа над проектом включает в себя этапы, требующие определенного времени для завершения. ВРЕМЯ РАБОТЫ дизайнера- это анализ первоначальных пожеланий и представлений заказчика, информации об объекте и проведения работы основанная на этих данных. Время работы над вторым, третьим и т.д. кругом правок, определяется их количеством и видом, и чем их больше, тем больше времени требуется на завершение проекта. В большинстве случаев у дизайнера есть ограниченное количество бесплатных кругов правок, и любая дополнительная работа оплачивается отдельно. Время ожидания ответов от заказчика, принятия решений и поиска других специалистов зависит от оперативности заказчика и доступности необходимых специалистов, и все это вместе, составляет ВРЕМЯ ПРОЕКТА.
