Добавить в корзинуПозвонить
Найти в Дзене
АО «ТАМАК»

Обзор домов из клеёного бруса серии «Русский дом»

Линейка проектов «Русский дом» позволит почувствовать размах и неповторимость архитектурного искусства, в котором отражена вся широта и богатство русской души. Это эксклюзивная коллекция, созданная для тех, кто ценит историю, бережет традиции и с трепетом относится к культурному наследию своего народа. Серия включает в себя восемь проектов: от компактных, общей площадью 90 м², до просторных, территория которых занимает 337 м². Внешняя отделка домов выполнена в лучших традициях национального стиля и дополнена едва уловимыми сказочными мотивами, которые придают фасадам особое очарование. Внутри расположились просторные и светлые комнаты, где каждый квадратный метр наполнен уютом и функциональностью. «Русский дом-90» - это современный проект из клеёного бруса, в котором есть всё для комфортной жизни и отдыха. В доме продуманная планировка: на первом этаже расположены просторная гостиная, которая гармонично объединяется с обеденной зоной, а также кухня и санузел. Дополнительный уют создают
Оглавление

Линейка проектов «Русский дом» позволит почувствовать размах и неповторимость архитектурного искусства, в котором отражена вся широта и богатство русской души. Это эксклюзивная коллекция, созданная для тех, кто ценит историю, бережет традиции и с трепетом относится к культурному наследию своего народа.

Серия включает в себя восемь проектов: от компактных, общей площадью 90 м², до просторных, территория которых занимает 337 м². Внешняя отделка домов выполнена в лучших традициях национального стиля и дополнена едва уловимыми сказочными мотивами, которые придают фасадам особое очарование. Внутри расположились просторные и светлые комнаты, где каждый квадратный метр наполнен уютом и функциональностью.

Обзор проекта «Русский дом-90»

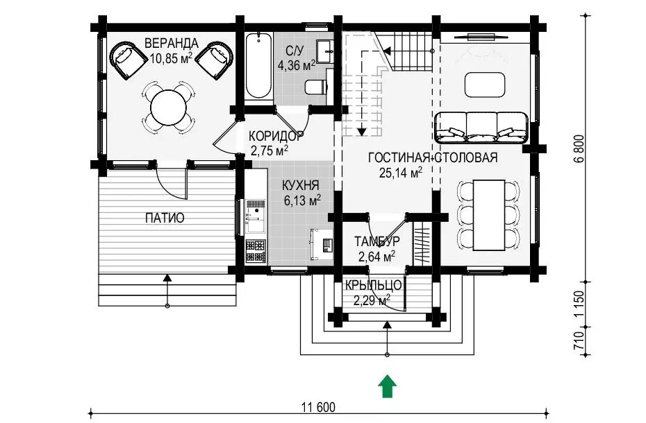
«Русский дом-90» - это современный проект из клеёного бруса, в котором есть всё для комфортной жизни и отдыха. В доме продуманная планировка: на первом этаже расположены просторная гостиная, которая гармонично объединяется с обеденной зоной, а также кухня и санузел. Дополнительный уют создают терраса и веранда, из которых открывается великолепный вид на панораму участка.

Второй этаж проекта «Русский дом-90» также продуман до мелочей. За полноценный отдых и покой владельцев и гостей дома отвечают две спальни. Холл второго этажа может быть оборудован в качестве дополнительной зоны уединения, где можно устроить уголок для чтения или детское игровое пространство.

План первого этажа двухэтажного дома «Русский дом-90»
План первого этажа двухэтажного дома «Русский дом-90»
План второго этажа двухэтажного дома «Русский дом-90»
План второго этажа двухэтажного дома «Русский дом-90»

ХАРАКТЕРИСТИКИ ПРОЕКТА:

  • Общая площадь: 89.67 м²
  • Площадь помещений: 89,67 м²
  • Площадь террас и балконов: 2.29 м²
  • Общая площадь 1 этажа: 51.87 м²
  • Общая площадь 2 этажа: 37.8 м²
  • Спальни, шт.: 2
  • Санузлы, шт.: 1

Обзор проекта «Русский дом-166»

Эстетичный внешний вид и эргономичное внутреннее пространство проекта «Русский дом-166» понравятся даже самым требовательным заказчикам. Территория общей площадью 192 м² продумана таким образом, чтобы на ней было все необходимое для жизни и даже больше.

На первом этаже размещена просторная гостиная-столовая с большими окнами и обилием естественного света, уютная кухня, гардеробная комната, а также гостевая спальня, которую при необходимости можно переоборудовать в кабинет или домашнюю библиотеку. Две террасы, расположенные на противоположных сторонах дома, позволят хозяевам наслаждаться активным отдыхом или спокойным досугом на свежем воздухе. На втором этаже расположены четыре спальни, одна из которых дополнена гардеробной, а другая имеет выход на собственный балкон. Ванная комната на этаже практично размещена между спальнями.

План первого этажа двухэтажного дома «Русский дом-166»
План первого этажа двухэтажного дома «Русский дом-166»
План второго этажа двухэтажного дома «Русский дом-166»
План второго этажа двухэтажного дома «Русский дом-166»
Фотография построенного дома по проекту «Русский дом-166»
Фотография построенного дома по проекту «Русский дом-166»

ХАРАКТЕРИСТИКИ ПРОЕКТА:

  • Общая площадь: 192.2 м²
  • Площадь помещений: 165,6 м²
  • Площадь террас и балконов: 26.6 м²
  • Общая площадь 1 этажа: 112.33 м²
  • Общая площадь 2 этажа: 79.87 м²
  • Спальни, шт.: 5
  • Санузлы, шт.: 2
  • Техническое помещение: да

Обзор дома «Русский дом-183»

Проект «Русский дом-183» предлагает максимальное удобство и свободу для жизни, вдохновляющей на отдых и творчество. Распределение пространства между зонами организовано таким образом, что на первом этаже площадью 123 м² уютно разместились функциональные зоны: просторная гостиная-столовая площадью 40 м², современная кухня, две комфортабельные спальни, практичное техническое помещение и вместительные санузлы.

Второй этаж представляет собой аутентичное пространство, которое может стать чем угодно, исходя из потребностей владельца — от бильярдной до спортзала или творческой мастерской, позволяя воплотить в жизнь самые смелые и уникальные дизайнерские решения. Дополнительно оборудованный здесь санузел повышает комфорт использования этажа.

План первого этажа двухэтажного дома «Русский дом-183»
План первого этажа двухэтажного дома «Русский дом-183»
План второго этажа двухэтажного дома «Русский дом-183»
План второго этажа двухэтажного дома «Русский дом-183»

ХАРАКТЕРИСТИКИ ПРОЕКТА:

  • Общая площадь: 186.71 м²
  • Площадь помещений: 182,74 м²
  • Площадь террас и балконов: 3.97 м²
  • Общая площадь 1 этажа: 123.08 м²
  • Общая площадь 2 этажа: 63.63 м²
  • Спальни, шт.: 2
  • Санузлы, шт.: 2
  • Техническое помещение: да

Обзор дома «Русский дом-203»

Проект «Русский дом-203» — это выбор тех, кто желает получить современный, долговечный и красивый дом. Разработанный с особым вниманием к деталям, этот коттедж из клееного бруса, общей площадью 243 м², обладает всеми качествами, необходимыми современной семье. Уникальная планировка первого этажа совмещает в себе широкую и светлую гостиную со «вторым светом», перетекающую в кухню и обеденную зону. Здесь же расположилась спальня с личной гардеробной и санузлом, а также кладовая. Главная изюминка первого этажа — терраса, обрамляющая дом с трех сторон.

На втором этаже территория столь же продумана, как и на первом. Просторный холл площадью 31 м² это свободная зона, где легко создать спортивный уголок, уютное место отдыха или игровую комнату для детей. Две отдельные спальни, каждая со своим санузлом, обеспечивают полное уединение и комфорт для всех членов семьи. Особого внимания заслуживает мастер-спальня, которая дополнительно оснащена вместительной гардеробной.

План первого этажа двухэтажного дома «Русский дом-203»
План первого этажа двухэтажного дома «Русский дом-203»
План второго этажа двухэтажного дома «Русский дом-203»
План второго этажа двухэтажного дома «Русский дом-203»
Фотография построенного дома по проекту «Русский дом-203»
Фотография построенного дома по проекту «Русский дом-203»

ХАРАКТЕРИСТИКИ ПРОЕКТА:

  • Общая площадь: 243.08 м²
  • Площадь помещений: 202,56 м²
  • Площадь террас и балконов: 40.52 м²
  • Общая площадь 1 этажа: 159.97 м²
  • Общая площадь 2 этажа: 83.11 м²
  • Спальни, шт.: 3
  • Санузлы, шт.: 4
  • Техническое помещение: да

Обзор дома «Русский дом-219»

«Русский дом-219» - это просторный и функциональный проект, созданный с особым вниманием ко всем деталям как снаружи, так и внутри. Первый этаж предлагает продуманное распределение пространства: здесь есть гараж для одного автомобиля, мастерская, просторная гостиная, кухня-столовая, а также небольшая, но уютная парная с комнатой отдыха, всесезонная веранда, две кладовые, гардеробная и необходимые технические помещения.

Второй этаж - это более приватное пространство, здесь расположились две спальни, одна из которых запроектирована с индивидуальной гардеробной комнатой. Полноценный санузел и компактная кладовая на этом этаже являются дополнительными удобствами для комфортной жизни всех членов семьи. Главный акцент — просторная гостиная с выходом на балкон, откуда можно насладиться видами местной природы.

План первого этажа двухэтажного дома «Русский дом-219»
План первого этажа двухэтажного дома «Русский дом-219»
План второго этажа двухэтажного дома «Русский дом-219»
План второго этажа двухэтажного дома «Русский дом-219»

ХАРАКТЕРИСТИКИ ПРОЕКТА:

  • Общая площадь: 234.21 м²
  • Площадь помещений: 219,39 м²
  • Площадь террас и балконов: 14.82 м²
  • Общая площадь 1 этажа: 152.87 м²
  • Общая площадь 2 этажа: 81.34 м²
  • Спальни, шт.: 2
  • Санузлы, шт.: 2
  • Кабинеты, шт.: 1
  • Техническое помещение: да
  • Гараж: да
  • Сауна: да

Обзор дома «Русский дом-235»

Проект «Русский дом-235» это сочетание эстетики русской архитектуры и современных технологий деревянного домостроения. Этот дом станет идеальным выбором для тех, кто ценит природные материалы, уют и удобство загородной жизни. На общей площади в 271 м² разместились все функциональные зоны, необходимые для полноценного отдыха и жизни за городом.

Первый этаж включает в себя просторную гостиную, плавно перетекающую в каминный зал, кухню-столовую с удобным выходом на террасу площадью 33 м², отдельную спальню, техническое помещение, прачечную и санузел. На втором этаже дома находятся зоны для более уединённого времяпрепровождения. Три вместительные спальни, две из которых оборудованы отдельными санузлами, создадут комфортную атмосферу для восстановления сил и здорового сна. Также на этом этаже находится отдельный кабинет для работы или учебы и светлый холл площадью 22 м², который может служить общим местом отдыха или игровой зоной для детей.

План первого этажа двухэтажного дома «Русский дом-235»
План первого этажа двухэтажного дома «Русский дом-235»
План второго этажа двухэтажного дома «Русский дом-235»
План второго этажа двухэтажного дома «Русский дом-235»

ХАРАКТЕРИСТИКИ ПРОЕКТА:

  • Общая площадь: 271.89 м²
  • Площадь помещений: 234,97 м²
  • Площадь террас и балконов: 36.92 м²
  • Общая площадь 1 этажа: 168.61 м²
  • Общая площадь 2 этажа: 103.28 м²
  • Спальни, шт.: 4
  • Санузлы, шт.: 3
  • Кабинеты, шт.: 1
  • Техническое помещение: да

Обзор дома «Русский дом-257»

Проект коттеджа «Русский дом-257» порадует своей функциональностью и продуманностью каждого квадратного метра. Общая жилая площадь в 283 м² включает в себя удобные и просторные жилые комнаты, что делает его идеальным выбором для семьи, ценящей комфорт и простор. Распределение пространства на первом этаже обеспечивает легкий доступ ко всем необходимым помещениям: от просторной гостиной и уютного кабинета до функциональной столовой, совмещенной с кухней. Не стоит забывать и про технические помещения, гардероб и удобный санузел. Дополняют пространство дома две входные зоны, расположенные на противоположных сторонах здания, а также уникальная веранда площадью 16 м², которая идеальна для всесезонного отдыха на свежем воздухе.

На втором этаже «Русского дома-257» расположены четыре спальные комнаты, которые предоставляют много личного пространства каждому члену семьи. Наличие вместительной библиотеки даёт возможность уютно провести время с книгой или заняться работой. Санузел и отдельная ванная комната, обеспечивают дополнительное удобство для всех домочадцев. Но настоящей изюминкой проекта можно считать лоджию площадью 16 м со стеклянной крышей, расположенную на втором этаже. Попасть на нее можно прямо из библиотеки или одной из спален, что позволяет любоваться окружающими пейзажами и наслаждаться свежим воздухом.

План первого этажа двухэтажного дома «Русский дом-257»
План первого этажа двухэтажного дома «Русский дом-257»
План второго этажа двухэтажного дома «Русский дом-257»
План второго этажа двухэтажного дома «Русский дом-257»
Фотография построенного дома по проекту «Русский дом-257»
Фотография построенного дома по проекту «Русский дом-257»

ХАРАКТЕРИСТИКИ ПРОЕКТА:

  • Общая площадь: 283.89 м²
  • Площадь помещений: 256,86 м²
  • Площадь террас и балконов: 27.03 м²
  • Общая площадь 1 этажа: 157.34 м²
  • Общая площадь 2 этажа: 126.55 м²
  • Спальни, шт.: 4
  • Санузлы, шт.: 3
  • Кабинеты, шт.: 1
  • Техническое помещение: да

Обзор дома «Русский дом-277»

Элегантное воплощение природных материалов в тщательно проработанном дизайне проекта «Русский дом-277» делает его прекрасным вариантом для тех, кто стремится к красоте и гармонии в своём доме. Просторный первый этаж включает в себя кухню, вместительную столовую и гостиную для общения и отдыха, кабинет для работы или уединенного досуга, а также широкий холл, прихожую, небольшую гардеробную и комфортабельную ванную комнату. Также проект предусматривает наличие трех террас площадью от 7 до 23 м², приглашающих полюбоваться окружающим ландшафтом.

На втором этаже расположены четыре просторные светлые спальни, каждая из которых имеет собственный выход на совмещенные балконы, обращенные в тихий уютный двор. Дополнительно на этаже расположены две ванные комнаты, что обеспечивает комфорт и практичность как для большой семьи, так и для гостей.

План первого этажа двухэтажного дома «Русский дом-277»
План первого этажа двухэтажного дома «Русский дом-277»
План второго этажа двухэтажного дома «Русский дом-277»
План второго этажа двухэтажного дома «Русский дом-277»

ХАРАКТЕРИСТИКИ ПРОЕКТА:

  • Общая площадь: 337.73 м²
  • Площадь помещений: 277,45 м²
  • Площадь террас и балконов: 60.28 м²
  • Общая площадь 1 этажа: 210.96 м²
  • Общая площадь 2 этажа: 126.77 м²
  • Спальни, шт.: 4
  • Санузлы, шт.: 3
  • Кабинеты, шт.: 1
  • Техническое помещение: да

Покупая дом из клееного бруса АО «ТАМАК», вы выбираете качество, надежность и экологичность. С каждым новым проектом мы подтверждаем свою репутацию и продолжаем работать над тем, чтобы наши дома были не только красивыми и комфортными, но и способствовали сохранению здоровья наших клиентов и окружающей среды.

Мы надеемся, что эта статья была полезной для вас, предлагаем посмотреть и другие варианты проектов в нашем каталоге: открыть