Найти в Дзене

Новый стильный и современный проект одноэтажного дома 109 м2

Люблю грозу в начале мая, и в начале июня, и в середине июня... 🤔
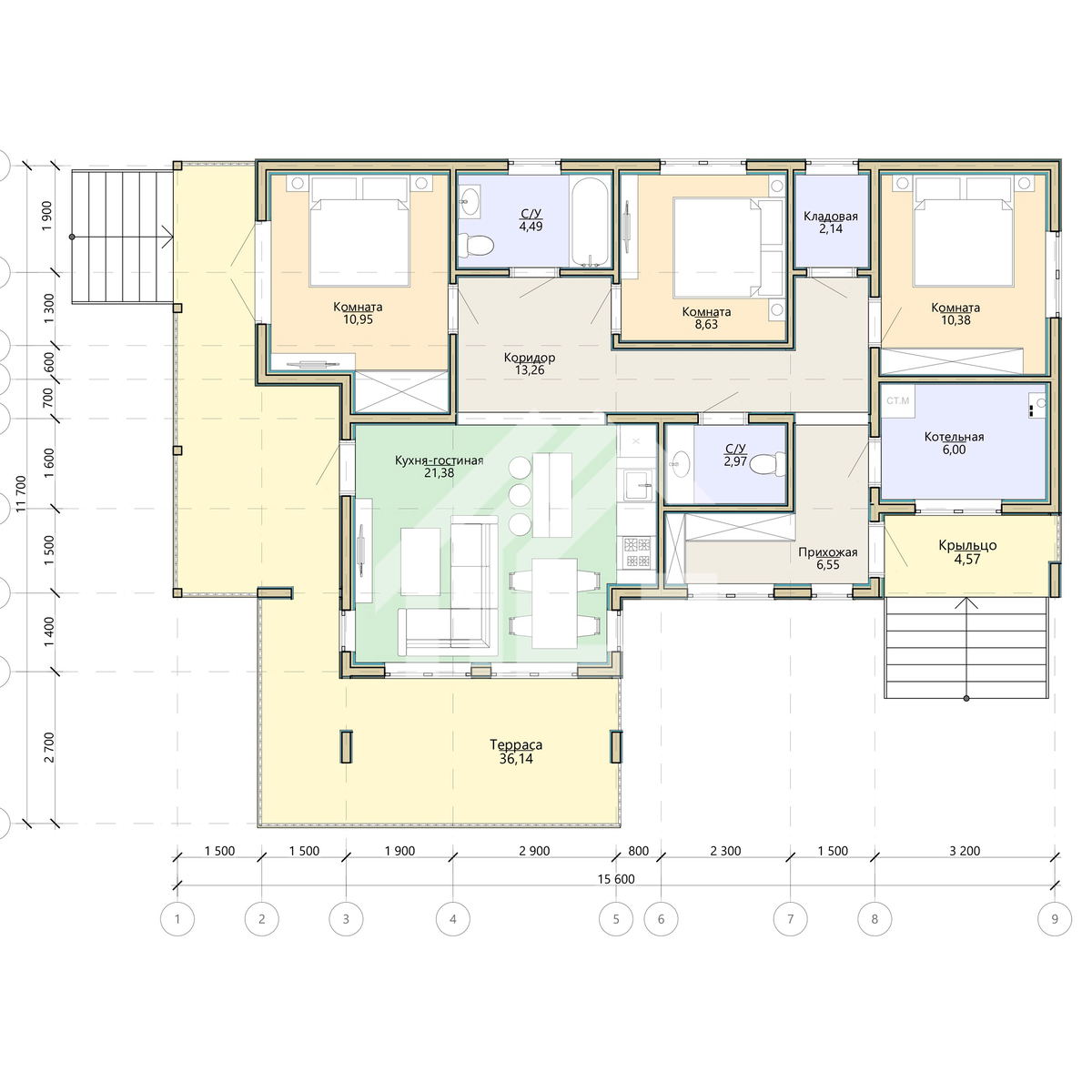
Есть своя романтика в том, чтобы засыпать и просыпаться под звуки грома и дождя. Но мы все-таки надеемся, что синоптики ошиблись и совсем скоро снова будет солнечно и жарко, а пока предлагаем вам взглянуть на наш новый проект одноэтажного каркасного дома со вторым светом общей площадью 109 м2.
Внутри:
три комнаты;
вместительная кухня-гостиная 21,38 м2;
два санузла, котельная и кладовая;
длинный коридор и прихожая;
И просторная терраса — целых 36,14 м2. По желанию клиента, ее можно либо оставить в предложенном варианте, либо уменьшить площадь.
Этот стильный и современный проект несомненно будет выделяться на фоне других домов.
За счет большого количества панорамных оконных проёмов, внутри всегда будет светло и комфортно. Крыша "кликфальц" — это одно из самых устойчивых современных кровельных покрытий: оно не подвержено коррозии и воздействию ультрафиолета.
Строительная компания EVA Group +7 (

Люблю грозу в начале мая, и в начале июня, и в середине июня... 🤔

Есть своя романтика в том, чтобы засыпать и просыпаться под звуки грома и дождя. Но мы все-таки надеемся, что синоптики ошиблись и совсем скоро снова будет солнечно и жарко, а пока предлагаем вам взглянуть на наш новый проект одноэтажного каркасного дома со вторым светом общей площадью 109 м2.

-2


Внутри:

три комнаты;
вместительная кухня-гостиная 21,38 м2;
два санузла, котельная и кладовая;
длинный коридор и прихожая;

И просторная терраса — целых 36,14 м2. По желанию клиента, ее можно либо оставить в предложенном варианте, либо уменьшить площадь.

-3


Этот стильный и современный проект несомненно будет выделяться на фоне других домов.

За счет большого количества панорамных оконных проёмов, внутри всегда будет светло и комфортно. Крыша "кликфальц" — это одно из самых устойчивых современных кровельных покрытий: оно не подвержено коррозии и воздействию ультрафиолета.

Строительная компания EVA Group

+7 (4942) 30-00-19
г. Кострома, Никитский проезд, 13