Добавить в корзинуПозвонить
Найти в Дзене

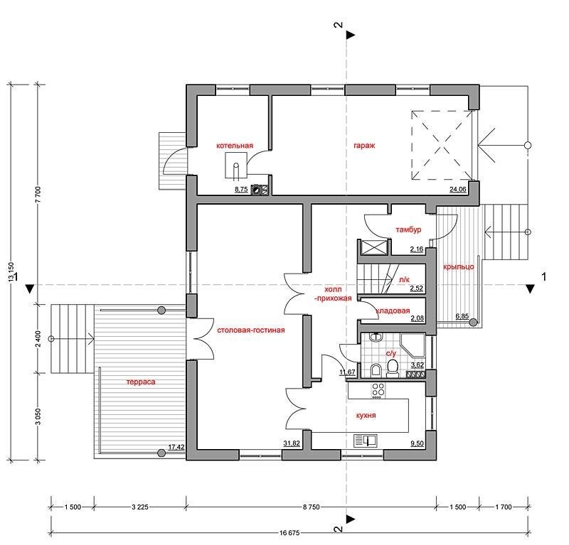
Уютный дом в стиле неофахверк с гаражом и террасой

«Василек» — это приятный во всех отношениях коттедж с мансардой: эстетичный, функциональный и комфортабельный. Отделка фасада наполнена элементами стиля неофахверк: светлая фактурная штукатурка разбавлена деревянными балками. Пространство под окнами и цоколь декорированы диким камнем. Терраса, крыльцо и два балконы украшены деревянными перилами, поддерживающими общую стилистику. Справа от крыльца расположен гараж для одного автомобиля, органично вписанный в облик дома. «Василек» рассчитан на постоянное и комфортное проживание большой семьи, состоящей из 5-8 человек: на мансардном этаже расположены четыре просторных и уютных спальни и санузел. Первый этаж – зона размеренного досуга; здесь находятся кухня, кладовая, санузел и большая столовая-гостиная с выходом на террасу: именно здесь будет собираться вся семья, наслаждаясь обществом друг друга в приятной и расслабленной атмосфере. Площадь дома - 231 кв.м.
Габариты - 16.7 x 13.2 м. Оставьте заявку прямо сейчас для получения оптимальног

«Василек» — это приятный во всех отношениях коттедж с мансардой: эстетичный, функциональный и комфортабельный. Отделка фасада наполнена элементами стиля неофахверк: светлая фактурная штукатурка разбавлена деревянными балками. Пространство под окнами и цоколь декорированы диким камнем. Терраса, крыльцо и два балконы украшены деревянными перилами, поддерживающими общую стилистику. Справа от крыльца расположен гараж для одного автомобиля, органично вписанный в облик дома.

«Василек» рассчитан на постоянное и комфортное проживание большой семьи, состоящей из 5-8 человек: на мансардном этаже расположены четыре просторных и уютных спальни и санузел. Первый этаж – зона размеренного досуга; здесь находятся кухня, кладовая, санузел и большая столовая-гостиная с выходом на террасу: именно здесь будет собираться вся семья, наслаждаясь обществом друг друга в приятной и расслабленной атмосфере.

Планировка

Площадь дома - 231 кв.м.
Габариты - 16.7 x 13.2 м.

Оставьте заявку прямо сейчас для получения оптимального коммерческого предложения. Для этого переходите по ссылке => проект «Василек»

Смотрите также на нашем сайте другие проекты двухэтажных домов.

Советуем зайти на наш официальный сайт stone-wood-house.ru

⭐Планировка дома всегда разрабатывается индивидуально под потребности и пожелания каждого владельца. По Вашему желанию мы можем внести любые изменения в проект дома, оптимизировать текущую комплектацию. Мы спроектируем и построим «под ключ» дом Вашей мечты!

На всех этапах строительства дома, разработки проекта дома, мы учитываем все индивидуальные потребности и пожелания заказчика и членов его семьи. Наше сопровождение не заканчивается на строительстве дома. Мы всегда готовы выполнить проектирование и оформление ландшафта, интерьера и благоустройство территории.

⭐ Мы спроектируем и построим «под ключ» дом Вашей мечты с гарантией 5 лет!

Позвоните нам для консультации: 8-965-199-61-04

____________

С Уважением, строительно-проектная компания «Стоун Вуд Хаус»

#двухэтажный дом #проектдвухэтажногодома #проектдома #проектирование #загородныйдом #коттедж #строительство #ремонтвдоме #ремонт #недвижимость #строимдом #строительствоиремонт #загороднаянедвижимость #проекты загородного дома #проект частный дом #загородные дома проекты #архитектор #дизайн # дома с террасами