Добавить в корзинуПозвонить
Найти в Дзене

Русская баня 16м2 с двумя печами: от проектирования до отделки.

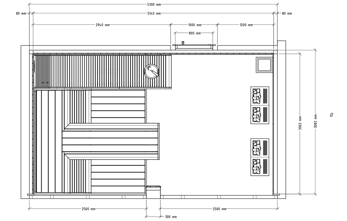
Представляем вам наш новый реализованный проект - большую русскую баню из термообработанной ольхи. О том, какие были пожелания заказчика, какие задачи стояли перед нами и что получилось в итоге - читайте далее! Наш клиент - любитель настоящей русской бани и индивидуального парения. Парную планировал посещать один, поэтому фантазии наших дизайнеров и архитекторов по геометрии и эргономике помещения были безграничны. Брутальность. Парная должна смотреться серьезно и в тоже время стильно. Материал помещения должен быть благородный и натуральный. Долговечность. Нередки и посещения парной пар-мастером. Материал должен выдерживать большую нагрузку и механическое воздействие, не теряя внешнего вида. Функциональность. Обязательное наличие анатомического полка и парильного стола в помещении. А также системы "второе дыхание". Реализовать мужественную русскую баню из максимально красивого и долговечного материала. Учесть мощность печи и пространство. Большие размеры помещения 3082ммх5300мм позвол
Оглавление

Представляем вам наш новый реализованный проект - большую русскую баню из термообработанной ольхи. О том, какие были пожелания заказчика, какие задачи стояли перед нами и что получилось в итоге - читайте далее!

Реализация русской бани 16м2
Реализация русской бани 16м2

Пожелания клиента и наши задачи

Наш клиент - любитель настоящей русской бани и индивидуального парения. Парную планировал посещать один, поэтому фантазии наших дизайнеров и архитекторов по геометрии и эргономике помещения были безграничны.

Основные пожелания клиента:

Брутальность. Парная должна смотреться серьезно и в тоже время стильно. Материал помещения должен быть благородный и натуральный.

Долговечность. Нередки и посещения парной пар-мастером. Материал должен выдерживать большую нагрузку и механическое воздействие, не теряя внешнего вида.

Функциональность. Обязательное наличие анатомического полка и парильного стола в помещении. А также системы "второе дыхание".

Наша задача:

Реализовать мужественную русскую баню из максимально красивого и долговечного материала. Учесть мощность печи и пространство.

-2

Геометрия и эргономика помещения

Большие размеры помещения 3082ммх5300мм позволили нашим дизайнерам вместить все необходимое: по правой стороне расположился большой анатомический полок, посередине - парильный стол. Слева от входа мы разместили 2 электрические печи.

Такая геометрия помещения идеальна для посещения бани 1-2 людям. Каждый сможет комфортно разместиться на полках лежа или сидя.

Материал

В качестве основного материала мы выбрали прочную и долговечную ольху в комбинации с термированным вариантом.

15-летний опыт работы показал нам, что термоольха - один из самых лучших материалов для отделки бань и саун. Дерево имеет бархатистую текстуру и не портится со временем.

-3

Второе дыхание

В парильный стол мы встроили систему "второе дыхание".

-4
-5

В русской бане стоят две электрические печи.