Найти в Дзене
VOLDOMA

Новый проект дома БД-116

Новый проект дома БД-116 от VOLDOMA! В июне мы разработали целых 3 новых проекта одноэтажных домов, сегодня представляем первый — дом из клееного бруса БД-116. Здесь есть просторная кухня-гостиная, 3 спальни, терраса и даже гардероб!  Площадь — 116 м2  Размер — 10,3x13,5 м    Терраса — 10,5 м2 Прихожая — 4,5 м2 Тех.помещение — 3,2 м2 Кухня-гостиная — 36 м2 Спальни две по 13,3 м2 и одна 11,8 м2 Гардеробная — 3,1м2  С/у — 5,9 м2 Холл — 6,3 м2 Стоимость дома «под ключ» с коммуникациями - 6,2 млн. ₽ Можно оформить в ипотеку от 3% и вложить маткапитал!  Звоните и пишите нам:   —8-800-222-82-44,  —Telegram, WhatsApp: 8(921)064-74-44, 8(921)250-60-66    VOLDOMA — добро пожаловать домой!

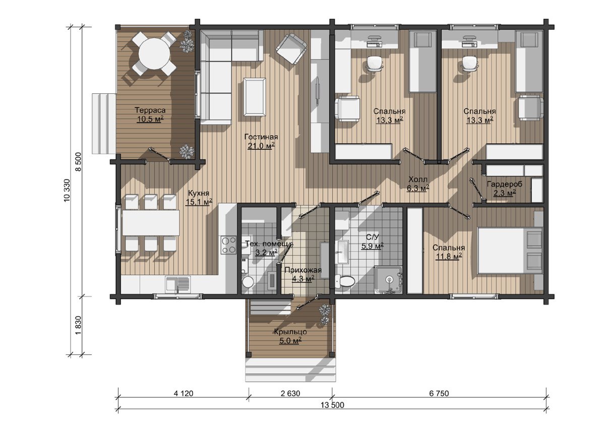
Новый проект дома БД-116 от VOLDOMA!

В июне мы разработали целых 3 новых проекта одноэтажных домов, сегодня представляем первый — дом из клееного бруса БД-116. Здесь есть просторная кухня-гостиная, 3 спальни, терраса и даже гардероб! 

Площадь — 116 м2 

Размер — 10,3x13,5 м 

 

Терраса — 10,5 м2

Прихожая — 4,5 м2

Тех.помещение — 3,2 м2

Кухня-гостиная — 36 м2

Спальни две по 13,3 м2 и одна 11,8 м2

Гардеробная — 3,1м2 

С/у — 5,9 м2

Холл — 6,3 м2

-2

Стоимость дома «под ключ» с коммуникациями - 6,2 млн. ₽

Можно оформить в ипотеку от 3% и вложить маткапитал! 

Звоните и пишите нам:

 

—8-800-222-82-44, 

—Telegram, WhatsApp: 8(921)064-74-44, 8(921)250-60-66 

-3

-4

-5

-6

-7

 

VOLDOMA — добро пожаловать домой!