Найти в Дзене

Планировка дома по готовому фундаменту. План с расстановкой мебели для одноэтажного дома.

Здравствуйте, с вами Оксана Фильц, дизайнер интерьера, организатор пространства и проектировщик мебели. На своем канала я стараюсь делиться с вами только собственными проектами без воды и лишних слов. Все проекты, которые я описываю реальные. Вы можете воспользоваться ими, если у вас похожая ситуация. Или брать себе на заметку решения, которые вам больше всего понравились. Пожалуйста, поддержите мой канал, поставьте лайк или оставьте свои комментарии внизу статьи. Буду рада любому комментарию, даже если вы со мной не согласны и у вас есть другие мысли по этому поводу. Итак, сегодня у нас проект: «План с расстановкой мебели на фундаменте дома». На видео можно видеть фундамент, для которого делали проект. Поясню для большего понимания задачи. Заказчики купили участок с уже готовым фундаментом. Проекта дома для этого фундамента у него не было. Заказчик хотел понять можно ли на данном фундаменте разместить все необходимые ему помещения для жизни. Или нужно демонтировать старый фундамент и
Фото из личного архива. Возведение стен по проекту.
Фото из личного архива. Возведение стен по проекту.

Здравствуйте, с вами Оксана Фильц, дизайнер интерьера, организатор пространства и проектировщик мебели. На своем канала я стараюсь делиться с вами только собственными проектами без воды и лишних слов.

Все проекты, которые я описываю реальные. Вы можете воспользоваться ими, если у вас похожая ситуация. Или брать себе на заметку решения, которые вам больше всего понравились. Пожалуйста, поддержите мой канал, поставьте лайк или оставьте свои комментарии внизу статьи. Буду рада любому комментарию, даже если вы со мной не согласны и у вас есть другие мысли по этому поводу.

Итак, сегодня у нас проект: «План с расстановкой мебели на фундаменте дома».

На видео можно видеть фундамент, для которого делали проект.

Поясню для большего понимания задачи.

Заказчики купили участок с уже готовым фундаментом. Проекта дома для этого фундамента у него не было. Заказчик хотел понять можно ли на данном фундаменте разместить все необходимые ему помещения для жизни. Или нужно демонтировать старый фундамент и делать новый.

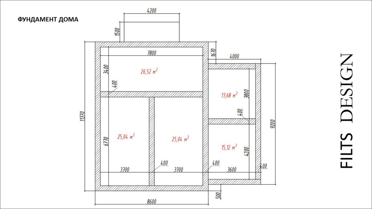
Итак, у нас есть замеры фундамента дома, а также фотографии и видео.

Фото из личного архива. Замеры фундамента.
Фото из личного архива. Замеры фундамента.

На этом фундаменте заказчик хочет:

  • Разместить техническую комнату, три изолированные комнаты, хотя бы одну гардеробную, лучше две, санузел с душевой (достаточно одного).
  • Расположить вход с разных сторон с учётом деревьев на участке. Обязательно разместить камин.
  • Выделить одну гардеробную, детскую, спальню и кухню-гостиную.

К тому же у заказчика уже были в наличии витражные окна, их тоже нужно было грамотно разместить.

Конечно, были проведены консультации со специалистами о возможности постройки дома на этом фундаменте, сколько этажей можно возводить, как заводить коммуникации и решались прочие технические моменты.

Моей задачей было предложить несколько вариантов планировочных решений с расстановкой мебели, которые можно было реализовать в данном случае.

Проект разработан для семьи из четырех человек, в том числе два однополых ребёнка школьного и дошкольного возраста. Что было предложено заказчику.

Фото из личного архива. Первый вариант плана с расстановкой мебели для существующего фундамента.
Фото из личного архива. Первый вариант плана с расстановкой мебели для существующего фундамента.

Фото из личного архива. Второй вариант плана с расстановкой мебели для существующего фундамента.
Фото из личного архива. Второй вариант плана с расстановкой мебели для существующего фундамента.

Фото из личного архива. Третий вариант плана с расстановкой мебели для существующего фундамента.
Фото из личного архива. Третий вариант плана с расстановкой мебели для существующего фундамента.

Фото из личного архива. Четвертый вариант плана с расстановкой мебели для существующего фундамента.
Фото из личного архива. Четвертый вариант плана с расстановкой мебели для существующего фундамента.

В итоге заказчик выбрал вот этот вариант планировки с расстановкой мебели

Фото из личного архива. Итоговый вариант плана с расстановкой мебели для существующего фундамента.
Фото из личного архива. Итоговый вариант плана с расстановкой мебели для существующего фундамента.

По нему я создала монтажный план.

Фото из личного архива. Монтажный план.
Фото из личного архива. Монтажный план.

Если вы все еще сомневаетесь, что план с расстановкой мебели — это бесполезная замануха от дизайнера. Типа: «Что мы сами мебель не расставим», то вот пример практического применения этой услуге, которая помогла построить полноценный дом на уже готовом фундаменте и сэкономить не маленькую сумму.

На данный момент дом находится на стадии строительства, уже возведены стены и крыша.

Фото из личного архива. Возведение дома на готовом фундаменте.
Фото из личного архива. Возведение дома на готовом фундаменте.

Я уверенна, что на просторах интернета очень много различной информации о том, как правильно сделать планировку или расставить мебели, подобрать материалы для ремонта или спроектировать мебель самостоятельно.
Я верю, что многие справляются с этими задачами самостоятельно. Но я так же знаю, что при помощи организатора пространства и дизайнера вы сможете сделать свой дом более комфортным, уютным и эргономичным.

Если вам нужна бесплатная консультация по расстановке мебели, планировочным решениям, организации пространства и дизайну, вы можете записаться на моем сайте https://filtsdesign.ru/