Добавить в корзинуПозвонить
Найти в Дзене
Филдс

Статусная двушка 43 м², которая выглядит дорого: интерьер вне времени от RE Design Buro

RE Design Buro оформили двухкомнатную квартиру почти 43 м² в стиле неоклассика. Выбор эстетики, натуральные материалы и грамотные решения позволили создать статусный и благородный интерьер, который останется актуальным надолго. При этом функциональность не ушла на второй план – несмотря на компактную площадь, удалось оптимизировать пространство и сделать его удобным для жизни. Планировка В ходе перепланировки сформировали отдельную полноценную спальню, гостиную-столовую, небольшую изолированную кухню площадью всего 6 м2, совмещённый санузел и компактную прихожую, которая прилегает к общей зоне. Гостиная занимает центральное место и связывает все помещения, создавая эффект круговой планировки. Гостиная-столовая Общее пространство зонировали – сформировали гостиную и столовую. Условной границей служит спинка дивана, к ней вплотную придвинули обеденный стол. Основу палитры составляют нейтральные серые тона. На этом фоне выделяется акцентная стена более глубокого сложного оттенка. И она
Оглавление

RE Design Buro оформили двухкомнатную квартиру почти 43 м² в стиле неоклассика. Выбор эстетики, натуральные материалы и грамотные решения позволили создать статусный и благородный интерьер, который останется актуальным надолго. При этом функциональность не ушла на второй план – несмотря на компактную площадь, удалось оптимизировать пространство и сделать его удобным для жизни.

  • Общая площадь: 42,72 м²
  • Место: Москва
  • Тип дома: кирпичный
  • Год постройки: 1962
  • Количество комнат: 2
  • Дизайн: Ирина Насифуллина, RE Design Buro

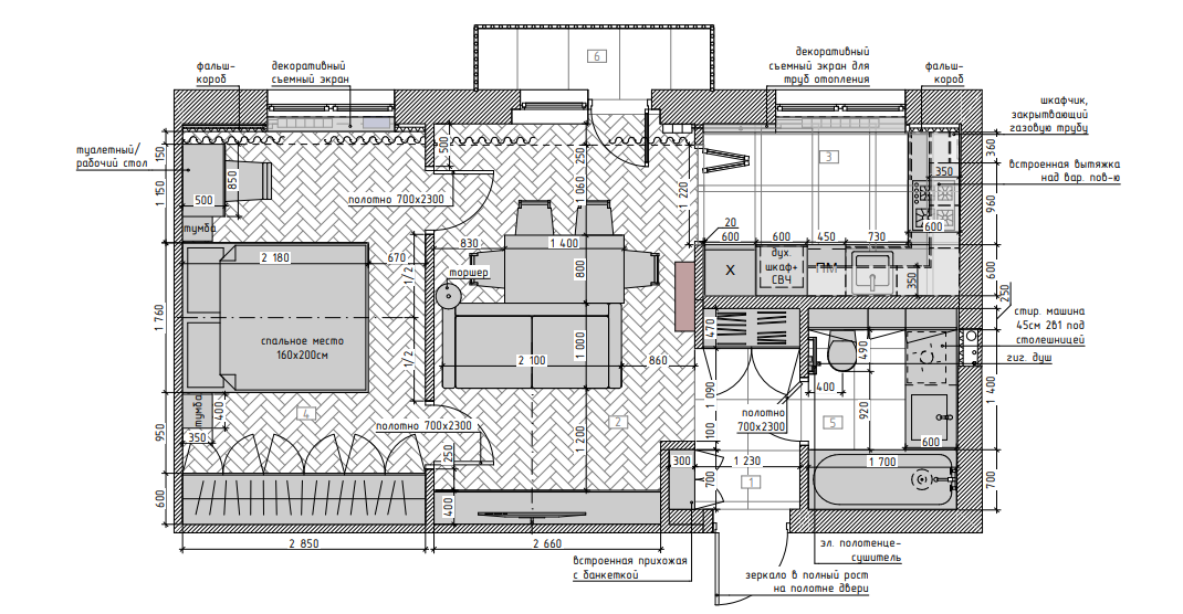
Планировка

В ходе перепланировки сформировали отдельную полноценную спальню, гостиную-столовую, небольшую изолированную кухню площадью всего 6 м2, совмещённый санузел и компактную прихожую, которая прилегает к общей зоне. Гостиная занимает центральное место и связывает все помещения, создавая эффект круговой планировки.

Гостиная-столовая

Общее пространство зонировали – сформировали гостиную и столовую. Условной границей служит спинка дивана, к ней вплотную придвинули обеденный стол.

Основу палитры составляют нейтральные серые тона. На этом фоне выделяется акцентная стена более глубокого сложного оттенка. И она выделяется не только цветом, но и фактурой: молдинги с лаконичным декором вносят динамику, классические мотивы, правильные линии. Они помогают замаскировать двери скрытого монтажа, ведущие в приватную зону.

Молдинги перекликаются с оформлением ТВ-зоны, где использовали 3D-панели. Поверх наложили плиту, на которой закрепили телевизор. Асимметричная композиция не перегружает гамму интерьера, но создает динамику за счет обилия фактур.

-4

Каменный рисунок обеденного стола вносит природные мотивы. Их развивают напольное покрытие и ТВ-тумба с деревянной текстурой, которые смягчают интерьер и делают его более уютным.

Кухня

Кухня прилегает к столовой, её отделили прозрачной складной перегородкой, пропускающей естественный свет. Г-образный гарнитур встроили в нишу – за счёт этого он выглядит компактным, но одновременно конструкция довольно вместительная и располагает рабочей поверхностью. Поскольку обеденную зону организовали в гостиной, осталось достаточно места для приготовления еды. Технику интегрировали в высокие шкафы-пеналы.

Фасады под дерево оживляют прохладную палитру. Плиты керамогранита на полу и на фартуке создают контраст, при этом их объединяет текстура камня.

Спальня

Атмосферу умиротворения в спальне создали за счет игры на полутонах. Оттенки серого создают разнообразие, но при этом не нарушают спокойствие. Молдинги и рельефные 3D-панели в цвет стенам также оживляют интерьер, не перегружая его.

Кровать с уютным мягким изголовьем укомплектовали парными прикроватными тумбами и бра. Светильники добавляют графичности. С ними соотносится подвесной стол у окна, который может служить и рабочим местом, и туалетной зоной.

Вдоль стены напротив окна разместили просторные встроенные шкафы для вещей. Они сливаются с отделкой и тем самым поддерживают единство интерьера. Несмотря на габариты и большую вместительность, системы хранения словно растворяются в пространстве и не забирают на себя много внимания.

Санузел

В санузле господствует минимализм, каменные текстуры добавляют интерьеру благородства. Благодаря продуманным системам хранения в ванной нет визуального шума. Стиральную машину спрятали в шкаф под столешницу. Вдоль смежной стены выстроили инсталляцию с дополнительными секциями для гигиенических средств, полотенец и прочего.

Как шла работа над проектом

С момента подписания договора с заказчиком до завершения ремонта прошло лишь несколько месяцев. В среднем на всю реализацию у специалистов RE Design Buro обычно уходит всего четыре месяца. При этом они берут на себя весь объём работы и сопровождают на каждом этапе – от разработки дизайн-проекта до его воплощения в жизнь.

И важно, что каждый интерьер отличается уникальными деталями и соответствует духу заказчиков, ведь RE Design Buro может похвастаться не только скоростью работы, но и своим особым дизайнерским чутьём и творческим подходом. Об этом свидетельствуют отзывы клиентов студии, которые сегодня живут в интерьерах своей мечты.

Следите за другими проектами RE Design Buro на канале.