Добавить в корзинуПозвонить
Найти в Дзене
Soldatova Anna | interior designer

Дизайн проект квартиры с учетом размещения существующей мебели

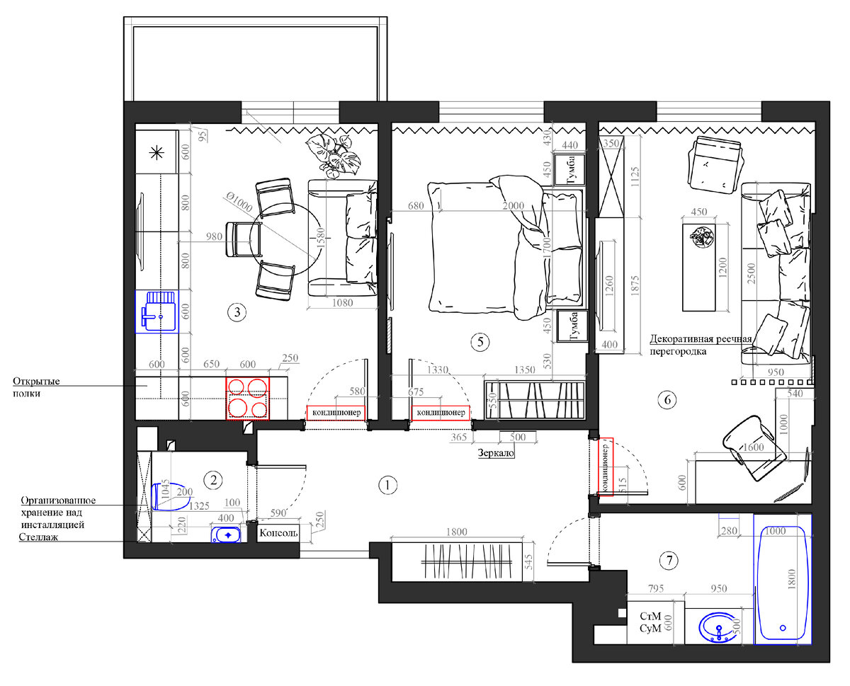
В этой статье рассмотрим дизайн-проект квартиры, с учетом внедрения существующей мебели. Общая площадь квартиры 55 кв.м., без лоджии. Исходные данные объекта: При разработке планировочного решения, главной задачей было учесть существующую мебель ее было немного, но это всегда усложняет данную задачу !! Делать перепланировку квартиры по требованию заказчика не нужно было. В итоге утвердили один из вариантов расстановки мебели и оборудования: Рассмотрим каждое помещение по очереди. 1. Прихожая Тут была задача разместить шкаф, небольшую консоль и найти место зеркалу, которое будет переезжать вместе с хозяевами. Вот что у нас получилось. По цветовой гамме в основном хотелось светлых оттенков и много дерева. 2. Кухня Из требований по отношению к кухне было несколько задач: Исходя из этого у нас получилось довольно не плохо и очень уютно. Мы Соблюда
Дизайн проект квартиры с учетом размещения существующей мебели
ли все рекомендации по эргономике к расположению кухонного гарнитура. Это в

В этой статье рассмотрим дизайн-проект квартиры, с учетом внедрения существующей мебели. Общая площадь квартиры 55 кв.м., без лоджии.

Исходные данные объекта:

  • Кухня
  • 2 комнаты
  • 2 санузла
  • Коридор
  • Лоджия

При разработке планировочного решения, главной задачей было учесть существующую мебель ее было немного, но это всегда усложняет данную задачу !!

Делать перепланировку квартиры по требованию заказчика не нужно было.

В итоге утвердили один из вариантов расстановки мебели и оборудования:

-2

Рассмотрим каждое помещение по очереди.

1. Прихожая

Тут была задача разместить шкаф, небольшую консоль и найти место зеркалу, которое будет переезжать вместе с хозяевами.

Вот что у нас получилось.

-3

-4
-5
-6
-7

По цветовой гамме в основном хотелось светлых оттенков и много дерева.

2. Кухня

-8

Из требований по отношению к кухне было несколько задач:

  • Кухня не в потолок и без верхних шкафов
  • Наличие телевизора
  • Размещение существующего стола, стульев, холодильника
  • Небольшой диван

Исходя из этого у нас получилось довольно не плохо и очень уютно. Мы Соблюда
Дизайн проект квартиры с учетом размещения существующей мебели
ли все рекомендации по эргономике к расположению кухонного гарнитура.

Это в первую очередь:

Правило треугольника: зона активности на кухне состоит из трёх главных элементов: холодильник, плита и мойка.
Ширина проходов: чтобы обеспечить свободное движение между кухонной мебелью, ширина проходов должна быть примерно от 0,8 до 1,2 м.

-9
-10
-11
-12
-13
-14

3. Спальня

-15

В спальне у нас разместились:

  • Кровать
  • Шкаф
  • Телевизор
  • Прикроватные тумбы
-16
-17
-18
-19
-20

В спальню у нас переехала кровать и телевизор.
В квартире у нас были настенные перепады, мы решили не зашивать их, а наоборот обыграть за счет скрытых подсветок.

4. Гостиная-Кабинет

-21

Требованием заказчика к данному помещению было:

  • Организовать рабочее место(удаленная работа). С учетом имеющегося компьютерного кресла.
  • Диван
  • Кресло (существующее)
  • Журнальный столик (существующий)
  • Тв зона
-22
-23
-24

Декоративная реечная перегородка служить разделением зон.

-25
-26
-27

Цветовая гамма также светлые оттенки и наличие дерева в интерьере.

5.Ванная и санузел

-28

В этих помещения не было каких-то особых требований,кроме цветового решения : светло, дерево, зеленый цвет. И удобного расположения всех коммуникаций.

-29
-30
-31
-32
-33

Перегородку в ванной сделали с подвижной дверцей.

-34
-35

На мой взгляд, получилась квартира с очень приятной цветовой гаммой, не кричащая и вместе с тем Уютная и функциональная !

Также можно посмотреть другие мои статьи:
Светлая квартира 45 кв.м
Дом в современной интерпретации "лофта"
Бюджетный дизайн 2х комнатной квартиры
Дизайн проект квартиры в светлых тонах с яркими акцентами
Больше моих работ в @ soldatova.an.na.design
По вопросам сотрудничества писать в Tелеграм: @Luna_studio