Добавить в корзинуПозвонить
Найти в Дзене

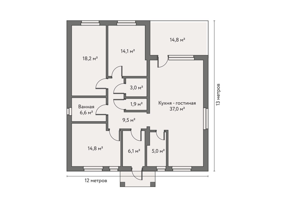
🏡 Дом общей площадью 131 м² в живописном месте ждёт именно Вас!

В нем есть все, что нужно для комфортного проживания: просторная кухня-гостиная 37 м², три уютные спальни, два санузла и просторная терраса 14,8 м², где можно проводить время с семьей и друзьями. 🏠 На участке можно разместить, например, мангал, ухоженный сад и даже бассейн. А вид из окна на Татарский лес и пение птиц делают его идеальным местом для жизни. 🏠 Дом подходит под любые виды ипотечного кредитования, в том числе под семейную ипотеку и ипотеку с господдержкой. ⠀ 🌹 Выбирайте «Долину Роз» — качество жизни, красоту и комфорт. Сделайте шаг к своей мечте уже сегодня! 🌹 ⠀ Узнавайте детали по телефону отдела продаж: 📞 +7 (8652) 61-11-16.

В нем есть все, что нужно для комфортного проживания: просторная кухня-гостиная 37 м², три уютные спальни, два санузла и просторная терраса 14,8 м², где можно проводить время с семьей и друзьями.

🏠 На участке можно разместить, например, мангал, ухоженный сад и даже бассейн. А вид из окна на Татарский лес и пение птиц делают его идеальным местом для жизни.

🏠 Дом подходит под любые виды ипотечного кредитования, в том числе под семейную ипотеку и ипотеку с господдержкой.

🌹 Выбирайте «Долину Роз» — качество жизни, красоту и комфорт. Сделайте шаг к своей мечте уже сегодня! 🌹

Узнавайте детали по телефону отдела продаж: 📞 +7 (8652) 61-11-16.