Добавить в корзинуПозвонить
Найти в Дзене

Как обойти "мокрый угол" в кухне. Дизайн проект от KLV.

Имеем задачу: вписать в конструктив корпусной кухни системы разводки труб, чтобы их не было видно. Проблема заключается в том, что трубы проходят в углу помещения (кухни), но, ставить мойку в угол, в данной ситуации, не выглядит практичным. Вот так застройщик рекомендует разместить мебель в кухни, при такой планировке квартиры. Задача на первый взгляд не такая уж сложная, пока не приступаешь к ее реализации. Основная проблема заключается в том, что мы решили вынести мойку в правую часть кухонного гарнитура, при этом, плита должна быть размещена слева. Поработав с нашим мебельщиком, мы решили данную задачу, разместив мокрый угол в нише, которая скрывается справа от блока с духовкой микроволновой печью. В результате данного расположения появилась дополнительная ниша для хранения всяких мелочей необходимых для уборки. Доступ к системам водоотведения осуществляется через люк, который встроен фартук. Ну а дальше уже, что называется, дело вкуса. Я предлагаю несколько вариантов на выбор офо

Имеем задачу: вписать в конструктив корпусной кухни системы разводки труб, чтобы их не было видно.

Подвод воды и трубы проходят в правом углу кухни
Подвод воды и трубы проходят в правом углу кухни

Проблема заключается в том, что трубы проходят в углу помещения (кухни), но, ставить мойку в угол, в данной ситуации, не выглядит практичным.

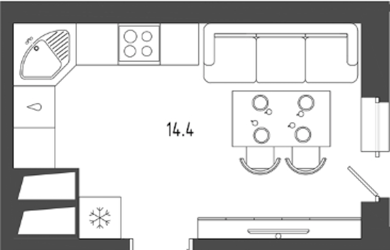
Это стандартная планировка кухни от застройщика.
Это стандартная планировка кухни от застройщика.

Вот так застройщик рекомендует разместить мебель в кухни, при такой планировке квартиры.

Задача на первый взгляд не такая уж сложная, пока не приступаешь к ее реализации. Основная проблема заключается в том, что мы решили вынести мойку в правую часть кухонного гарнитура, при этом, плита должна быть размещена слева.

А вот такой вариант расположения предложили заказчику в нашей студии дизайна от KLV.
А вот такой вариант расположения предложили заказчику в нашей студии дизайна от KLV.

Поработав с нашим мебельщиком, мы решили данную задачу, разместив мокрый угол в нише, которая скрывается справа от блока с духовкой микроволновой печью. В результате данного расположения появилась дополнительная ниша для хранения всяких мелочей необходимых для уборки. Доступ к системам водоотведения осуществляется через люк, который встроен фартук.

Дизайн кухни с открытой правой частью.
Дизайн кухни с открытой правой частью.
Расположение мебели при данном варианте размещения.
Расположение мебели при данном варианте размещения.

Ну а дальше уже, что называется, дело вкуса. Я предлагаю несколько вариантов на выбор оформления зоны кухни.

Кухня в цвете "антрацит" от студии функционального дизайна KLV.
Кухня в цвете "антрацит" от студии функционального дизайна KLV.
Кухня в синих оттенках. На любителя.
Кухня в синих оттенках. На любителя.
Кухня в кофейных тонах.
Кухня в кофейных тонах.
Дизайн кухни в сочетании кофейного, белого и дерева.
Дизайн кухни в сочетании кофейного, белого и дерева.

В итоге, мы остановились на варианте светлого оформления кухни.

Ниже, на фото, представлен уже финальный результат, реальное фото кухни. Проект реализован нашей командой "функциональный дизайн от KLV" в Санкт-Петербурге.

Функциональный дизайн кухни от KLV Санкт-Петербург.
Функциональный дизайн кухни от KLV Санкт-Петербург.

Будут вопросы - пишите в комментариях, обязательно отвечу. Также буду рад узнать ваше мнение, по данному проекту.