Найти в Дзене
Печатный журнал Redesign

Правила нужны, чтобы их нарушать!

Отказаться от гостиной, выкрасить потолок в черный цвет, соединить несколько ярких оттенков в одном помещении — смелось или чудачество? Ответ зависит от результата! Этой трехкомнатной квартире нарушение правил пошло только на пользу. Необычный проект реализовали дизайнер интерьера Кристина Мецкан и строительная компания «Элитика». Рассказывает прораб строительной компании «Элитика» Чтобы результат радовал долго, грамотного проекта недостаточно: львиная доля ответственности лежит на строителях. Компания «Элитика» всегда подходит к работе основательно. На этом объекте мастера полностью заменили электропроводку, трубы отопления, водоснабжения и канализации, перенесли электрощит, добавили систему кондиционирования в каждую комнату. Чтобы спрятать трубы, в санузлах нарастили стены. Для декоративной подсветки в спальне, на кухне и шкафах провели слаботочные системы. А еще ни один современный проект не обходится без систем очистки воды и защиты от протечек. Жилье вторичное, и в несущих стенах
Оглавление

Отказаться от гостиной, выкрасить потолок в черный цвет, соединить несколько ярких оттенков в одном помещении — смелось или чудачество? Ответ зависит от результата!

- YouTube

Этой трехкомнатной квартире нарушение правил пошло только на пользу. Необычный проект реализовали дизайнер интерьера Кристина Мецкан и строительная компания «Элитика».

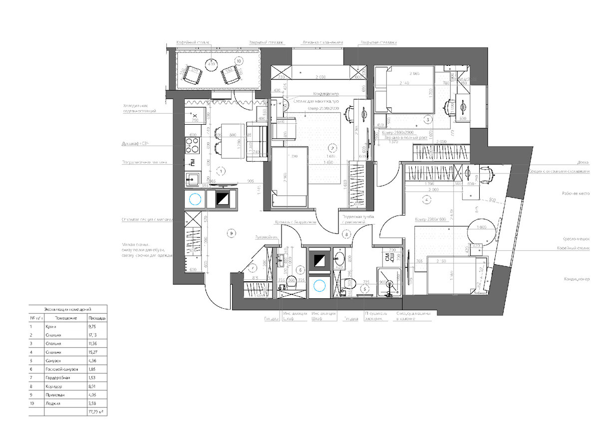
  • Квартира 78,36 м2 в монолитном доме. Москва.
    3 комнаты. 2 санузла.
    Заказчик: семья с двумя взрослыми детьми (дочка 16 лет, сын 21 год) и собакой.
  • Дизайн: Кристина Мецкан, «Metskan design». e-mail: metskan.design@gmail.com | web: metskan-design.com | моб. +7 (925) 832-68-20.
    Стилист: Виктория Звонилина.
    Фотограф: Евгений Гнесин.

Рассказывает прораб строительной компании «Элитика»

Чтобы результат радовал долго, грамотного проекта недостаточно: львиная доля ответственности лежит на строителях. Компания «Элитика» всегда подходит к работе основательно. На этом объекте мастера полностью заменили электропроводку, трубы отопления, водоснабжения и канализации, перенесли электрощит, добавили систему кондиционирования в каждую комнату. Чтобы спрятать трубы, в санузлах нарастили стены. Для декоративной подсветки в спальне, на кухне и шкафах провели слаботочные системы. А еще ни один современный проект не обходится без систем очистки воды и защиты от протечек.

Было
Было
Стало
Стало
Было
Было
Стало
Стало
Было
Было
Стало
Стало
Было
Было
Стало
Стало

Жилье вторичное, и в несущих стенах были трещины. Это плохая новость — ведь со временем они могли перекочевать и на отделку. Чтобы этого не случилось, строители усилили их и обшили гипсокартоном.

Один из главных принципов компании «Элитика» — ремонт должен быть долговечным и качественным. Поэтому мастера использовали продукцию проверенных немецких брендов TECE и FAR. Черновую электрику тоже выбрали немецкую — АВВ.

Было
Было
Стало
Стало
Было
Было
Стало
Стало

Понравилась мебель или приглянулся декор? Смотри Бренды и ТМ в этом интерьере!

Прихожая. Плитка: Топ Рус | SPC каменно-полимерная плитка: Alpine Floor | Шкаф: МебельВам | Входная дверь: Волховец | Межкомнатные двери и перегородка: Union | Люстра: Freya.
Кухня. Мебель: МебельВам, divan.ru.
Гардеробная. Перегородка: Union.
Ванная комната. Сантехника: Grohe, Hansgrohe.

Было
Было
Стало
Стало

Рассказывает дизайнер Кристина Мецкан

Когда под одной крышей живет четыре человека и собака, каждый мечтает о своем пространстве. Чтобы собираться вместе, гостиная необязательна: зону для общения удалось организовать на небольшой кухне в 10 м2. Благодаря этому перепланировка не понадобилась. А каждый член семьи получил собственную «вотчину».

Глава семьи и его жена провели большую часть жизни на Сахалине среди нетронутой природы. Чтобы передать это настроение, дизайнер использовала обои с текстурой бетона, элементы дерева на мебельных фасадах и серый искусственный камень в изголовье кровати.

Было
Было
Стало
Стало
Текстуру мы выбрали неслучайно — этот камень визуально очень похож на скалы водопадов, которых много на Сахалине.
Было
Было
Стало
Стало
Было
Было
Стало
Стало

Прохладные оттенки серого повторяются и в спальне сына со смелым черным потолком, брутальной стеной из искусственного камня, картой мира и светильником-луной.

-23
-24
Было
Было
Стало
Стало

А в комнате дочери акценты смещаются с отделки на мебель. Покрытие стен максимально нейтральное — матовая белая краска с эффектом бархата. На этом строгом фоне особенно выразительно смотрится фактура кресла и пуфа букле, ковер с высоким ворсом, плетеный выдвижной столик для макияжа, велюровая кровать с балдахином.

-27
-28
-29
Было
Было
Стало
Стало
Было
Было
Стало
Стало
Было
Было
Стало
Стало

Сердце интерьера — небольшая, но функциональная кухня.

Было
Было
Стало
Стало
Нам удалось найти место даже для винного шкафчика над холодильником.
Было
Было
Стало
Стало
Было
Было
Стало
Стало
Было
Было
Стало
Стало

Эксперименты со сложными текстурами продолжились и в других комнатах. Например, в душевой кабине положен мягкий пол. Под ногами он ощущается, как теплый, матовый текстиль. Такой неординарный отделочный материал производит испанская компания SoftTray.

-44
-45

Tagged #3-комнатная квартира #50-80м² #AlpineFloor #Freya #Grohe #Hansgrohe #Metskandesign #UNION #ВикторияЗвонилина #Волховец #ЕвгенийГнесин #Квартира #КристинаМецкан #МебельВам #ТопРус #Элитика

-46
-47

Хотите вдохновиться или показать миру собственный проект? Добро пожаловать на сайт redesign-home.ru и на страницы красочного российского журнала о дизайне и архитектуре Redesign!