Найти в Дзене

Дом в котором продумано все: Проект А24

Проект А24 представляет собой современный одноэтажный дом, идеально подходящий для небольшой семьи. Данный проект разработан с учетом всех современных потребностей жителей, предлагая уютное и продуманное пространство для жизни. Внешний вид и отделка Отделка дома — светлая штукатурка в сочетании с планкеном, это придает зданию уютный и привлекательный вид. Крыша дома покрыта металлочерепицей, которая защищает от непогоды и обладает высокой устойчивостью к износу. Большие окна и стеклянные двери на террасу обеспечивают максимальное проникновение естественного света внутрь дома, создавая светлую и просторную атмосферу. Планировка Основные помещения 1) Гостиная (31,17 м²) Просторная и светлая гостиная с обеденной зоной, объединенная с кухней, создает открытое пространство, идеальное для семейных мероприятий и встреч с друзьями. В гостиной предусмотрен выход на террасу, что обеспечивает дополнительное пространство для отдыха и развлекательных мероприятий. 2) Кухня (13,66 м²) Удобная и функ
Оглавление

Проект А24 представляет собой современный одноэтажный дом, идеально подходящий для небольшой семьи. Данный проект разработан с учетом всех современных потребностей жителей, предлагая уютное и продуманное пространство для жизни.

Внешний вид и отделка

Отделка дома — светлая штукатурка в сочетании с планкеном, это придает зданию уютный и привлекательный вид.

Крыша дома покрыта металлочерепицей, которая защищает от непогоды и обладает высокой устойчивостью к износу. Большие окна и стеклянные двери на террасу обеспечивают максимальное проникновение естественного света внутрь дома, создавая светлую и просторную атмосферу.

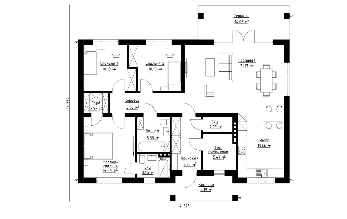
Планировка

-2

Основные помещения

1) Гостиная (31,17 м²) Просторная и светлая гостиная с обеденной зоной, объединенная с кухней, создает открытое пространство, идеальное для семейных мероприятий и встреч с друзьями. В гостиной предусмотрен выход на террасу, что обеспечивает дополнительное пространство для отдыха и развлекательных мероприятий.

2) Кухня (13,66 м²) Удобная и функциональная кухня расположена рядом с гостиной. Просторная рабочая зона и достаточное количество мест для хранения делают процесс готовки максимально комфортным.

3) Спальные комнаты

  • Мастер-спальня (14,44 м²): Просторная и уютная, мастер-спальня оборудована собственной ванной комнатой (3,46 м²), что обеспечивает высокий уровень комфорта и приватности для владельцев дома.
  • Спальня 1 (10,19 м²) и Спальня 2 (10,10 м²): Эти комнаты идеально подходят для детей или гостей. Благодаря удачному расположению, каждая спальня обеспечивает спокойное и уединенное пространство для отдыха.

4) Ванные комнаты

  • Главная ванная комната (5,33 м²) оснащена ванной, душем, умывальником и туалетом. Просторная и удобная, она предоставляет достаточно места для всех членов семьи.
  • Дополнительный санузел (2,09 м²), расположенный рядом с гостиной, является удобным решением для гостей и жителей дома.

5) Техническое помещение (5,41 м²) Предназначено для хранения хозяйственных принадлежностей, инструментов и другого оборудования, что помогает поддерживать порядок в доме.

6) Гардеробная (2,32 м²) Компактное, но функциональное пространство для хранения.

Удобство и функциональность

Простор и свет

Благодаря большим окнам и открытой планировке, дом наполнен естественным светом. Гостиная с выходом на террасу позволяет наслаждаться видами на природу и проводить время на свежем воздухе, не покидая дома.

Функциональные зоны

Каждая зона дома продумана до мельчайших деталей, что делает проживание в нем максимально комфортным. Наличие нескольких спален позволяет удобно разместить всех членов семьи, а также обустроить рабочие зоны или комнаты для хобби, а мастер-спальня с личной ванной комнатой обеспечивает приватность и комфорт для владельцев.

Хранение и порядок

Техническое помещение и гардеробная в мастер-спальне позволяют хранить все необходимые вещи и оборудование, не загромождая жилое пространство. Это помогает поддерживать порядок в доме и делает его более удобным для повседневной жизни.

Заключение

-4

Проект А24 идеально подходит для тех, кто ищет современный, комфортный и функциональный дом. Удачное сочетание стиля и практичности, продуманная планировка и качественная отделка делают этот дом отличным выбором для семей с детьми, пар и людей, работающих из дома. Мы гарантируем высокое качество строительства и использование современных технологий, что обеспечит долгий срок службы дома и комфортное проживание в нем. Подписывайтесь!

Больше информации о проекте можно узнать по ссылке.