Добавить в корзинуПозвонить
Найти в Дзене
Новый Барнаул

1-комнатные квартиры в новостройках близко к центру Барнаула (лето 2024 года)

Изучаем планировку 1-комнатных квартир в ЖК "Реновация", "Шервуд" и "Адалин на Южном". Площадь полноценных 1-комнатных квартир в среднем составляет 35-45 м². В таких квартирах есть отдельная кухня и жилая комната. Это жилье подойдет для одиноких людей либо молодых семей без детей или с одним маленьким ребенком. Стоят такие небольшие квартиры, естественно, дешевле, чем 2-х и 3-комнатные варианты. В этой статье мы посмотрим, какие однокомнатные квартиры можно приобрести недалеко от центра Барнаула в 2024 году. Жилые комплексы, которые мы рассмотрим, стоят не в центральной части города и не в районе новостроек. Они располагаются как бы вокруг центра. На автомобиле из таких районов до центра можно доехать за 10-15 минут. Итак... ЖК Реновация Однокомнатную квартиру близко к центру Барнаула можно купить, например, в ЖК «Реновация». Этот дом строится по адресу улица Западная 1-я, 55А, недалеко от пересечения проспекта Ленина и улицы Эмилии Алексеевой. В новостройке можно купить полноценную од
Оглавление

Изучаем планировку 1-комнатных квартир в ЖК "Реновация", "Шервуд" и "Адалин на Южном".

Площадь полноценных 1-комнатных квартир в среднем составляет 35-45 м². В таких квартирах есть отдельная кухня и жилая комната. Это жилье подойдет для одиноких людей либо молодых семей без детей или с одним маленьким ребенком. Стоят такие небольшие квартиры, естественно, дешевле, чем 2-х и 3-комнатные варианты.

В этой статье мы посмотрим, какие однокомнатные квартиры можно приобрести недалеко от центра Барнаула в 2024 году. Жилые комплексы, которые мы рассмотрим, стоят не в центральной части города и не в районе новостроек. Они располагаются как бы вокруг центра. На автомобиле из таких районов до центра можно доехать за 10-15 минут. Итак...

ЖК Реновация

Однокомнатную квартиру близко к центру Барнаула можно купить, например, в ЖК «Реновация». Этот дом строится по адресу улица Западная 1-я, 55А, недалеко от пересечения проспекта Ленина и улицы Эмилии Алексеевой.

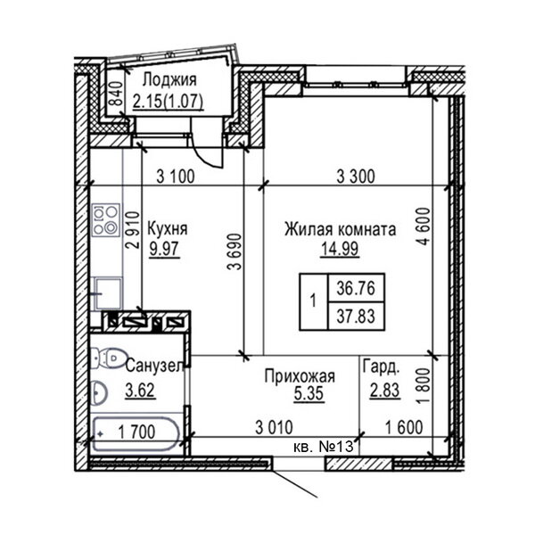
В новостройке можно купить полноценную однокомнатную квартиру площадью 36,76 м², без учета лоджии. Жилье покупателям сдается со свободной планировкой.

ЖК "Реновация. 1-комнатная квартира 37 м². Планировка с сайта застройщика
ЖК "Реновация. 1-комнатная квартира 37 м². Планировка с сайта застройщика

Строители выделят в квартире небольшой совмещенный санузел площадь 3,62 м². Остальное пространство можно будет организовать следующим образом. Перед входом на площади 5,3 «квадрата» можно обустроить просторную прихожую. На пространстве в 2,8 м² можно разместить отдельную гардеробную.

Кухня в такой квартире будет просторной — почти 10 «квадратов». Из нее идет выход на небольшую лоджию площадью 2,15 м². Под жилую комнату в этом случае останется 15 м². Впрочем, покупатели смогут расставить межкомнатные перегородки и по-другому.

Потолки в квартирах ЖК «Реновация» невысокие — 2,6 м. Жилье застройщик сдает с черновой отделкой. Стены квартиры будут оштукатурены, на полах — цементно-песчаная стяжка. В квартиру будет заведена холодная и горячая вода, смонтирована система отопления, установлены радиаторы, а также счетчики потребления холодной и горячей воды и электричества.

Высота нового дома  по современным меркам небольшая — всего 8 этажей. Здание строится по карскасно-монолитной технологии. Несущие колонны и перекрытия строители соорудят из железобетона. Стены дома специалисты выложат из кирпича.

ЖК "Реновация. Рекламное изображение
ЖК "Реновация. Рекламное изображение

60% квартир в ЖК «Реновация» — это 1-комнатное жилье площадью от 37 до 48 м². На каждой площадке будет располагаться по 5 квартир.

Под жилым комплексом застройщик сдаст подземную парковку на 34 машино-места. Доехать на автомобиле от новостройки до Нового рынка можно за 10 минут.

-4

ЖК возводит ООО Специализированный застройщик «МеридианСтрой». Дома в эксплуатацию планируется сдать в 3 квартале 2026 года.

ЖК «Шервуд»

Большой выбор однокомнатных квартир предлагает покупателям застройщик ЖК «Шервуд». Этот жилой комплекс располагается по адресу улица, Нагорная 6-я, 15, в лесном массиве в районе Краевой клинической больницы.

В ЖК «Шервуд» можно, например, приобрести большую 1-комнатную квартиру площадью 49 м² (если не учитывать лоджию). Этот вариант сдается со свободной планировкой.

ЖК "Шервуд". 1-комнатная квартира 51 м². Планировка с сайта застройщика
ЖК "Шервуд". 1-комнатная квартира 51 м². Планировка с сайта застройщика

В квартире строители выделят стенами совмещенный санузел площадью 5,3 «квадрата». Остальное пространство застройщик предлагает распределить так. Перед входом на 12 м² можно разместить огромную прихожую. Также в квартире будет более чем просторная кухня — целых 13 «квадратов». Из кухни можно будет попасть на лоджию. Ее площадь — 3,9 м². Плюс в квартире есть полноценная жилая комната вместимостью 18,2 м².

ЖК "Шервуд". 1-комнатная квартира 51 м². 3D-визуализация
ЖК "Шервуд". 1-комнатная квартира 51 м². 3D-визуализация

Такие квартиры застройщик предлагает в 22-этажной одноподъездной башне по адресу Нагорная 6-я улица, 15г/12. Этот дом строится по каркасно-монолитной технологии, хотя остальные корпусы ЖК «Шервуд» будут возведены из железобетонных панелей. Всего на территории ЖК будет построено 7 корпусов.

ЖК Шервуд. Ул Нагорная 6-я, 15Г/12. Рекламное изображение
ЖК Шервуд. Ул Нагорная 6-я, 15Г/12. Рекламное изображение

Высота потолков в этой высотке приличная — 2,87 м. На каждом этаже в среднем будет по 7 квартир.

Под домом по адресу Нагорная 6-я улица, 15г/12 застройщик обустроит подземную автопарковку на 74 машино-места. Доехать на автомобиле от этого дома до площади Спартака можно за 10 минут.

ЖК "Шервуд" на карте
ЖК "Шервуд" на карте

ЖК возводит группа компаний «Союз» (Специализированный застройщик  «Шотландия»). Дома в эксплуатацию планируется сдать в 1 квартале 2026 года.

ЖК «Адалин на Южном»

Поселок Южный традиционно относят к удаленным районам Барнаула. Но мы его здесь рассматриваем в категории «близко к центру». На автомобиле с Южного до площади Спартака по Змеиногорскому тракту можно доехать за 15 минут. Это гораздо быстрее, чем из спального района новостроек до железнодорожного вокзала.

Однокомнатную квартиру здесь можно приобрести в ЖК «Адалин на Южном», который строится на въезде в поселок. Площадь одного из вариантов полноценных однушек — 44,5 м², без учета лоджии.

ЖК "Адалин на Южном". 1-комнатная квартира 49 м². Планировка с сайта застройщика
ЖК "Адалин на Южном". 1-комнатная квартира 49 м². Планировка с сайта застройщика

В этой квартире есть просторная прихожая на 6 м², а также небольшой коридор перед санузлом (на 2,9 «квадрата»). Санузел в жилье совмещенный. По площади он более чем компактный — всего 3,9 м².

Зато кухня в этой квартире огромная — 15,4 м². В ней вполне можно обустроить кухню-гостиную. Площадь жилой комнаты в этой однушке — 16,3 м². Плюс в жилье есть большая лоджия на 7,6 «квадрата». Она тянется через всю квартиру.

Такие квартиры будут сдаваться в 19-этажной одноподъездной башне по адресу Южный тракт, 15, корпус 9. Этот дом строится из железобетонных панелей.

Адалин на Южном. Южный тракт, 15, корпус 9. Рекламное изображение
Адалин на Южном. Южный тракт, 15, корпус 9. Рекламное изображение

Всего в составе ЖК будет сдано 11 корпусов. Часть из них возводится по каркасно-монолитной технологии, с выкладкой стен из силикатного кирпича или строительных блоков.

Высота потолков в панельной высотке стандартная — 2,67 м. На каждом этаже в среднем будет по 8 квартир. Жилые помещения сдаются покупателям с черновой отделкой. Полы квартир будут покрыты песчано-цементной стяжкой, стены отделаны штукатуркой. Строители выполнят горизонтальную разводку системы отопления, установят конвекторы.

На территории ЖК «Адалин на Южном» застройщик сдаст подземную парковку на 200 машино-мест, а также 3-уровневый наземных паркинг на 228 гаражных боксов.

ЖК "Адалин на Южном на карте"
ЖК "Адалин на Южном на карте"

ЖК возводит группа компаний «Адалин». Высотку по адресу Южный тракт, 15, корпус 9 планируется сдать во 2 квартале 2025 года. Это раньше, чем другие рассматриваемые нами объекты. Часть корпусов в этом ЖК уже сданы, идет выдача ключей покупателям. Самый последний корпус в жилом комплексе будет введен в эксплуатацию во 2 квартале 2026 года.

Однокомнатная квартира. Изображение из интернета
Однокомнатная квартира. Изображение из интернета