Найти в Дзене
ДОМ с умом

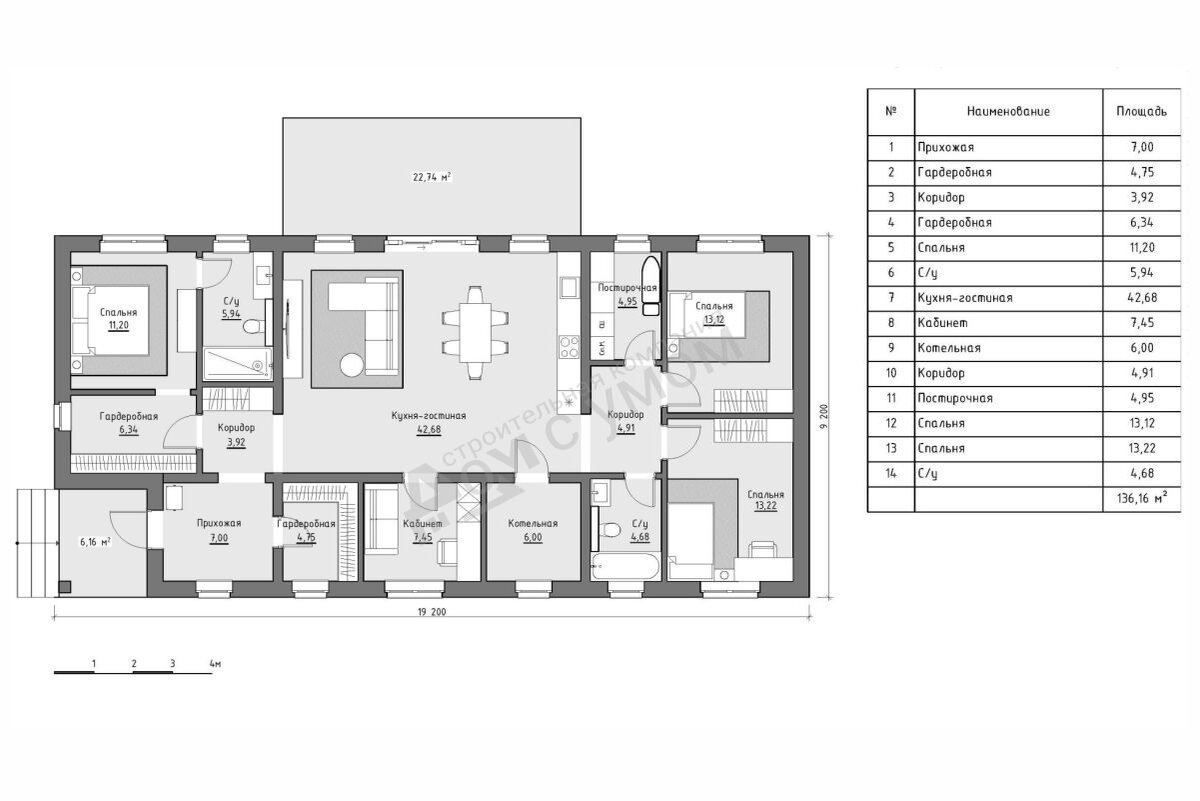
Проект "Виолетта" - современный дом с 3 спальнями для узкого участка

Благодаря небольшой ширине дома (всего 9,2 м) он легко поместится на узком участке. Этот проект отлично подойдет семье с двумя детьми. Мы продумали планировку, в которой грамотно разделили общественные и личные пространства, а также разнесли детские и родительскую спальни. Характеристики: Общая площадь: 136,1 кв.м
Жилая площадь: 136,1 кв.м
Габариты: 9,2 м х 19,2 м
Фундамент: забивные сваи и монолитный ростверк
Стены: газобетонный блок 300 мм, утеплитель - 100 мм
Отделка фасада: декоративная штукатурка и планкен
Перекрытия цоколя - полы по грунту, чердачные - по деревянным балкам Крыша - из гибкой черепицы по деревянной стропильной системе Планировка: Коттедж функционально поделен на две зоны – обеденную и спальную. Обеденная зона представлена просторным помещением кухни-гостиной с выходом на террасу. Спальная зона включает три комфортабельные спальни, одна из которых оснащена личным гардеробом и ванной. Также в доме есть все необходимые хозяйственные помещения: котельная, гарде
Оглавление

Благодаря небольшой ширине дома (всего 9,2 м) он легко поместится на узком участке. Этот проект отлично подойдет семье с двумя детьми. Мы продумали планировку, в которой грамотно разделили общественные и личные пространства, а также разнесли детские и родительскую спальни.

Характеристики:

Общая площадь: 136,1 кв.м
Жилая площадь: 136,1 кв.м
Габариты: 9,2 м х 19,2 м
Фундамент: забивные сваи и монолитный ростверк
Стены: газобетонный блок 300 мм, утеплитель - 100 мм
Отделка фасада: декоративная штукатурка и планкен
Перекрытия цоколя - полы по грунту, чердачные - по деревянным балкам Крыша - из гибкой черепицы по деревянной стропильной системе

Планировка:

Коттедж функционально поделен на две зоны – обеденную и спальную. Обеденная зона представлена просторным помещением кухни-гостиной с выходом на террасу. Спальная зона включает три комфортабельные спальни, одна из которых оснащена личным гардеробом и ванной. Также в доме есть все необходимые хозяйственные помещения: котельная, гардеробная и постирочная.

-2

▪️▪️▪️▪️▪️▪️▪️▪️▪️▪️▪️▪️▪️▪️▪️▪️▪️▪️▪️▪️▪️▪️▪️▪️▪️▪️▪️▪️▪️▪️▪️
📌Жилая площадь – 136.1 кв.м
📌Кухня-гостиная – 42,6 кв.м
📌Спальни – 3 шт.
📌Терраса – 22,7 кв.м