Найти в Дзене

Готовый проект бани с бассейном 92 м2

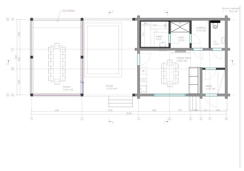
Сегодня расскажем о функциональной и уютной бане с бассейном площадью 92 м2.
Баня спроектирована в традиционном стиле с учетом использования натуральных материалов, а именно клееного бруса. Преимущества бани из клееного бруса: ✅ Брус не «ведёт» при сильном перепаде температур, и он не растрескивается. ✅ Ещё на стадии производства из него удаляется большинство смоляных мешочков, что в бане особенно актуально. ✅ Парилка в бане обшивается специальными изолирующими теплоотражающими материалами и никакого воздействия на стены, в том числе на клеёный брус, от температуры не происходит! Проект включает в себя следующие помещения для комфортного пребывания: · Вход в баню через тамбур-прихожую; · Просторную парную, где царит особая атмосфера, благодаря природному материалу и приятному аромату дерева; · Санузел с техническим помещением; · Комнату отдыха с выходом в зону с открытым бассейном, что позволит наслаждаться прохладой в жаркое время года. Кроме того, бассейн планируется ос

Сегодня расскажем о функциональной и уютной бане с бассейном площадью 92 м2.
Баня спроектирована в традиционном стиле с учетом использования натуральных материалов, а именно клееного бруса.

Преимущества бани из клееного бруса:

✅ Брус не «ведёт» при сильном перепаде температур, и он не растрескивается.

✅ Ещё на стадии производства из него удаляется большинство смоляных мешочков, что в бане особенно актуально.

✅ Парилка в бане обшивается специальными изолирующими теплоотражающими материалами и никакого воздействия на стены, в том числе на клеёный брус, от температуры не происходит!

Проект включает в себя следующие помещения для комфортного пребывания:

· Вход в баню через тамбур-прихожую;

· Просторную парную, где царит особая атмосфера, благодаря природному материалу и приятному аромату дерева;

· Санузел с техническим помещением;

· Комнату отдыха с выходом в зону с открытым бассейном, что позволит наслаждаться прохладой в жаркое время года. Кроме того, бассейн планируется оснастить системой фильтрации воды и подогрева, что обеспечит комфортное использование в любую погоду.

· И главная изюминка этой бани- застеклённая терраса с зоной барбекю. Здесь вся семья сможет наслаждаться приготовлением угощений на свежем воздухе, созерцая окружающую природу и общаясь друг с другом.

Всё это делает эту баню идеальным местом для отдыха и релаксации.

-2

Ещё одна изюминка в этом проекте- большие окна, они делают помещение более просторным и светлым, а также обеспечивают прекрасный вид на окружающую природу.

Отметим, что такой проект можно адаптировать под индивидуальные потребности и пожелания; возможно изменение планировки, добавление дополнительных функциональных элементов и материалов.

Понравилась баня? Заполните форму по ссылке, мы свяжемся с Вами и расскажем о проекте подробнее.