Добавить в корзинуПозвонить
Найти в Дзене

Бюджетный дом для современной семьи: Проект А20

Представляем вашему вниманию один из наших уникальных проектов из газобетона. Он сочетает в себе современные строительные технологии и элегантный дизайн, обеспечивая комфортное и уютное проживание для вашей семьи. Архитектура и дизайн Архитектурное решение выполнено в современном стиле, который сочетает в себе простоту и элегантность. Фасад дома выполнен из светлых штукатурки, которая гармонично контрастирует с темными акцентами из кирпича. Это придает зданию современный и стильный вид. Крыша дома покрыта темной металлочерепицей, которая не только обеспечивает долговечность, но и добавляет эстетическую привлекательность. Применение темных оттенков в отделке фасада подчеркивает геометрические линии здания, создавая интересный визуальный эффект. Планировка дома Планировка проекта А20 продумана, чтобы обеспечить максимальный комфорт и удобство для проживания. Основные помещения включают: Для кого подходит проект А20? Проект дома А20 идеально подходит для семей с детьми, молодых пар, а
Оглавление

Представляем вашему вниманию один из наших уникальных проектов из газобетона. Он сочетает в себе современные строительные технологии и элегантный дизайн, обеспечивая комфортное и уютное проживание для вашей семьи.

Архитектура и дизайн

Архитектурное решение выполнено в современном стиле, который сочетает в себе простоту и элегантность. Фасад дома выполнен из светлых штукатурки, которая гармонично контрастирует с темными акцентами из кирпича. Это придает зданию современный и стильный вид.

Крыша дома покрыта темной металлочерепицей, которая не только обеспечивает долговечность, но и добавляет эстетическую привлекательность. Применение темных оттенков в отделке фасада подчеркивает геометрические линии здания, создавая интересный визуальный эффект.

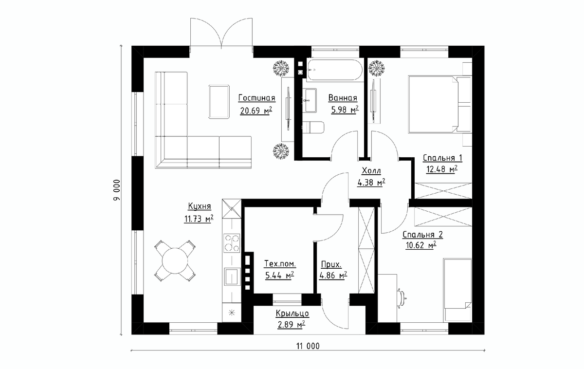
Планировка дома

-2

Планировка проекта А20 продумана, чтобы обеспечить максимальный комфорт и удобство для проживания. Основные помещения включают:

  • Гостиная (20.69 м²): Просторная и светлая, она идеально подходит для семейных вечеров и приема гостей. Здесь достаточно места для большой мягкой мебели и развлекательной зоны.
  • Кухня (11.73 м²): Функциональная и уютная кухня, где приятно готовить и проводить время за семейными обедами. Пространство организовано таким образом, чтобы все необходимые приборы и рабочие поверхности были под рукой.
  • Две спальни (12.48 м² и 10.62 м²): Комфортные и уютные комнаты, обеспечивающие отличный отдых. Просторные окна наполняют спальни естественным светом, создавая атмосферу уюта и спокойствия.
  • Ванная комната (5.98 м²): Современная ванная комната с продуманным дизайном, обеспечивающая все необходимое для ежедневного использования.
  • Холл (4.38 м²): Связывающее пространство, обеспечивающее удобный доступ ко всем основным помещениям дома.
  • Техническое помещение (5.44 м²): Практичное место для хранения бытовых принадлежностей и оборудования.
  • Прихожая (4.86 м²): Удобная зона для размещения верхней одежды и обуви, обеспечивающая порядок и чистоту в доме.
  • Крыльцо (2.89 м²): Входная зона, которая создает первое впечатление о доме.

Для кого подходит проект А20?

-3

Проект дома А20 идеально подходит для семей с детьми, молодых пар, а также пожилых людей, которые ценят комфорт и уют. Компактные размеры и простая форма делают этот дом выгодным вариантом для строительства, так как сокращаются затраты на материалы и работу.

Если вы ищете дом, который станет идеальным местом для вашей семьи, обратите внимание на проект А20. Этот дом подарит вам комфорт, уют и наслаждение каждым днем, проведенным в его стенах. Подписывайтесь!

Больше информации о проекте можно узнать по ссылке.