Добавить в корзинуПозвонить
Найти в Дзене

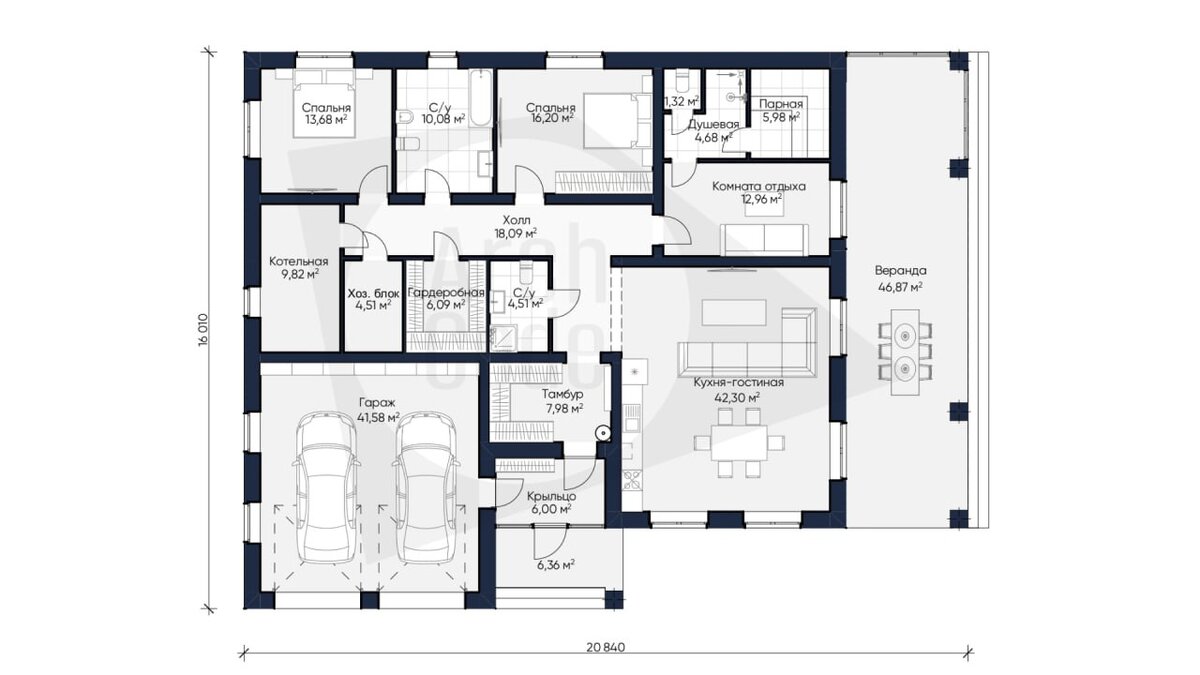
Проект дома «Прованс» с банным комплексом

Представляем проект дома «Прованс» площадью 205,78 м2 с собственным банным комплексом:
- 2 спальни
- 2 санузла
- просторная кухня-гостиная 42,30 м2
- веранда 46,87 м2
- габариты дома 16 м х 20 м
- гараж 41,58 м2
Ключевой особенностью этого проекта является наличие собственной зоны СПА, которая позволит вам в полной мере насладиться загородной жизнью.
Этот элегантный и уютный проект идеально подойдет для тех, кто ценит комфорт и стиль. Мы создали «Прованс» с особой тщательностью, чтобы каждый его владелец чувствовал себя исключительным и мог в полной мере наслаждаться жизнью. Как построить дом в Тюмени? Как построить дом в Москве? Готовые дома в Тюмени Готовые дома в Москве Земельные участки в Тюмени Задать вопрос в ТГ И подписывайтесь на наш канал, чтобы не пропустить новые интересные проекты. #проектдома #проектодноэтажногодома #построитьдом #купитьдом #одноэтажныйдом #лучшиеодноэтажныедома #дом #новыедома

Представляем проект дома «Прованс» площадью 205,78 м2 с собственным банным комплексом:

- 2 спальни
- 2 санузла
- просторная кухня-гостиная 42,30 м2
- веранда 46,87 м2
- габариты дома 16 м х 20 м
- гараж 41,58 м2

Ключевой особенностью этого проекта является наличие собственной зоны СПА, которая позволит вам в полной мере насладиться загородной жизнью.

Этот элегантный и уютный проект идеально подойдет для тех, кто ценит комфорт и стиль. Мы создали «Прованс» с особой тщательностью, чтобы каждый его владелец чувствовал себя исключительным и мог в полной мере наслаждаться жизнью.

-2

Понравился проект? Заказать проект или выбрать подобный можно по телефону: +79323212510. Звоните или пишите. Заявки принимаются по вотцап, телеграмм. Готовы рассчитать для вас смету!

Как построить дом в Тюмени?

Как построить дом в Москве?

Готовые дома в Тюмени

Готовые дома в Москве

Земельные участки в Тюмени

Задать вопрос в ТГ

И подписывайтесь на наш канал, чтобы не пропустить новые интересные проекты.

#проектдома #проектодноэтажногодома #построитьдом #купитьдом

#одноэтажныйдом #лучшиеодноэтажныедома #дом #новыедома