Найти в Дзене
Мечтаево

Новинка - каркасный проект Довиль!

Новинка в нашем каталоге каркасных домов - проект Довиль! Он выделяется на фоне других домов, в первую очередь, своим экстерьером. Чего только стоит ступенчатая кровля, которая придает проекту визуальный объем при довольно скромной площади! Наружная отделка Довиля выполнена из красивого скошенного планкена, на фоне которого ярко выделяются другие элементы - графитовый цоколь, панорамное остекление и сложная форма фасадов. Дом выполнен в современном стиле, поэтому он точно понравится активным семьям, которые ищут не просто жилье, а настоящее украшение для своего участка. И красив Довиль не только снаружи, но и внутри! Параметры проекта: Площадь - 122,2 кв.м. Габариты - 13*12 м. Большую часть Довиля занимает кухня-гостиная с панорамным выходом на террасу. Она опоясывает половину дома по периметру, увеличивая площадь комнаты практически в два раза. Также в проекте учтены три спальни, причем одна из них отсечена от общих зон с помощью тамбура. Отдельным бонусом в Довиле стала своя спа-зона
Новинка в нашем каталоге каркасных домов - проект Довиль!

Он выделяется на фоне других домов, в первую очередь, своим экстерьером. Чего только стоит ступенчатая кровля, которая придает проекту визуальный объем при довольно скромной площади! Наружная отделка Довиля выполнена из красивого скошенного планкена, на фоне которого ярко выделяются другие элементы - графитовый цоколь, панорамное остекление и сложная форма фасадов.

Дом выполнен в современном стиле, поэтому он точно понравится активным семьям, которые ищут не просто жилье, а настоящее украшение для своего участка.

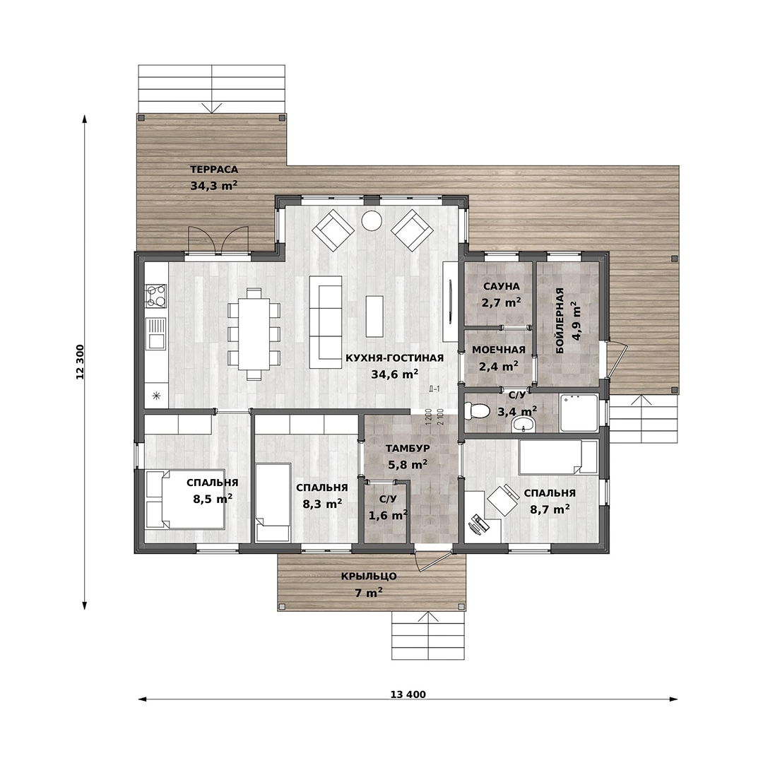
И красив Довиль не только снаружи, но и внутри!

Параметры проекта:

Площадь - 122,2 кв.м.

Габариты - 13*12 м.

Большую часть Довиля занимает кухня-гостиная с панорамным выходом на террасу. Она опоясывает половину дома по периметру, увеличивая площадь комнаты практически в два раза. Также в проекте учтены три спальни, причем одна из них отсечена от общих зон с помощью тамбура.

-2

Отдельным бонусом в Довиле стала своя спа-зона, где расположилась сауна, моечная и санузел. Такое решение исключает необходимость строительства бани на участке.

Стоимость проекта Довиль в комплектации на сайте - 4,8 млн. рублей. Подробнее о стоимости и других параметрах проекта вы можете узнать по контактам ниже:

Сайт: https://mechtaevo.ru

Почта: dom@mechtaevo.ru

Телефон: +7 495 660-83-34

WhatsApp: +7 906 768 54 13