Добавить в корзинуПозвонить
Найти в Дзене
Филдс

Сдержанный интерьер с темной спальней: как оформили евротрешку 85 м² для семьи с детьми

Дизайнер Татьяна Бакланова оформила евротрешку 85 м² для семьи с детьми. Интерьер старались сделать сдержанным и функциональным. Основную мебель выполнили на заказ по эскизам автора проекта. Планировка до и после В результате перепланировки объединили кухню с гостиной, а также добавили небольшую гардеробную при спальне. Для этого к комнате присоединили часть коридора. Кухня-гостиная Кухонный гарнитур расположили Г-образно. Холодильник выбрали не встроенный, но за счет обрамляющих систем хранения и цвета он не сильно выделяется на фоне шкафов. Чтобы разбавить строгость оформления кухни, ряд неглубоких навесных модулей дополнили дверцами под дерево. На фартук уложили керамогранит под мрамор. Обеденный стол на шесть персон придвинули почти вплотную к невысокой перегородке с гостиной. Сразу за ней поставили диван. Необычное решение применили при оформлении ТВ-зоны. Телевизор разместили на своеобразном панно из керамогранита, в которое интегрировали подвесную тумбу. Спальня Стены в спал
Оглавление

Дизайнер Татьяна Бакланова оформила евротрешку 85 м² для семьи с детьми. Интерьер старались сделать сдержанным и функциональным. Основную мебель выполнили на заказ по эскизам автора проекта.

  • Общая площадь: 85 м² (включая балкон)
  • Место: Тамбов
  • Тип дома: кирпичный
  • Количество комнат: евротрешка
  • Бюджет: 6 млн рублей
  • Кто здесь живет: семья с детьми
  • Фото: Михаил Косачев

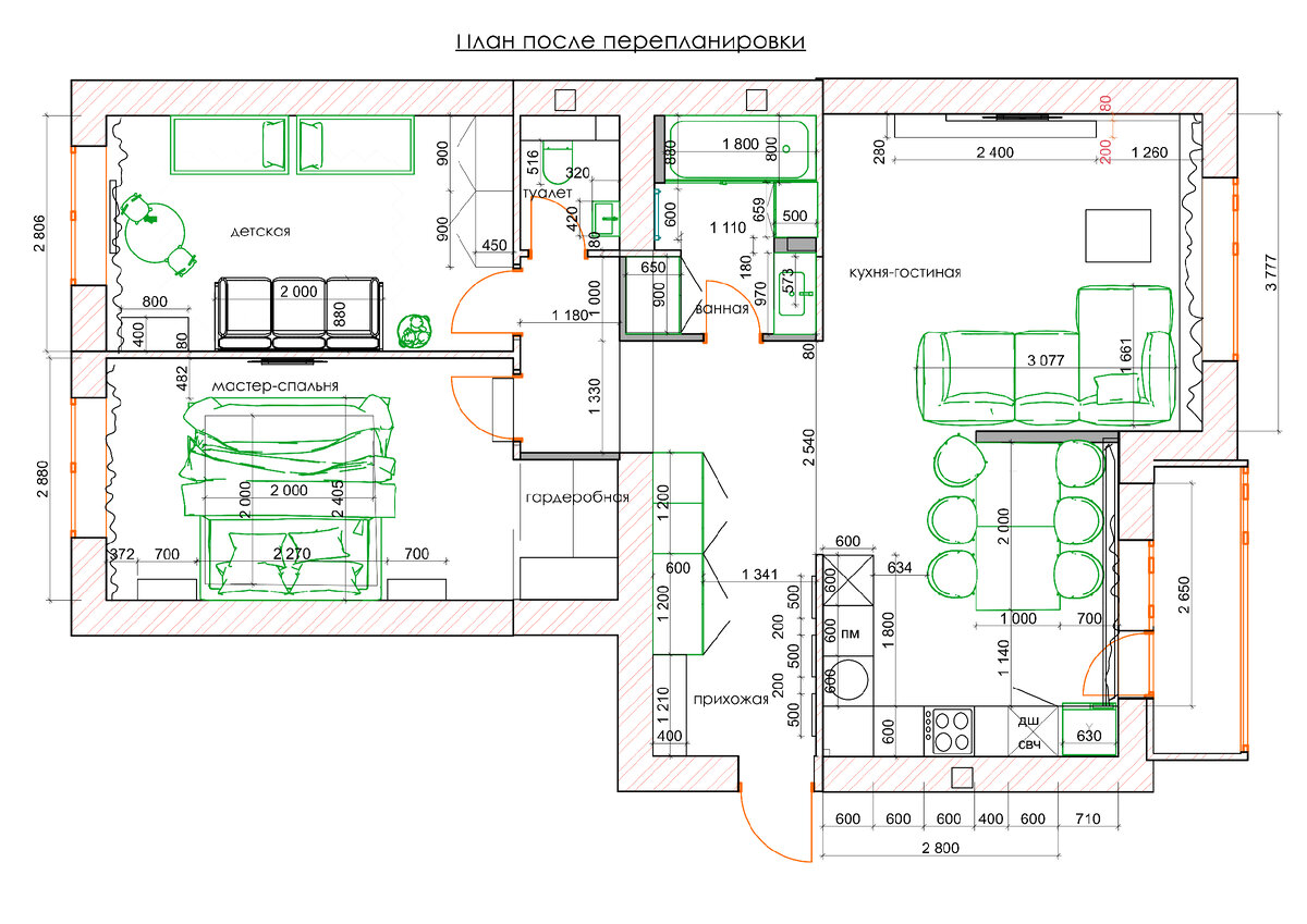
Планировка до и после

В результате перепланировки объединили кухню с гостиной, а также добавили небольшую гардеробную при спальне. Для этого к комнате присоединили часть коридора.

Кухня-гостиная

Кухонный гарнитур расположили Г-образно. Холодильник выбрали не встроенный, но за счет обрамляющих систем хранения и цвета он не сильно выделяется на фоне шкафов. Чтобы разбавить строгость оформления кухни, ряд неглубоких навесных модулей дополнили дверцами под дерево. На фартук уложили керамогранит под мрамор.

Обеденный стол на шесть персон придвинули почти вплотную к невысокой перегородке с гостиной. Сразу за ней поставили диван.

Необычное решение применили при оформлении ТВ-зоны. Телевизор разместили на своеобразном панно из керамогранита, в которое интегрировали подвесную тумбу.

-4

Спальня

Стены в спальне выкрасили в темный оттенок. В роли дополнительного декора выступают молдинги, из которых сформировали рамы для зеркала и светильников. Черные подвесные тумбы растворяются на фоне отделки, а светлое изголовье кровати в интерьере, наоборот, выступает в качестве акцента.

Детская

Комнату оформили в светлых тонах. Ненавязчиво разнообразить отделку помогли обои с цветными точками и градиентная стена. Поскольку наследники заказчиков еще маленькие, предусмотрели две детские кроватки и диван для удобства родителей. У окна расположили небольшой столик, за которым малыши могут заниматься творчеством. При входе нашлось место для установки вместительного гардероба.

Прихожая

В прихожей запланировали систему хранения с дверцами в тон отделке. Стену напротив декорировали зеркалами овальной формы. Благодаря им помещение не выглядит тесным, даже несмотря на темную отделку.

Санузел

Санузел в квартире раздельный. И ванную, и уборную оформили в единой стилистике. В отделке скомбинировали плитку с принтом терраццо и керамику под камень. И там, и там фасады мебели выполнили в кофейном оттенке. Позолоченные смесители отсылают к ар-деко.

Интересные мнения в комментариях приветствуются. Если материал понравился — ставь лайк!

🖤 Филдс — это не только блог на Дзене, но и магазин дизайнерской мебели. Заходите на сайт, чтобы увидеть предметы интерьера, которые дизайнеры выбирают для своих проектов.