Найти в Дзене

Каркасный дом “Оптима”: классика всегда в топе!

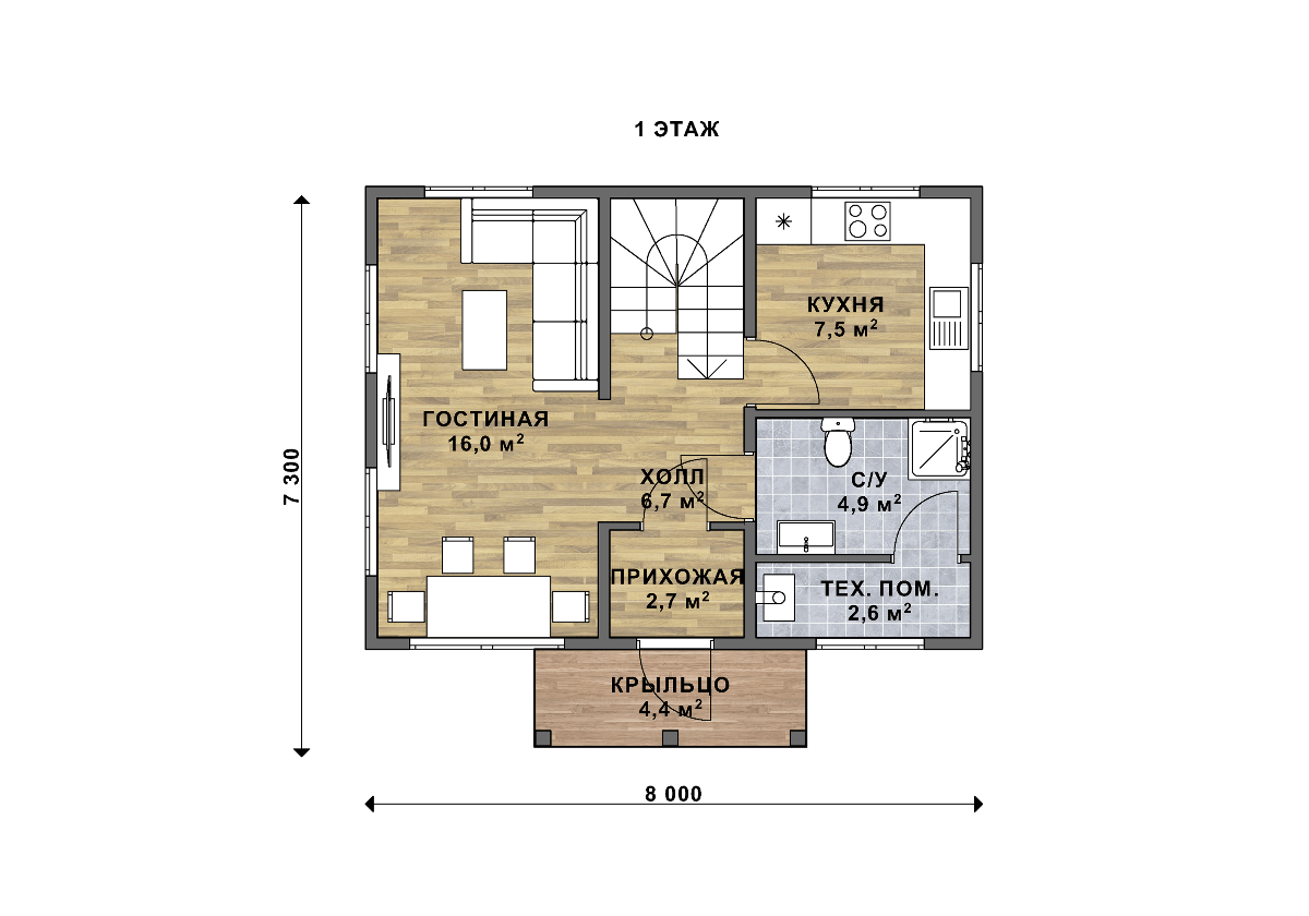
Разработка нового проекта — это не только творческий процесс, но и анализ запросов наших заказчиков. Мы всегда внимательно прислушиваемся к вашим пожеланиям, которые, естественно, меняются с течением времени и создают новые смыслы в архитектуре. Представляем вам новый проект — двухэтажный каркасный дом "Оптима". Немного готики, большая площадь остекления и элегантный балкон в стиле модерн. Дом площадью 83 квадратных метра продуман и спроектирован для комфортной загородной жизни. Давайте посмотрим подробнее... Планировочные решения При проектировании этого дома наши архитекторы ориентировались на семью до 5 человек, которым нужен уютный и компактный дом для постоянного проживания. Габаритные размеры дома 8 на 7,3 метра, что позволяет разместить его на участках разного размера и формы. При достаточно компактных размерах в доме все продумано: и зона отдыха, и личное пространство, и подсобные помещения. Первый этаж — общественная зона с просторной гостиной площадью 16 квадратных метров. В
Оглавление
Проект каркасного дома "Оптима" от компании "Мастер" в размерах 8х7,3м
Проект каркасного дома "Оптима" от компании "Мастер" в размерах 8х7,3м

Разработка нового проекта — это не только творческий процесс, но и анализ запросов наших заказчиков. Мы всегда внимательно прислушиваемся к вашим пожеланиям, которые, естественно, меняются с течением времени и создают новые смыслы в архитектуре. Представляем вам новый проект — двухэтажный каркасный дом "Оптима". Немного готики, большая площадь остекления и элегантный балкон в стиле модерн. Дом площадью 83 квадратных метра продуман и спроектирован для комфортной загородной жизни. Давайте посмотрим подробнее...

Планировочные решения

При проектировании этого дома наши архитекторы ориентировались на семью до 5 человек, которым нужен уютный и компактный дом для постоянного проживания. Габаритные размеры дома 8 на 7,3 метра, что позволяет разместить его на участках разного размера и формы.

При достаточно компактных размерах в доме все продумано: и зона отдыха, и личное пространство, и подсобные помещения.

Первый этаж — общественная зона с просторной гостиной площадью 16 квадратных метров. В этом проекте кухня выделена в отдельное помещение площадью 7,5 квадратных метров, где вы можете готовить, не беспокоясь о распространении запахов в другие комнаты. На первом этаже также расположено техническое помещение, доступ в которой осуществляется через санузел. Здесь можно разместить отопительное оборудование, стиральную машину и другие хозяйственные принадлежности.

Вход в дом, традиционно для средней полосы России, осуществляется через теплый тамбур, что позволяет избежать проникновения холодного воздуха и снизить расходы на отопление в зимний период.

Второй этаж — приватная зона, где помимо трех спален, предусмотрен еще общий балкончик. Здесь вы можете наслаждаться видом на сад или утренним кофе, встречая рассвет.

Наружная и внутренняя отделка

"Оптима" обладает особым очарованием, которое можно подчеркнуть разнообразными вариантами внешней отделки. Вы можете выбрать имитацию бруса заводского окрашивания, различные виды сайдинга или более престижный вариант — фасадную плитку Хауберк.

Внутреннее пространство дома оформляется преимущественно натуральными материалами, такими как вагонка или имитация бруса. Теперь мы готовы предложить вам деревянную отделку заводского окрашивания, которое производим в собственном цеху. Это создает атмосферу уюта, естественной и простоты, что очень нравится нашим клиентам.

Конструктивные решения

Дом по проекту “Оптима” доступен в одной из четырех комплектаций, но чаще всего клиенты выбирают варианты ПМЖ (о ней мы подробно рассказывали тут) и “Жилой дом по СНиП”. Все комплектации отличает качество используемых материалов, детальная проработка конструктивных решений и расчет нагрузок, и, конечно, строгое соответствие СП 31 105 2002:

— Весь конструктив дома выполняется из из пиломатериала камерной сушки: древесина тщательно отбирается, высушивается в специальных камерах, благодаря чему она не деформируется и не трескается в процессе сборки и эксплуатации. Сушильные камеры находятся на нашем производстве,что позволяет контролировать влажность материала с помощью профессионального оборудования. Кроме того, каждый деревянный элемент каркаса имеет специальную противопожарную фаску, которая повышает безопасность конструкции и препятствует быстрома распространению огня в случае возгорания.

Доска камерной сушки с противопожарной фаской на производстве компании "Мастер"
Доска камерной сушки с противопожарной фаской на производстве компании "Мастер"

— Огнебиозащита — обязательный элемент обработки древесины, используемой в конструктиве дома. Она надежно защищает дерево от возгорания и воздействия окружающей среды, препятствуя возникновению плесени, любых видов грибка, а также поражения насекомыми.

— Для утепления мы используем экологичные натуральные утеплители, имеющие высокие качественные показатели, такие как Rockwool или Knauf.

— Обязательный элемент в конструктиве каркасного дома — это так называемые строительные пленки, которые служат для гидроизоляции и обеспечения паропроницаемость конструкций, выпуская наружу испарения и препятствуя попаданию влаги.

— Инженерные коммуникации: самая важная для каркасного дома система — вытяжная вентиляция в необходимом для комфортного проживания объеме уже входит в комплектацию.

Доверьтесь нашему опыту и профессионализму, и процесс строительства станет для вас легким и приятным. Выбор отделочных материалов, изменения планировочных решений в соответствие с вашим вкусом — любые пожелания для реализации вашей мечты о доме готовы воплотить специалисты нашей компании. Ваш дом станет идеальным отражением ваших мечтаний! Мы готовы помочь вам построить дом вашей мечты!

Посмотреть проект “Оптима” и все варианты комплектаций, а еще + 300 проектов можно на нашем сайте