Найти в Дзене
Войти
DUO Дизайн интерьеров
6 подписчиков
Подписаться
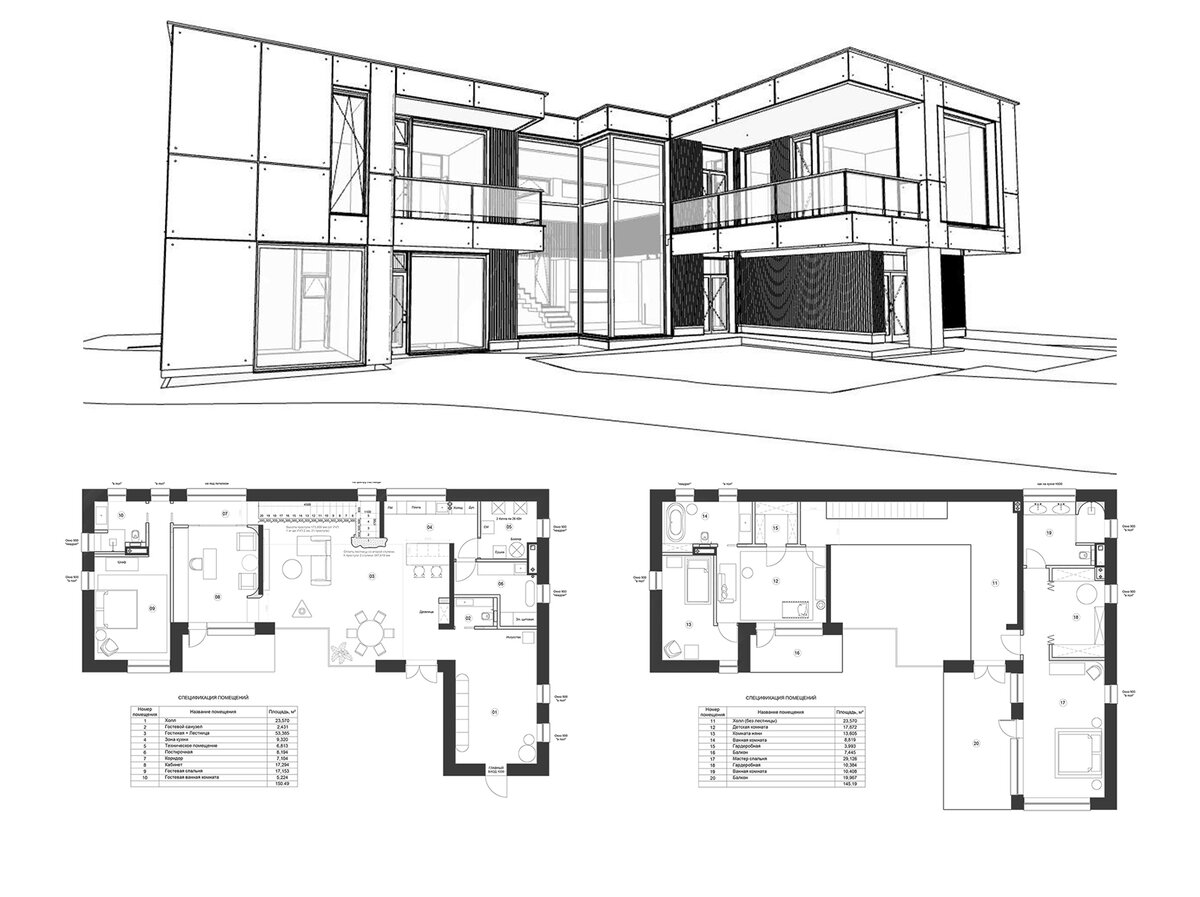
Двухэтажный жилой дом для коллекционера искусства
30 мая 2024
30 мая 2024
15
~1 мин
Горки-10, КП «Лесные Дали-М»
площадь: 295,68 кв.м
Горки-10, КП «Лесные Дали-М»
площадь: 295,68 кв.м
...
Читать далее
Горки-10, КП «Лесные Дали-М»
площадь: 295,68 кв.м
Резиденции
1183 интересуются
Следить за темой
4158704208.1209.1775608932214.43464