Добавить в корзинуПозвонить
Найти в Дзене

Типовые проекты компании "Одноэтажная столица".

За последний месяц мы показали вам несколько возведенных типовых домов в разной комплектации, а также переработанные планировки для новых заказчиков.
 
Давайте вспомним, что представляет собой направление строительства по типовым проектам в компании "Одноэтажная столица". Это линейка из 5 эргономичных одноэтажных домов с умными планировками площадью от 76 до 156 кв.м. Рассмотрим каждый проект вкратце.
 
1. Проект ОСТ-76 это небольшой уютный дом с настолько рациональной планировкой, что буквально каждый сантиметр площади использован с пользой. В нем 2 комнаты, достаточно просторная кухня-гостиная, количество санузлов варьируется от 1 до 2 в зависимости от выбранного вами планировочного решения. 2. Проект ОСТ-96 при совсем незначительно большей площади в одной из планировок предполагает уже 3 спальни, а значит, дает возможность проживания семьи из 3-5 человек. 3. Проект ОСТ-126 - это дом со значительно более интересным зонированием помещений. Вокруг входной группы собраны все техниче

За последний месяц мы показали вам несколько возведенных типовых домов в разной комплектации, а также переработанные планировки для новых заказчиков.

Давайте вспомним, что представляет собой направление строительства по типовым проектам в компании "Одноэтажная столица".

Это линейка из 5 эргономичных одноэтажных домов с умными планировками площадью от 76 до 156 кв.м.

Рассмотрим каждый проект вкратце.

1. Проект ОСТ-76 это небольшой уютный дом с настолько рациональной планировкой, что буквально каждый сантиметр площади использован с пользой. В нем 2 комнаты, достаточно просторная кухня-гостиная, количество санузлов варьируется от 1 до 2 в зависимости от выбранного вами планировочного решения.

2. Проект ОСТ-96 при совсем незначительно большей площади в одной из планировок предполагает уже 3 спальни, а значит, дает возможность проживания семьи из 3-5 человек.

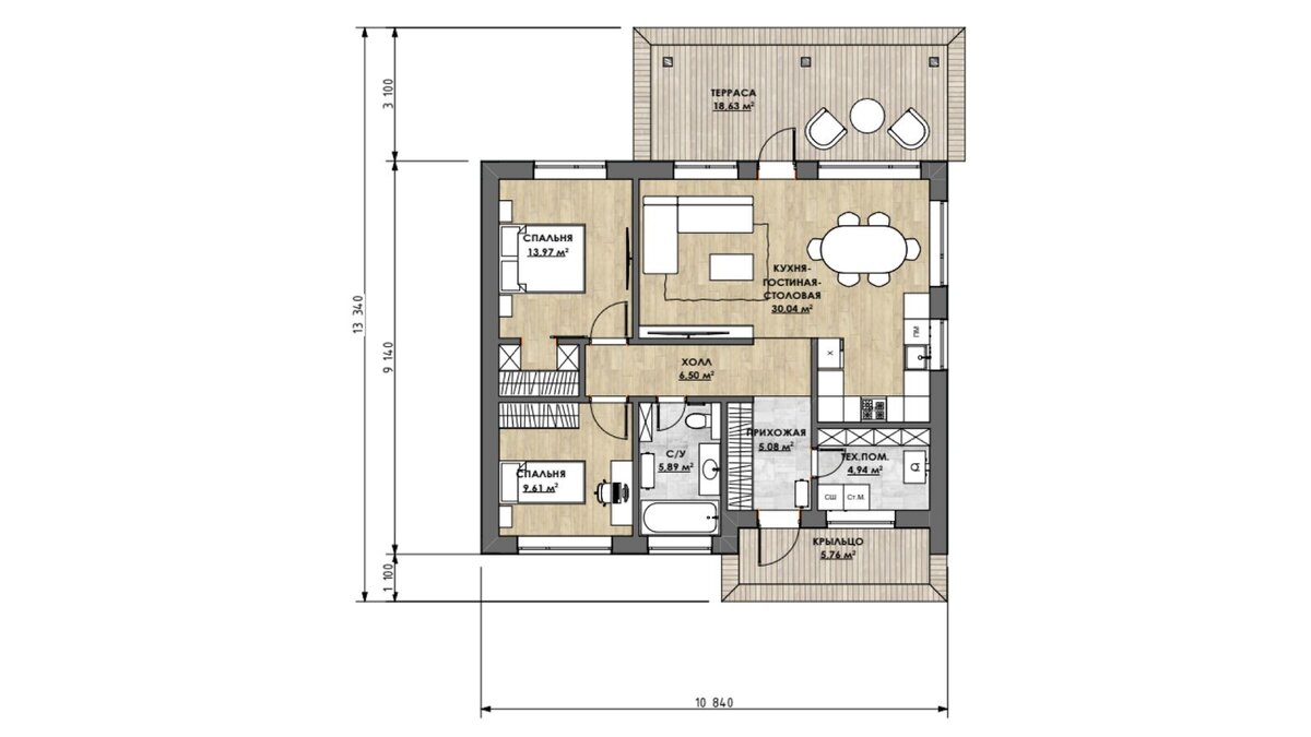
3. Проект ОСТ-126 - это дом со значительно более интересным зонированием помещений. Вокруг входной группы собраны все технические помещения. Кухня-гостиная с выходом на террасу расположилась в одной части дома, спальные помещения сгруппированы в другой его части. В зависимости от потребностей заказчика дом может иметь 3 или 4 спальные комнаты.

4. Проект ОСТ-146 - усовершенствованная версия предыдущего проекта с повышенным уровнем удобства. Его планировочные решения предполагают большее количество опций комфорта. Здесь вы найдете и постирочную, и кладовую, примыкающую к зоне приготовления еды, увеличенную площадь гостиной, которая визуально отделена от территории кухни, мастер-спальню для хозяев.

5. И, наконец, ОСТ-156 - дом для тех, кто не готов к компромиссам в загородной жизни. Гостиная впечатляет не только размерами и потенциалом использования, но и двухсветным пространством, большое число опций комфорта, эргономичная планировка с 3 и 4 спальнями, доп.помещения, которые обеспечат высокий уровень качества жизни для всех членов семьи, даже если под одной крышей соберется несколько поколений.

Каждый проект имеет по 3 варианта планировочных решений, которые вы также можете преобразовать под свои потребности, сохранив геометрию и размер пятна застройки.

Для подробного ознакомления с проектами, ценами и получения консультации переходите на наш сайт
https://o-stolica.ru