Найти в Дзене

Ищете хороший проект дома выходного дня? Обратите внимание на наш «Балтым»!

Классный загородный дом, совмещённый с баней. Типовой проект со стильным фасадом и уютной террасой. Площадь 86 м²
Габариты 8,5х10,4 м Дом-баня отлично подойдёт для сезонного проживания: проектом предусмотрены 2 спальни по 11 м², удобная кухня-гостиная, с/у, банная зона с помывочной и парной, а также приятный бонус — антресоль для хранения вещей или обустройства небольшой игровой комнаты. Материал стен — премиальный клееный брус сечением 160х185 мм, который красиво выглядит даже без отделки и практически не даёт усадку! Узнать стоимость строительства «Балтыма» можно по запросу в WhatsApp или Telegram по номерам: +7 (929) 269-05-05 (Тюмень) +7 (922) 618-36-79 (Екатеринбург)
Оглавление

Классный загородный дом, совмещённый с баней. Типовой проект со стильным фасадом и уютной террасой.

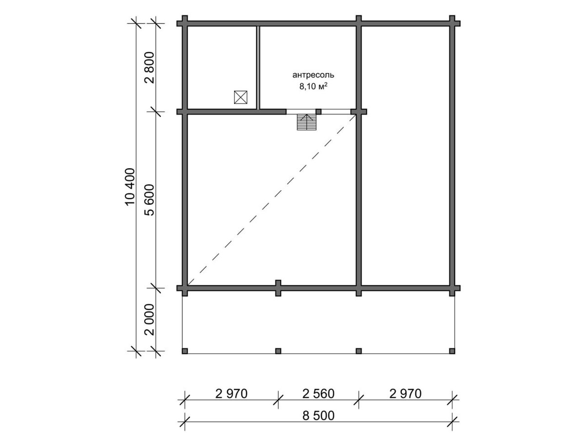
Площадь 86 м²
Габариты 8,5х10,4 м

Дом-баня отлично подойдёт для сезонного проживания: проектом предусмотрены 2 спальни по 11 м², удобная кухня-гостиная, с/у, банная зона с помывочной и парной, а также приятный бонус — антресоль для хранения вещей или обустройства небольшой игровой комнаты.

Материал стен — премиальный клееный брус сечением 160х185 мм, который красиво выглядит даже без отделки и практически не даёт усадку!

Узнать стоимость строительства «Балтыма» можно по запросу в WhatsApp или Telegram по номерам:

+7 (929) 269-05-05 (Тюмень)

+7 (922) 618-36-79 (Екатеринбург)