Добавить в корзинуПозвонить
Найти в Дзене
ДОМ ОТ ПРОФИ

ИСТОРИЯ СТРОИТЕЛЬСТВА ДВУХЭТАЖНОГО ДОМА С МАНСАРДНЫМ ЭТАЖОМ И ВТОРЫМ СВЕТОМ ПЛОЩАДЬЮ 264 КВ.М.

От начала проектирования до готового теплого контура дома за 5 месяцев — легко! Так мы построили дом по проекту 17-264 в Дмитровском районе.
В апреле к нам обратился клиент за строительством дома, рассказал о своих пожеланиях, и мы сразу начали проектирование.
Проект разрабатывали на базе проекта 15-22, внесли необходимые заказчику изменения: План 1 этажа:
- Просторная прихожая, куда поместится шкаф для одежды, отсюда же вход в бойлерную
- далее холл, откуда можно пройти в гостевую комнату, кладовую и санузел
- из холла мы попадаем на кухню и в большую и светлую за счет второго света гостиную. На кухне есть выход на небольшую террасу. В гостиной также находится лестница на 2 этаж План 2 этажа:
- холл с пространством второго света
- 3 просторные спальни, одна из которых с балконом 😍
- санузел Второй свет дает дому много воздуха, пространства и света! А еще это очень эффектно выглядит 🔥
Такой дом идеально подойдет как для семьи с 2-3 детьми, так и для семейной пары, которая любит пр
Дом по проекту 17-264 в Дмитровском районе
Дом по проекту 17-264 в Дмитровском районе

От начала проектирования до готового теплого контура дома за 5 месяцев — легко! Так мы построили дом по проекту 17-264 в Дмитровском районе.

В апреле к нам обратился клиент за строительством дома, рассказал о своих пожеланиях,
и мы сразу начали проектирование.

Проект разрабатывали на базе проекта 15-22, внесли необходимые заказчику изменения:

  • дом увеличили
  • немного изменили расположение санузла, котельной и кладовой на 1ом этаже
  • добавили 2ой свет и огромный балкон - он же навес над террасой.

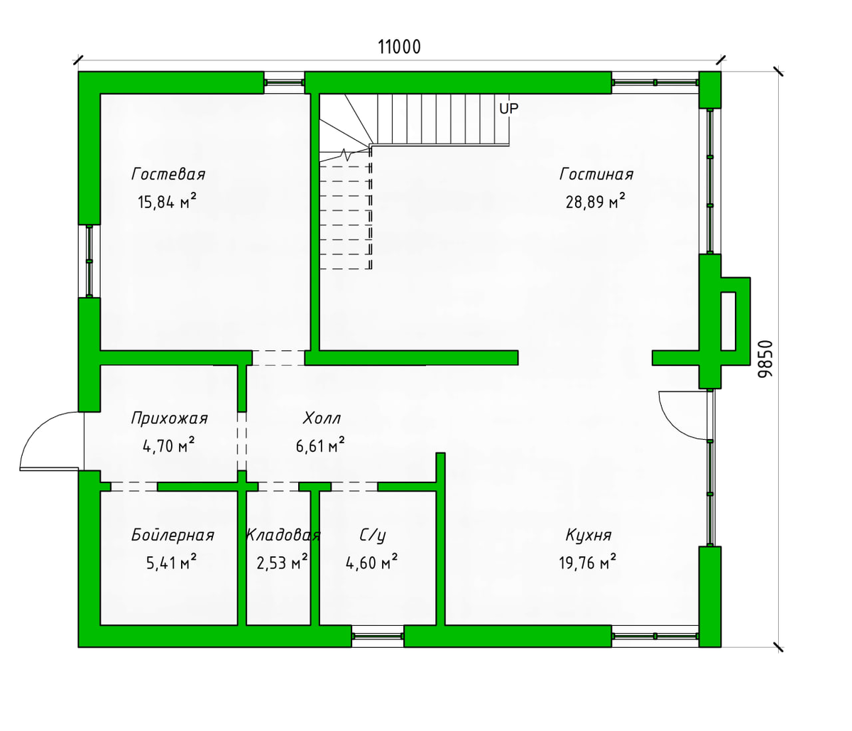
План 1 этажа:
- Просторная
прихожая, куда поместится шкаф для одежды, отсюда же вход в бойлерную
- далее
холл, откуда можно пройти в гостевую комнату, кладовую и санузел
- из холла мы попадаем на
кухню и в большую и светлую за счет второго света гостиную. На кухне есть выход на небольшую террасу. В гостиной также находится лестница на 2 этаж

План 1 этажа
План 1 этажа

План 2 этажа:
-
холл с пространством второго света
-
3 просторные спальни, одна из которых с балконом 😍
-
санузел

План 2 этажа
План 2 этажа
Второй свет дает дому много воздуха, пространства и света! А еще это очень эффектно выглядит 🔥


Такой дом идеально подойдет как
для семьи с 2-3 детьми, так и для семейной пары, которая любит приглашать в дом гостей и активно проводить время (свободные комнаты можно сделать гостевыми или для занятий спортом, чтения, просмотра кино)

-4

Уже в мае проект был готов, и мы начали строительство!
Наружные стены мы выполнили из газобетонного блока толщиной 400мм.
Дом будет теплым даже без утепления!

Строительство шло отлично, погода радовала, поэтому в августе дом был уже готов 🔥

-5

Получился вот такой красивый и уютный дом!

-6

Переходите в телеграм-бот, чтобы узнать стоимость строительства дома по проекту 17-264