Добавить в корзинуПозвонить
Найти в Дзене
Не только СТРОЙКА

Проект большого загородного дома с гаражом

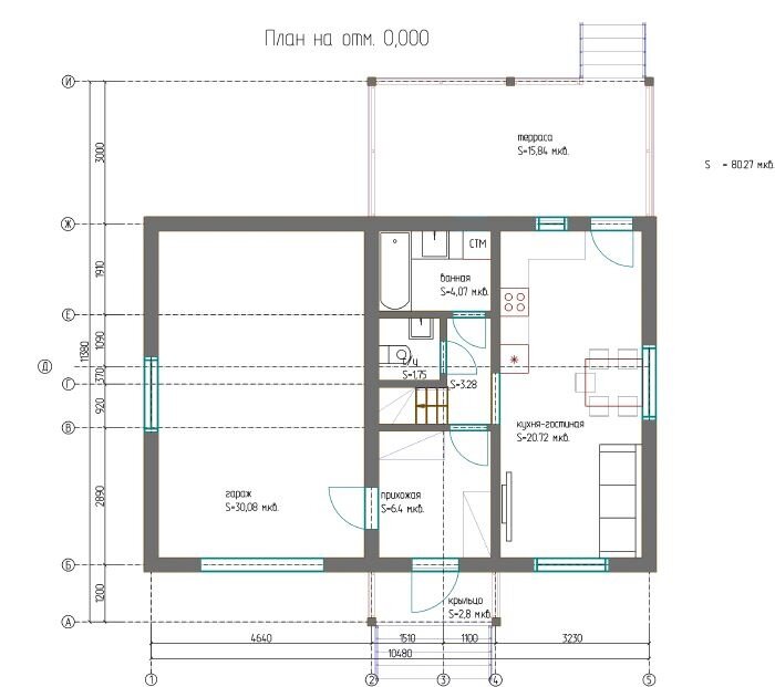
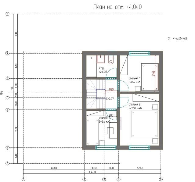
Продолжаем рассказывать об интересном проекте 126 м2, построенного  этой зимой в Максимовщине Сегодня расскажу вам немного об отделки, и особенностях проекта Домик очень комфортный. В нем есть и пространство для отдыха и для организации вашего свободного времени. Есть второй этаж, где можно уютно отдохнуть И, конечно, для многих при строительстве за городом важным элементом является гараж. Гараж и терраса для отдыха. В этом доме хорошо сочетаются эти нужные пространства. Гараж целых 30 м2. Кстати, в гараж можно попасть как с улицы, так и из дома Огромная кухня-гостиная, ванная и санузел на первом этаже. На втором этаже компактно располагаются целых 3 спальни, одна из которых для хозяев имеет увеличенную площадь и еще один санузел Внутри выполнена деревянная отделка, натяжные потолки. Разводка электрики и сантехники. Полы второго этажа выполнены из полового шпунта, на первом этаже из фанеры Также в доме шикарные окна в пол, через которые можно, в которой можно наблюдать как участок, так

Продолжаем рассказывать об интересном проекте 126 м2, построенного  этой зимой в Максимовщине

Сегодня расскажу вам немного об отделки, и особенностях проекта

Домик очень комфортный. В нем есть и пространство для отдыха и для организации вашего свободного времени. Есть второй этаж, где можно уютно отдохнуть

И, конечно, для многих при строительстве за городом важным элементом является гараж. Гараж и терраса для отдыха. В этом доме хорошо сочетаются эти нужные пространства. Гараж целых 30 м2. Кстати, в гараж можно попасть как с улицы, так и из дома

Огромная кухня-гостиная, ванная и санузел на первом этаже. На втором этаже компактно располагаются целых 3 спальни, одна из которых для хозяев имеет увеличенную площадь и еще один санузел

Внутри выполнена деревянная отделка, натяжные потолки. Разводка электрики и сантехники. Полы второго этажа выполнены из полового шпунта, на первом этаже из фанеры

Также в доме шикарные окна в пол, через которые можно, в которой можно наблюдать как участок, так и выйти на террасу

Хотите получить проект этого коттеджа? Ставьте плюсик в комментариях

-2
-3
-4
-5
-6
-7
-8
-9
-10